data_sheet.details.realestate.section.main.otthonstart_flag.label
For sale new construction semi-detached house,
P4643-1-1.-NA-000
Kiskunlacháza,
85,000,000 Ft
217,000 €
- 99.2m²
- 4 Rooms






Registration Number
P4643-1-1.-NA-000
Property Details
Sales
for sale
Legal Status
new
Character
house
Construction Method
brick
Net Size
99.2 m²
Gross Size
121.9 m²
Plot Size
841 m²
Size of Terrace / Balcony
22.6 m²
Heating
heat pump
Ceiling Height
270 cm
Orientation
North-East
Condition
Excellent
Condition of Facade
Excellent
Year of Construction
2025
Number of Bathrooms
2
Water
Available
Electricity
Available
Sewer
Available
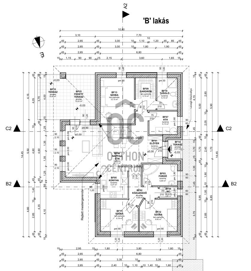
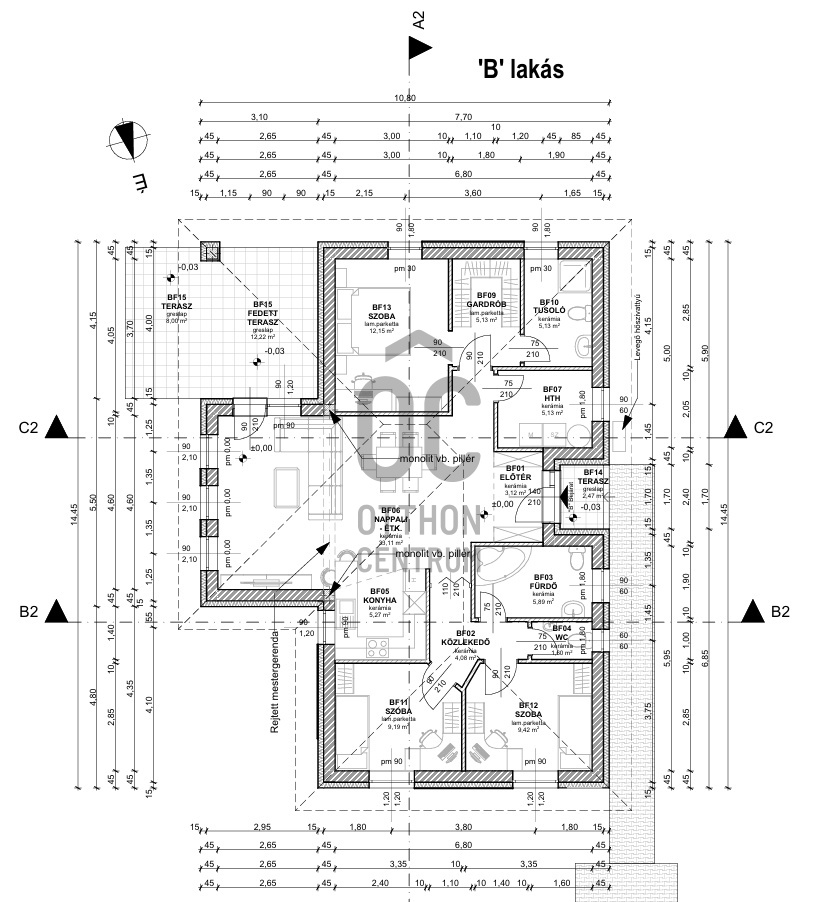
Rooms
entryway
3.12 m²
corridor
4.08 m²
bathroom
5.89 m²
toilet-washbasin
1.6 m²
kitchen
5.27 m²
open-plan living and dining room
33.11 m²
utility room
5.13 m²
wardrobe
5.13 m²
bathroom
5.13 m²
room
9.19 m²
room
9.42 m²
room
12.15 m²
terrace
12.22 m²
terrace
8 m²

Joó Krisztina
Credit Expert