117,000,000 Ft
327,000 €
- 75m²
- 3 Rooms
- ground floor
Újépítésű Prémium Lakások a Balaton északi partján, Alsóörsön
Balaton északi partjának kedvelt üdülőhelyén kínálunk eladásra újépítésű, prémium lakásokat.
A település kiváló infrastruktúrával, rendezett stranddal és kikötővel rendelkezik. A lakások mindössze néhány perc sétára találhatók a Balaton-parttól.
A két épületből álló, összesen 26 lakásos exkluzív projekt modern építészeti és műszaki megoldásokkal készült, garantálva a hosszú távú értékállóságot és az alacsony fenntartási költségeket.
Jelenleg már csak pár lakás érhető el!
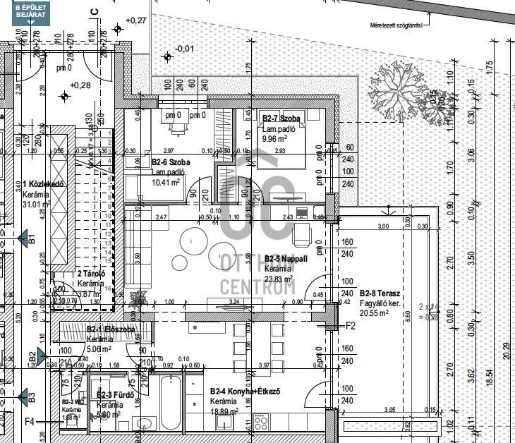
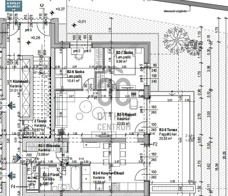
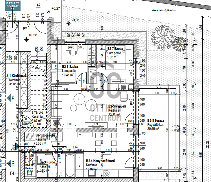
A B.L2 lakás a B épület földszintjén helyezkedik el, belső udvari kertkapcsolattal és 73 m² saját zöldterülettel rendelkezik. Alapterülete 75,43 m² + 20,55 m² terasz. Kulcsrakész ára: 114 400 000 Ft.
Kiemelkedő műszaki tartalom:
- Energiahatékony építés, prémium minőségű anyagokkal;
- 30 cm-es tégla falazat + 20 cm külső hőszigetelés;
- Műanyag-aluminium nyílászárók, háromrétegű üvegezéssel, elektromos redőnyökkel és szúnyoghálóval;
- Hőszivattyús központi fűtés egyedi mérőkkel;
- Padlófűtés és hűtő-fűtő FANCOIL rendszer minden lakásban;
- Kaputelefon, riasztó és TV/internet kiépítés;
- Minden lakás erkéllyel, vagy terasszal rendelkezik.
Opcionálisan vásárolható:
Tároló: 3 900 000 Ft - 4.200.000 Ft
Kültéri parkoló: 2.900.000 Ft
Az ingatlan jogilag rendezett, az albetétesítés megtörtént.
További információért keressen minket bizalommal!
Egyedi igényekre szabott lakás hitelekkel állunk rendelkezésére. Bankfüggetlen hitelcentrumunk az országban elérhető összes bank és hitelintézet ajánlatát versenyezteti az Ön számára díjmentesen. Munkatársaink nagy szakmai tapasztalattal várják Önt az előre egyeztetett időpontban akár a normál munkaidő után is.
A település kiváló infrastruktúrával, rendezett stranddal és kikötővel rendelkezik. A lakások mindössze néhány perc sétára találhatók a Balaton-parttól.
A két épületből álló, összesen 26 lakásos exkluzív projekt modern építészeti és műszaki megoldásokkal készült, garantálva a hosszú távú értékállóságot és az alacsony fenntartási költségeket.
Jelenleg már csak pár lakás érhető el!
A B.L2 lakás a B épület földszintjén helyezkedik el, belső udvari kertkapcsolattal és 73 m² saját zöldterülettel rendelkezik. Alapterülete 75,43 m² + 20,55 m² terasz. Kulcsrakész ára: 114 400 000 Ft.
Kiemelkedő műszaki tartalom:
- Energiahatékony építés, prémium minőségű anyagokkal;
- 30 cm-es tégla falazat + 20 cm külső hőszigetelés;
- Műanyag-aluminium nyílászárók, háromrétegű üvegezéssel, elektromos redőnyökkel és szúnyoghálóval;
- Hőszivattyús központi fűtés egyedi mérőkkel;
- Padlófűtés és hűtő-fűtő FANCOIL rendszer minden lakásban;
- Kaputelefon, riasztó és TV/internet kiépítés;
- Minden lakás erkéllyel, vagy terasszal rendelkezik.
Opcionálisan vásárolható:
Tároló: 3 900 000 Ft - 4.200.000 Ft
Kültéri parkoló: 2.900.000 Ft
Az ingatlan jogilag rendezett, az albetétesítés megtörtént.
További információért keressen minket bizalommal!
Egyedi igényekre szabott lakás hitelekkel állunk rendelkezésére. Bankfüggetlen hitelcentrumunk az országban elérhető összes bank és hitelintézet ajánlatát versenyezteti az Ön számára díjmentesen. Munkatársaink nagy szakmai tapasztalattal várják Önt az előre egyeztetett időpontban akár a normál munkaidő után is.
Registration Number
P4636-2-0B-FZ-002
Property Details
Sales
for sale
Legal Status
new
Character
apartment
Construction Method
brick
Net Size
75 m²
Gross Size
96 m²
Size of Terrace / Balcony
21 m²
Heating
electric fan-coil
Ceiling Height
270 cm
Orientation
North-East
View
Green view
Staircase Type
enclosed staircase
Condition
Excellent
Condition of Facade
Excellent
Condition of Staircase
Excellent
Year of Construction
2025
Number of Bathrooms
1
Position
courtyard-facing
Water
Available
Gas
Available
Electricity
Available
Sewer
Available
Storage
Separately purchasable
Distance to Waterfront
200 meters
Rooms
room
10 m²
living room
24 m²
room
10 m²
open-plan kitchen and dining room
12 m²
bathroom
6 m²
toilet
2 m²
entryway
5 m²
Kőrösi Róbert
Credit Expert