295,000,000 Ft
759,000 €
- 104m²
- 4 Rooms
- ground floor
Keresve sem találni hibát – luxus szintű, kétlakásos ingatlan a Belgrád rakpart egyik legszebb házában!
Ha eddig azt gondoltad, hogy „jó, de biztos van benne valami kompromisszum”… akkor most szólok: nincs!
Budapest V. kerület presztízs részén, közvetlenül a Duna-parton kínálunk megvételre egy teljeskörűen, műszakilag és esztétikailag is kompromisszummentesen felújított, kétlakásos ingatlant, egy gyönyörű századfordulós épületben.
Egy nagy lakásból kialakított:
-2 különálló lakás
-teljesen külön gépészettel, bútorozottan, gépesítve
-igény szerint egybenyitható
Mindkét lakás:
amerikai konyhás nappali
-hálószoba
-fürdőszoba WC-vel
-gardrób
-saját ~13 m²-es terasz (!!)
-a két lakás tükörképe egymásnak, azonos felszereltséggel.
Műszaki tartalom – itt tényleg nem spóroltak
Ez nem „felújított”, hanem újjáépített lakás:
-teljes víz- és villanyhálózat csere -falak tégláig visszabontva, újraszigetelve, vakolva
-új, korszerű nyílászárók
-Gree klíma rendszer
-Ariston okos bojler
-Bosch elektromos kazán + H-tarifa
-padlófűtés az egész lakásban
-elektromos, fényzáró rolók
Konyha – ahol még főzni is kedved lesz
-prémium, egyedi konyhabútor, teljesen gépesített, garanciális.
-AEG sütő, főzőlap, elszívó, mosogatógép, hűtő + fagyasztó, mikro.
Egyszóval nem kell semmit venni, csak beköltözni!
prémium mindenhol…
-valódi tölgyfa parketta
-magas kopásállóságú hidegburkolatok
-letisztult, időtálló design
És még egy kis extra:
-új bútorokkal, azonnal költözhető
-befektetésnek és saját használatra is ideális
-akár két külön kiadható lakás, akár egy nagy otthon
Lokáció, amit nem kell magyarázni
-Duna-part, belváros, presztízs környék
-pár perc séta a Szabadság híd és a Fővám tér, kiváló közlekedés, éttermek, kávézók és bárok szeles választéka elérhető!
Ez az ingatlan, nem „felújított”, hanem újjászületett, nem „jó elrendezésű”, hanem két külön lakás egyben, és nem „szép”, hanem olyan, amit élőben még jobb látni
Minden felújítást tervező és kivitelező által vezetett, végig dokumentált!
Ha egy olyan lakást keresel, ahol nem kell kompromisszumot kötni, akkor ezt tényleg érdemes megnézni, megtekintése rugalmas. Birtokbaadás azonnal!
Ha eddig azt gondoltad, hogy „jó, de biztos van benne valami kompromisszum”… akkor most szólok: nincs!
Budapest V. kerület presztízs részén, közvetlenül a Duna-parton kínálunk megvételre egy teljeskörűen, műszakilag és esztétikailag is kompromisszummentesen felújított, kétlakásos ingatlant, egy gyönyörű századfordulós épületben.
Egy nagy lakásból kialakított:
-2 különálló lakás
-teljesen külön gépészettel, bútorozottan, gépesítve
-igény szerint egybenyitható
Mindkét lakás:
amerikai konyhás nappali
-hálószoba
-fürdőszoba WC-vel
-gardrób
-saját ~13 m²-es terasz (!!)
-a két lakás tükörképe egymásnak, azonos felszereltséggel.
Műszaki tartalom – itt tényleg nem spóroltak
Ez nem „felújított”, hanem újjáépített lakás:
-teljes víz- és villanyhálózat csere -falak tégláig visszabontva, újraszigetelve, vakolva
-új, korszerű nyílászárók
-Gree klíma rendszer
-Ariston okos bojler
-Bosch elektromos kazán + H-tarifa
-padlófűtés az egész lakásban
-elektromos, fényzáró rolók
Konyha – ahol még főzni is kedved lesz
-prémium, egyedi konyhabútor, teljesen gépesített, garanciális.
-AEG sütő, főzőlap, elszívó, mosogatógép, hűtő + fagyasztó, mikro.
Egyszóval nem kell semmit venni, csak beköltözni!
prémium mindenhol…
-valódi tölgyfa parketta
-magas kopásállóságú hidegburkolatok
-letisztult, időtálló design
És még egy kis extra:
-új bútorokkal, azonnal költözhető
-befektetésnek és saját használatra is ideális
-akár két külön kiadható lakás, akár egy nagy otthon
Lokáció, amit nem kell magyarázni
-Duna-part, belváros, presztízs környék
-pár perc séta a Szabadság híd és a Fővám tér, kiváló közlekedés, éttermek, kávézók és bárok szeles választéka elérhető!
Ez az ingatlan, nem „felújított”, hanem újjászületett, nem „jó elrendezésű”, hanem két külön lakás egyben, és nem „szép”, hanem olyan, amit élőben még jobb látni
Minden felújítást tervező és kivitelező által vezetett, végig dokumentált!
Ha egy olyan lakást keresel, ahol nem kell kompromisszumot kötni, akkor ezt tényleg érdemes megnézni, megtekintése rugalmas. Birtokbaadás azonnal!
Registration Number
H515774
Property Details
Sales
for sale
Legal Status
used
Character
apartment
Construction Method
brick
Net Size
104 m²
Gross Size
117 m²
Size of Terrace / Balcony
13 m²
Heating
electric circulator
Ceiling Height
480 cm
Number of Levels Within the Property
2
Orientation
South-East
Staircase Type
circular corridor
Condition
Excellent
Condition of Facade
Good
Condition of Staircase
Good
Basement
Independent
Neighborhood
quiet, good transport, central
Year of Construction
1899
Number of Bathrooms
2
Position
courtyard-facing
Water
Available
Electricity
Available
Sewer
Available
Elevator
available
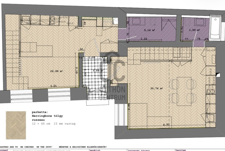
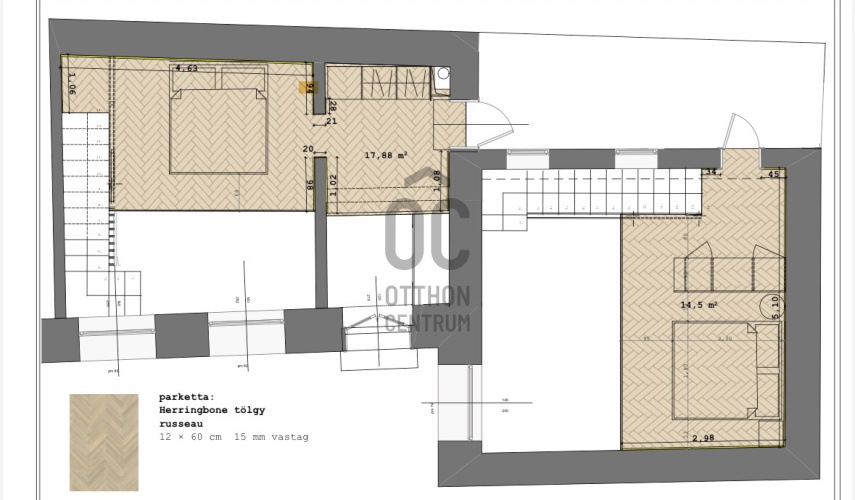
Rooms
entryway
4 m²
open-plan kitchen and living room
30 m²
open-plan kitchen and living room
30 m²
gallery
10 m²
gallery
10 m²
wardrobe
6 m²
bathroom-toilet
8 m²
bathroom-toilet
6 m²
Pfeffer Kinga
Credit Expert