data_sheet.details.realestate.section.main.otthonstart_flag.label
For sale apartment,
H514344
Budapest IX. kerület, József Attila-lakótelep, Távíró utca
78,000,000 Ft
199,000 €
- 55m²
- 2 Rooms
- 2nd floor
Renovated 2-room apartment with a balcony in the József Attila housing estate.
Renovated 2-Bedroom Apartment with Balcony for Sale in a Green Area of District XI
I am offering for sale a renovated, 55 sqm, 2-room apartment with a balcony, located on the 2nd floor in the green area of District XI, in the József Attila housing estate.
The Apartment:
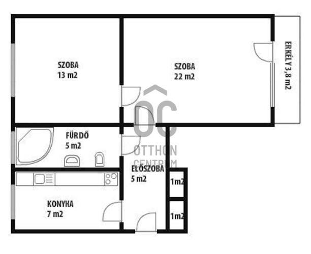
- 55 sqm, 2 rooms, 3.8 sqm balcony
- Located on the 2nd floor
- Very bright thanks to its southwest-facing orientation
- Tastefully renovated both technically and aesthetically
- Fully equipped and furnished
- District heating with individual metering
- Common cost: HUF 17,600
The Building:
- 4-storey building
- No elevator
- Well-maintained brick building, both the façade and staircase are in good condition
- Excellent property management
- Quiet, peaceful, and friendly residential community
One of the biggest advantages of the housing estate is the abundance of green areas and parks, providing a pleasant environment for walking, sports, or family leisure activities. The neighborhood is quiet and well-kept, making it an ideal choice for young couples, families, and elderly residents alike.
The area benefits from excellent public transport connections: metro, tram, and bus lines provide quick and convenient access to the city center, making it perfect for those who work downtown but prefer a calmer living environment.
Everything you need for daily life can be found nearby: shops, market, school, kindergarten, pharmacy, and medical services are all within a few minutes' walk, ensuring maximum convenience for residents.
For any questions, please feel free to contact me. The apartment can be viewed flexibly on any day of the week.
We also offer customized mortgage solutions tailored to your needs.
Our independent mortgage center compares offers from all major banks and financial institutions in Hungary free of charge.
Our experienced colleagues are at your disposal with full administration of CSOK Plus and the Home Start Program, available by prior appointment, even outside regular working hours.
I am offering for sale a renovated, 55 sqm, 2-room apartment with a balcony, located on the 2nd floor in the green area of District XI, in the József Attila housing estate.
The Apartment:
- 55 sqm, 2 rooms, 3.8 sqm balcony
- Located on the 2nd floor
- Very bright thanks to its southwest-facing orientation
- Tastefully renovated both technically and aesthetically
- Fully equipped and furnished
- District heating with individual metering
- Common cost: HUF 17,600
The Building:
- 4-storey building
- No elevator
- Well-maintained brick building, both the façade and staircase are in good condition
- Excellent property management
- Quiet, peaceful, and friendly residential community
One of the biggest advantages of the housing estate is the abundance of green areas and parks, providing a pleasant environment for walking, sports, or family leisure activities. The neighborhood is quiet and well-kept, making it an ideal choice for young couples, families, and elderly residents alike.
The area benefits from excellent public transport connections: metro, tram, and bus lines provide quick and convenient access to the city center, making it perfect for those who work downtown but prefer a calmer living environment.
Everything you need for daily life can be found nearby: shops, market, school, kindergarten, pharmacy, and medical services are all within a few minutes' walk, ensuring maximum convenience for residents.
For any questions, please feel free to contact me. The apartment can be viewed flexibly on any day of the week.
We also offer customized mortgage solutions tailored to your needs.
Our independent mortgage center compares offers from all major banks and financial institutions in Hungary free of charge.
Our experienced colleagues are at your disposal with full administration of CSOK Plus and the Home Start Program, available by prior appointment, even outside regular working hours.
Registration Number
H514344
Property Details
Sales
for sale
Legal Status
used
Character
apartment
Construction Method
brick
Net Size
55 m²
Gross Size
55 m²
Size of Terrace / Balcony
3.8 m²
Heating
individual district heating
Ceiling Height
270 cm
Orientation
South-West
View
city view
Staircase Type
enclosed staircase
Condition
Excellent
Condition of Facade
Good
Condition of Staircase
Good
Neighborhood
quiet, good transport, green
Year of Construction
1980
Number of Bathrooms
1
Position
street-facing
Common Costs
17600
Water
Available
Electricity
Available
Sewer
Available
Rooms
living room
22 m²
bedroom
13 m²
bathroom-toilet
5 m²
kitchen
7 m²
entryway
5 m²
pantry
1 m²
pantry
1 m²
balcony
3.8 m²