data_sheet.details.realestate.section.main.otthonstart_flag.label
For sale apartment,
H514007
Kecskemét, Belváros, Nyíl utca
74,900,000 Ft
198,000 €
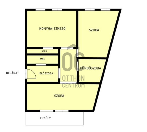
- 60m²
- 2 Rooms
- 1st floor
Kecskemét egyik legkedveltebb, frekventált részén, a Nyíl utcában kínálok megvételre egy 60 nm-es, erkélyes, első emeleti, kiváló állapotú lakást,
amely egy 2001-ben épült, kulturált társasházban található.
Az ingatlan ideális választás mindazok számára, akik értékelik a nyugodt, mégis központi elhelyezkedést és a minőségi lakókörnyezetet.
A kényelmes elrendezésű, két külön nyíló szobával rendelkező lakás tágas, világos terekkel rendelkezik. Az erkély kellemes lehetőséget biztosít a reggeli kávé elfogyasztására vagy egy hosszú nap utáni pihenésre.
Az épület 2001-ben épült, ennek köszönhetően modern szerkezeti megoldásokkal és jó műszaki állapottal rendelkezik.
A lakás megkímélt, gondosan karbantartott, így akár azonnal költözhető állapotban várja új tulajdonosát.
A társasházban közös használatú tároló is rendelkezésre áll, amely praktikus megoldást nyújt a ritkábban használt tárgyak elhelyezésére. Igény esetén garázs is vásárolható az ingatlanhoz, ami a környéken kifejezetten nagy értéket képvisel.
A lokáció valóban kiemelkedő: a közelben megtalálhatóak üzletek, szolgáltatások, tömegközlekedési lehetőségek, intézmények – minden, ami a mindennapi élethez szükséges. A belváros gyorsan és kényelmesen elérhető, mégis csendes, élhető környezetben élhet.
Ez a lakás kiváló választás saját otthonnak, de befektetésként is remek lehetőség, hiszen az elhelyezkedés és az állapot garantálja az értékállóságot.
Amennyiben egy jó állapotú, erkélyes, első emeleti lakást keres Kecskemét egyik legjobb részén, ez az ingatlan ideális választás lehet!
Rugalmasan megtekinthető, azonnal költözhető!
Hívjon, bizalommal!
amely egy 2001-ben épült, kulturált társasházban található.
Az ingatlan ideális választás mindazok számára, akik értékelik a nyugodt, mégis központi elhelyezkedést és a minőségi lakókörnyezetet.
A kényelmes elrendezésű, két külön nyíló szobával rendelkező lakás tágas, világos terekkel rendelkezik. Az erkély kellemes lehetőséget biztosít a reggeli kávé elfogyasztására vagy egy hosszú nap utáni pihenésre.
Az épület 2001-ben épült, ennek köszönhetően modern szerkezeti megoldásokkal és jó műszaki állapottal rendelkezik.
A lakás megkímélt, gondosan karbantartott, így akár azonnal költözhető állapotban várja új tulajdonosát.
A társasházban közös használatú tároló is rendelkezésre áll, amely praktikus megoldást nyújt a ritkábban használt tárgyak elhelyezésére. Igény esetén garázs is vásárolható az ingatlanhoz, ami a környéken kifejezetten nagy értéket képvisel.
A lokáció valóban kiemelkedő: a közelben megtalálhatóak üzletek, szolgáltatások, tömegközlekedési lehetőségek, intézmények – minden, ami a mindennapi élethez szükséges. A belváros gyorsan és kényelmesen elérhető, mégis csendes, élhető környezetben élhet.
Ez a lakás kiváló választás saját otthonnak, de befektetésként is remek lehetőség, hiszen az elhelyezkedés és az állapot garantálja az értékállóságot.
Amennyiben egy jó állapotú, erkélyes, első emeleti lakást keres Kecskemét egyik legjobb részén, ez az ingatlan ideális választás lehet!
Rugalmasan megtekinthető, azonnal költözhető!
Hívjon, bizalommal!
Registration Number
H514007
Property Details
Sales
for sale
Legal Status
used
Character
apartment
Construction Method
brick
Net Size
60 m²
Gross Size
60 m²
Size of Terrace / Balcony
6 m²
Heating
Gas circulator
Ceiling Height
270 cm
Orientation
South-East
Staircase Type
enclosed staircase
Condition
Good
Condition of Facade
Good
Condition of Staircase
Good
Neighborhood
good transport, central
Year of Construction
2001
Number of Bathrooms
1
Position
courtyard-facing
Common Costs
7000
Garage
Separately purchasable
Garage Spaces
1
Water
Available
Gas
Available
Electricity
Available
Sewer
Available
Storage
Shared
Rooms
room
18.3 m²
room
12.72 m²
open-plan kitchen and dining room
12.28 m²
bathroom
4.4 m²
balcony
6 m²