309,000,000 Ft
798,000 €
- 104m²
- 3 Rooms
- 3rd floor
LUXURY RESIDENCE FOR SALE ON PAULAY EDE STREET — DISTRICT VI, BUDAPEST
Located on one of Budapest’s most prestigious streets, this exceptional residence on Paulay Ede Street offers a perfect blend of historic grandeur and contemporary luxury living.
Behind the elegant façade lies a beautifully designed 104 sqm apartment on the 3rd floor, facing south-east, filled with natural light and refined architectural character. High ceilings, carefully restored details, and premium finishes create a sophisticated atmosphere that reflects true European elegance.
The property is equipped with modern high-end features, including:
– Underfloor heating for year-round comfort
– Central air conditioning
– Advanced smart home (domotic) system
– Fully equipped contemporary kitchen
– Superior materials and craftsmanship throughout
The location is truly outstanding: Andrássy Avenue, the Hungarian State Opera House, fine dining, luxury boutiques, and major cultural landmarks are all just steps away, offering an unparalleled inner-city lifestyle.
This residence is an ideal choice as a primary home, a prestigious city apartment, or a secure long-term investment.
Contact us today to arrange a private viewing of this remarkable property.
Behind the elegant façade lies a beautifully designed 104 sqm apartment on the 3rd floor, facing south-east, filled with natural light and refined architectural character. High ceilings, carefully restored details, and premium finishes create a sophisticated atmosphere that reflects true European elegance.
The property is equipped with modern high-end features, including:
– Underfloor heating for year-round comfort
– Central air conditioning
– Advanced smart home (domotic) system
– Fully equipped contemporary kitchen
– Superior materials and craftsmanship throughout
The location is truly outstanding: Andrássy Avenue, the Hungarian State Opera House, fine dining, luxury boutiques, and major cultural landmarks are all just steps away, offering an unparalleled inner-city lifestyle.
This residence is an ideal choice as a primary home, a prestigious city apartment, or a secure long-term investment.
Contact us today to arrange a private viewing of this remarkable property.
Registration Number
H513825
Property Details
Sales
for sale
Legal Status
used
Character
apartment
Construction Method
brick
Net Size
104 m²
Gross Size
104 m²
Ceiling Height
320 cm
Orientation
South-East
View
city view
Staircase Type
circular corridor
Condition
Excellent
Condition of Facade
Excellent
Condition of Staircase
Excellent
Neighborhood
good transport, central
Year of Construction
1930
Number of Bathrooms
2
Position
street-facing
Water
Available
Gas
Available
Electricity
Available
Sewer
Available
Elevator
available
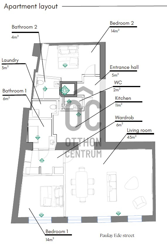
Rooms
living room
43 m²
bedroom
14 m²
bedroom
14 m²
kitchen
11 m²
bathroom-toilet
6 m²
bathroom-toilet
4 m²
toilet
2 m²
laundry room
3 m²
wardrobe
6 m²
entryway
5 m²