196,000,000 Ft
520,000 €
- 108m²
- 4 Rooms
- 1st floor
Make your dreams come true in Belbuda! An exceptional opportunity at the Buda foot of the Margaret Bridge.
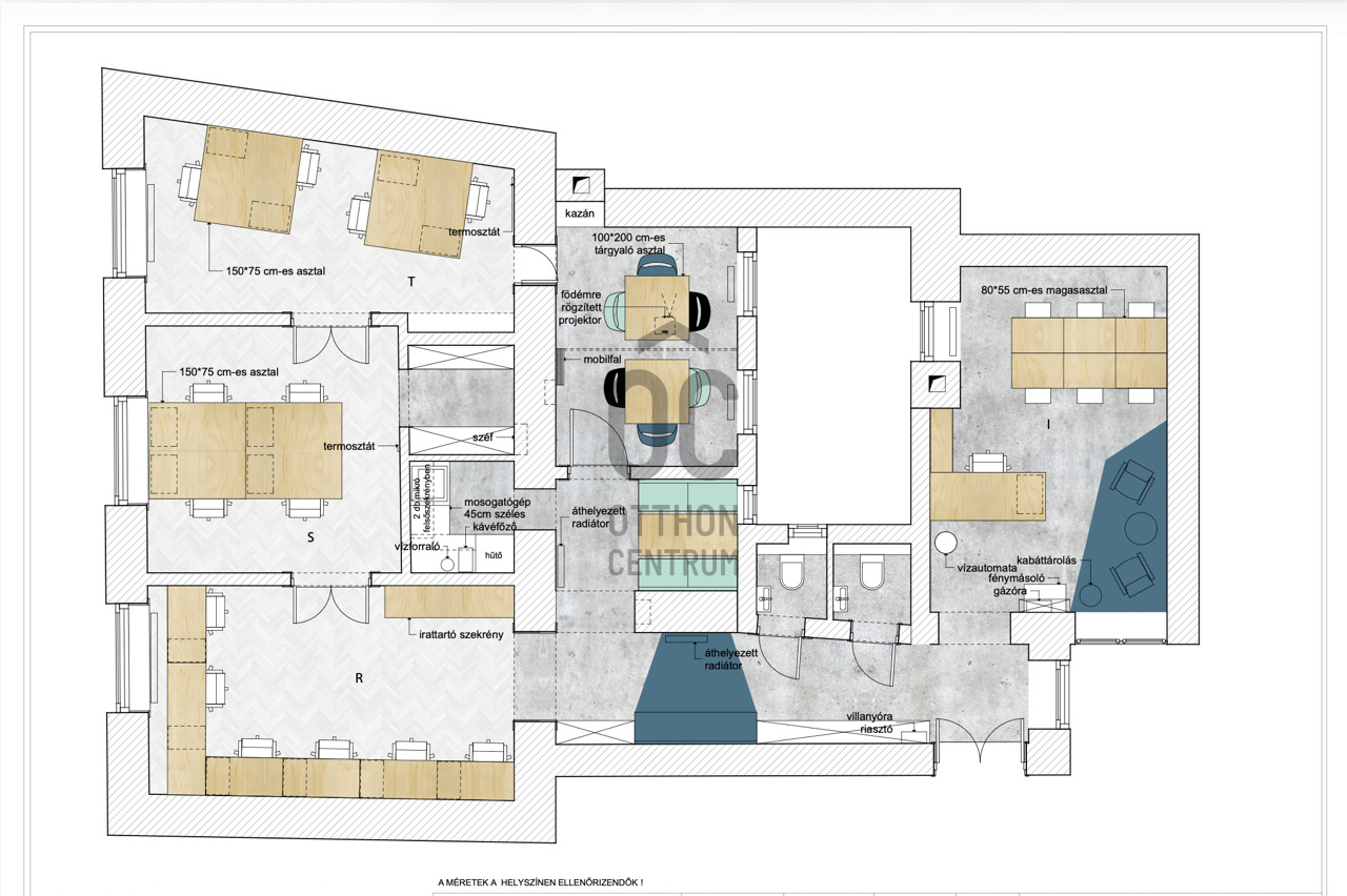
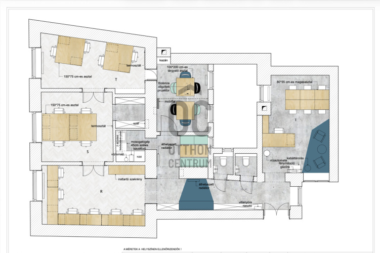
I am offering for sale a property located on a quiet and peaceful section of Frankel Leó Street, which is currently operating as an office. This exceptional 108 sqm property is suitable for conversion into a home with a living room and 3 to 4 bedrooms, tailored to your own needs and ideas. It is an ideal choice for those who wish to experience the vibrancy of urban life in a premium environment.
The property is free of encumbrances and is being sold as an apartment, although it currently functions as an office. The 108 sqm property, accessible from a well-maintained staircase, is in a technically renovated condition and offers the possibility of creating a premium home with a living room and 3 to 4 bedrooms and double bathrooms according to your own needs and vision.
Main features:
- Technical condition: Gas central heating, air conditioning, modernized insulated windows and flooring.
- Layout: Spacious, bright areas that can be flexibly arranged.
108 sqm | 4-5 separate rooms – spacious spaces that can be well varied.
- Location: A central yet calm area with excellent transport and infrastructure.
Bem József Square, the Danube bank, Batthyány Square, and Millenáris are just a few minutes' walk away. Proximity to the Danube: morning walks, evening runs, panoramic relaxation. - Transportation: Excellent accessibility! Easily reachable from anywhere in Budapest by public transport or by car.
This property is an ideal choice for large families or couples looking for a comfortable home tailored to their own needs in one of Buda's most sought-after areas, or even for creating a representative yet cozy living space. Additionally, it is suitable for investors, operating as both residential and commercial property, but the large floor area and spacious rooms also allow for the creation of 2 or 3 separate apartments. The currently thriving office can even be taken over with tenants.
The prestige of the area – elegant office buildings, quality restaurants, cultural and recreational opportunities – guarantees long-term value retention and livability. This property is not just an apartment; it is a lifestyle choice in one of the best-located areas of Belbuda.
???? Interested in the details? Feel free to contact me and view this special opportunity in person!
The property is free of encumbrances and is being sold as an apartment, although it currently functions as an office. The 108 sqm property, accessible from a well-maintained staircase, is in a technically renovated condition and offers the possibility of creating a premium home with a living room and 3 to 4 bedrooms and double bathrooms according to your own needs and vision.
Main features:
- Technical condition: Gas central heating, air conditioning, modernized insulated windows and flooring.
- Layout: Spacious, bright areas that can be flexibly arranged.
108 sqm | 4-5 separate rooms – spacious spaces that can be well varied.
- Location: A central yet calm area with excellent transport and infrastructure.
Bem József Square, the Danube bank, Batthyány Square, and Millenáris are just a few minutes' walk away. Proximity to the Danube: morning walks, evening runs, panoramic relaxation. - Transportation: Excellent accessibility! Easily reachable from anywhere in Budapest by public transport or by car.
This property is an ideal choice for large families or couples looking for a comfortable home tailored to their own needs in one of Buda's most sought-after areas, or even for creating a representative yet cozy living space. Additionally, it is suitable for investors, operating as both residential and commercial property, but the large floor area and spacious rooms also allow for the creation of 2 or 3 separate apartments. The currently thriving office can even be taken over with tenants.
The prestige of the area – elegant office buildings, quality restaurants, cultural and recreational opportunities – guarantees long-term value retention and livability. This property is not just an apartment; it is a lifestyle choice in one of the best-located areas of Belbuda.
???? Interested in the details? Feel free to contact me and view this special opportunity in person!
Registration Number
H513386
Property Details
Sales
for sale
Legal Status
used
Character
apartment
Construction Method
brick
Net Size
108 m²
Gross Size
108 m²
Heating
Gas circulator
Ceiling Height
340 cm
Number of Levels Within the Property
1
Orientation
East
Staircase Type
circular corridor
Condition
Good
Condition of Facade
Excellent
Condition of Staircase
Good
Neighborhood
good transport, central
Year of Construction
1910
Number of Bathrooms
1
Position
street-facing
Water
Available
Gas
Available
Electricity
Available
Sewer
Available
Rooms
living room
22 m²
room
17.5 m²
room
20 m²
room
21 m²
entryway
12 m²
Örvössy Tamás
Credit Expert