data_sheet.details.realestate.section.main.otthonstart_flag.label
For sale panel apartment,
H513375
Budapest XV. kerület, Újpalota
69,990,000 Ft
187,000 €
- 70m²
- 3 Rooms
- 3rd floor
Világos, csendes felső emeleti otthon zöld környezetben – Kőrakkáspark
Világos, csendes felső emeleti otthon zöld környezetben – Kőrakkáspark
Van az a lakás, ahová belépve az ember azonnal érzi: itt jó élni.
Fényes terek, nyugalom és egy olyan ház, ahol valóban otthon vannak az emberek – nem csak laknak.
Ez a XV. kerületi Körakkáspark egyik háromemeletes társasházának legfelső szintjén található, 70 m²-es, erkélyes, háromszobás lakás pontosan ezt az élményt adja.
Csendes, rendezett lépcsőház, mindössze nyolc lakásos társasház, biztonságos környezet – itt nincs átjáróház-hangulat, csak nyugalom.
RÖVID ÖSSZEFOGLALÓ
• XV. kerület – Körakkáspark
• 70 m² lakótér + 4 m² erkély
• 3 külön nyíló szoba
• legfelső emelet (3/3)
• zárt, tiszta lépcsőház
• panelprogramos szigetelés – már kifizetve
• műanyag nyílászárók
• tehermentes ingatlan
• közös tároló + pince
AZ ELHELYEZKEDÉS – NYUGALOM ÉS ÉLHETŐ TEREK
A Körakkáspark azon kevés budapesti részek egyike, ahol valóban érződik a tér és a levegő.
Nem zsúfolt, nem zajos — inkább rendezett, zöld és kimondottan élhető.
A házak alacsonyak, sok a fa, a parkosított területek természetesen simulnak bele a környezetbe. Itt a reggeli kávé nem dudálásra, hanem csendre indul.
A közelben minden megtalálható, ami a mindennapokhoz kell: boltok, szolgáltatások, tömegközlekedés gyorsan elérhető, miközben a lakás környezete megőrzi nyugodt karakterét.
AZ ÉPÜLET – KIS LAKÓKÖZÖSSÉG, JÓ ÁLLAPOT
A háromemeletes társasház zárt lépcsőházas, rendezett és csendes.
Mindössze nyolc lakás — nincs folyamatos jövés-menés, nincs zaj.
A panelprogram keretében az épület szigetelése már elkészült és rendezett, a nyílászárók műanyagra lettek cserélve, így a hő- és hangszigetelés is kifejezetten jó.
A LAKÁS – VILÁGOS TEREK, JÓ ALAPOK
A lakás elrendezése kifejezetten praktikus:
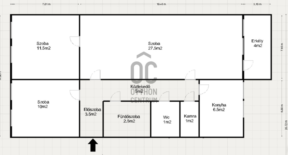
tágas, 27,5 m²-es nappali vagy nagy szoba
két külön nyíló hálószoba
külön konyha
fürdő + külön WC
kamra
közlekedő és előszoba jól kihasználható terekkel
4 m²-es erkély
A felső emeleti elhelyezkedésnek köszönhetően a lakás világos egész nap, és különösen csendes.
Állapotát tekintve részben felújítandó, ami kiváló lehetőség arra, hogy az új tulajdonos saját ízlésére formálja — a nyílászárók már korszerűek, az épület műszaki állapota rendezett, így a fókusz valóban a belső tér kialakításán lehet.
MIÉRT JÓ VÁLASZTÁS?
✔ keresett, alacsony házas környék
✔ legfelső emelet – nincs feletted lakó
✔ világos, jól szellőző lakás
✔ csendes társasház
✔ jó alap egy értéknövelő felújításhoz
✔ tehermentes, gyorsan birtokba vehető
Ez a lakás ideális választás lehet:
– saját otthonnak nyugodt környezetben
– családnak a jó elosztás miatt
– befektetésnek is, mert a környék stabilan keresett
Ha szeretnél egy valóban élhető, csendes, jó adottságú lakást egy ritka adottságú környéken, ez az ingatlan megér egy személyes megtekintést.
Díjmentes, bankfüggetlen hiteltanácsadással támogatjuk vevő ügyfeleinket a számukra legelőnyösebb finanszírozási döntések meghozatalában. Opcionálisan igénybe vehető kiegészítő szolgáltatásainkkal – mint ügyvédi közreműködés, energetikai tanúsítvány vagy villamos biztonsági felülvizsgálat – teljes körű szakmai támogatást nyújtunk az adásvétel folyamatának minden egyes lépésénél.
----------------------------------------------
A hirdetésben szereplő információk tájékoztató jellegűek. A tévedés és az árváltoztatás jogát fenntartjuk.
Van az a lakás, ahová belépve az ember azonnal érzi: itt jó élni.
Fényes terek, nyugalom és egy olyan ház, ahol valóban otthon vannak az emberek – nem csak laknak.
Ez a XV. kerületi Körakkáspark egyik háromemeletes társasházának legfelső szintjén található, 70 m²-es, erkélyes, háromszobás lakás pontosan ezt az élményt adja.
Csendes, rendezett lépcsőház, mindössze nyolc lakásos társasház, biztonságos környezet – itt nincs átjáróház-hangulat, csak nyugalom.
RÖVID ÖSSZEFOGLALÓ
• XV. kerület – Körakkáspark
• 70 m² lakótér + 4 m² erkély
• 3 külön nyíló szoba
• legfelső emelet (3/3)
• zárt, tiszta lépcsőház
• panelprogramos szigetelés – már kifizetve
• műanyag nyílászárók
• tehermentes ingatlan
• közös tároló + pince
AZ ELHELYEZKEDÉS – NYUGALOM ÉS ÉLHETŐ TEREK
A Körakkáspark azon kevés budapesti részek egyike, ahol valóban érződik a tér és a levegő.
Nem zsúfolt, nem zajos — inkább rendezett, zöld és kimondottan élhető.
A házak alacsonyak, sok a fa, a parkosított területek természetesen simulnak bele a környezetbe. Itt a reggeli kávé nem dudálásra, hanem csendre indul.
A közelben minden megtalálható, ami a mindennapokhoz kell: boltok, szolgáltatások, tömegközlekedés gyorsan elérhető, miközben a lakás környezete megőrzi nyugodt karakterét.
AZ ÉPÜLET – KIS LAKÓKÖZÖSSÉG, JÓ ÁLLAPOT
A háromemeletes társasház zárt lépcsőházas, rendezett és csendes.
Mindössze nyolc lakás — nincs folyamatos jövés-menés, nincs zaj.
A panelprogram keretében az épület szigetelése már elkészült és rendezett, a nyílászárók műanyagra lettek cserélve, így a hő- és hangszigetelés is kifejezetten jó.
A LAKÁS – VILÁGOS TEREK, JÓ ALAPOK
A lakás elrendezése kifejezetten praktikus:
tágas, 27,5 m²-es nappali vagy nagy szoba
két külön nyíló hálószoba
külön konyha
fürdő + külön WC
kamra
közlekedő és előszoba jól kihasználható terekkel
4 m²-es erkély
A felső emeleti elhelyezkedésnek köszönhetően a lakás világos egész nap, és különösen csendes.
Állapotát tekintve részben felújítandó, ami kiváló lehetőség arra, hogy az új tulajdonos saját ízlésére formálja — a nyílászárók már korszerűek, az épület műszaki állapota rendezett, így a fókusz valóban a belső tér kialakításán lehet.
MIÉRT JÓ VÁLASZTÁS?
✔ keresett, alacsony házas környék
✔ legfelső emelet – nincs feletted lakó
✔ világos, jól szellőző lakás
✔ csendes társasház
✔ jó alap egy értéknövelő felújításhoz
✔ tehermentes, gyorsan birtokba vehető
Ez a lakás ideális választás lehet:
– saját otthonnak nyugodt környezetben
– családnak a jó elosztás miatt
– befektetésnek is, mert a környék stabilan keresett
Ha szeretnél egy valóban élhető, csendes, jó adottságú lakást egy ritka adottságú környéken, ez az ingatlan megér egy személyes megtekintést.
Díjmentes, bankfüggetlen hiteltanácsadással támogatjuk vevő ügyfeleinket a számukra legelőnyösebb finanszírozási döntések meghozatalában. Opcionálisan igénybe vehető kiegészítő szolgáltatásainkkal – mint ügyvédi közreműködés, energetikai tanúsítvány vagy villamos biztonsági felülvizsgálat – teljes körű szakmai támogatást nyújtunk az adásvétel folyamatának minden egyes lépésénél.
----------------------------------------------
A hirdetésben szereplő információk tájékoztató jellegűek. A tévedés és az árváltoztatás jogát fenntartjuk.
Registration Number
H513375
Property Details
Sales
for sale
Legal Status
used
Character
apartment
Construction Method
panel
Net Size
70 m²
Gross Size
80 m²
Size of Terrace / Balcony
4 m²
Heating
individual district heating
Ceiling Height
260 cm
Number of Levels Within the Property
1
Orientation
South
Staircase Type
enclosed staircase
Condition
To be renovated
Condition of Facade
Good
Condition of Staircase
Good
Basement
Shared
Neighborhood
quiet, good transport, green, central
Year of Construction
1974
Number of Bathrooms
1
Position
garden-facing
Common Costs
18000
Water
Available
Gas
Available
Electricity
Available
Sewer
Available
Storage
Shared
Rooms
room
27.5 m²
room
11.5 m²
room
10 m²
kitchen
6.5 m²
bathroom
2.5 m²
toilet
1 m²
pantry
1 m²
corridor
5 m²
entryway
3.5 m²
balcony
4 m²
Ruczek Krisztina
Credit Expert