87,900,000 Ft
231,000 €
- 42m²
- 2 Rooms
- 3rd floor
2023-as átadású, magas műszaki tartalmú, 28 lakásos társasház 3. emeletén eladó egy nappali + 1 hálós, nagy erkélyes, déli fekvésű, napsütötte lakás.
A lakás a modern kor műszaki elvárásai szerint épült, mint például:
•Hőszivattyús mennyezeti hűtő/fűtő rendszer;
•Távolról, helyiségenként vezérelhető hőmérséklet-beállítás;
•Prémium burkolatok és szaniterek;
•Mosdószekrény mosdóval, zuhanyfal és LED világítású tükör;
•A plafonon rejtett LED világításhoz kiállás készítése;
•Videós kaputelefon.
Az árban benne vannak a beépített bútorok, úgymint előszobafal cipőtartóval, az egyik falat teljesen betöltő gardróbszekrény a hálószobában, valamint a konyhabútor a beépített gépekkel. A konyhában az alábbi gépek találhatóak: nagyméretű hűtő mélyhűtővel, mosogatógép, főzőlap, sütő, szagelszívó, mikró.
A ház elhelyezkedése kiváló, a Gyöngyösi utcai metrómegálló pár perces séta, 500 méteren belül szórakozási és bevásárlási lehetőségek (pl. Tesco extra, Lidl, Duna Pláza) is elérhetőek.
A lakáshoz tartozik egy normál méretű parkoló a -1. szinten (ára 7MFt), valamint egy 4 m2 alapterületű tároló (ára 3 MFt) a földszinten.
Ha meg szeretné nézni a lakást, hívjon telefonon.
A lakás a modern kor műszaki elvárásai szerint épült, mint például:
•Hőszivattyús mennyezeti hűtő/fűtő rendszer;
•Távolról, helyiségenként vezérelhető hőmérséklet-beállítás;
•Prémium burkolatok és szaniterek;
•Mosdószekrény mosdóval, zuhanyfal és LED világítású tükör;
•A plafonon rejtett LED világításhoz kiállás készítése;
•Videós kaputelefon.
Az árban benne vannak a beépített bútorok, úgymint előszobafal cipőtartóval, az egyik falat teljesen betöltő gardróbszekrény a hálószobában, valamint a konyhabútor a beépített gépekkel. A konyhában az alábbi gépek találhatóak: nagyméretű hűtő mélyhűtővel, mosogatógép, főzőlap, sütő, szagelszívó, mikró.
A ház elhelyezkedése kiváló, a Gyöngyösi utcai metrómegálló pár perces séta, 500 méteren belül szórakozási és bevásárlási lehetőségek (pl. Tesco extra, Lidl, Duna Pláza) is elérhetőek.
A lakáshoz tartozik egy normál méretű parkoló a -1. szinten (ára 7MFt), valamint egy 4 m2 alapterületű tároló (ára 3 MFt) a földszinten.
Ha meg szeretné nézni a lakást, hívjon telefonon.
Registration Number
H513355
Property Details
Sales
for sale
Legal Status
used
Character
apartment
Construction Method
brick
Net Size
42 m²
Gross Size
46.2 m²
Size of Terrace / Balcony
9.5 m²
Heating
values.realestate.futes.26
Ceiling Height
270 cm
Number of Levels Within the Property
1
Orientation
South
Staircase Type
enclosed staircase
Condition
Excellent
Condition of Facade
Excellent
Condition of Staircase
Excellent
Neighborhood
good transport
Year of Construction
2023
Number of Bathrooms
1
Position
street-facing
Garage
Mandatory to buy
Water
Available
Electricity
Available
Sewer
Available
Elevator
available
Storage
Mandatory to buy
Distance to Waterfront
200 meters
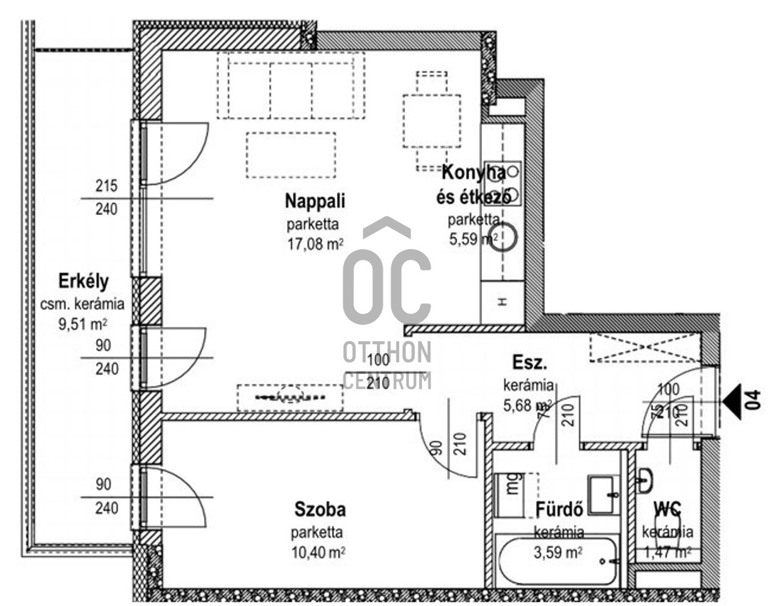
Rooms
open-plan kitchen and living room
22.7 m²
bedroom
10.4 m²
bathroom
3.6 m²
toilet
1.5 m²
Németh István
Credit Expert