169,000,000 Ft
438,000 €
- 198m²
- 5 Rooms
Családi ház Zuglóban!
Zuglóban eladásra kínálok egy két lakószinttel rendelkező családi házat. A Bosnyák tér vonzáskörzetében, Alsórákoson elhelyezkedő ház
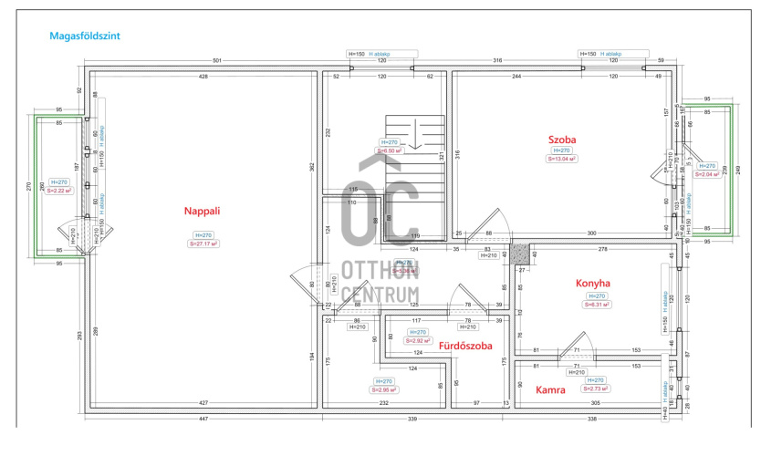
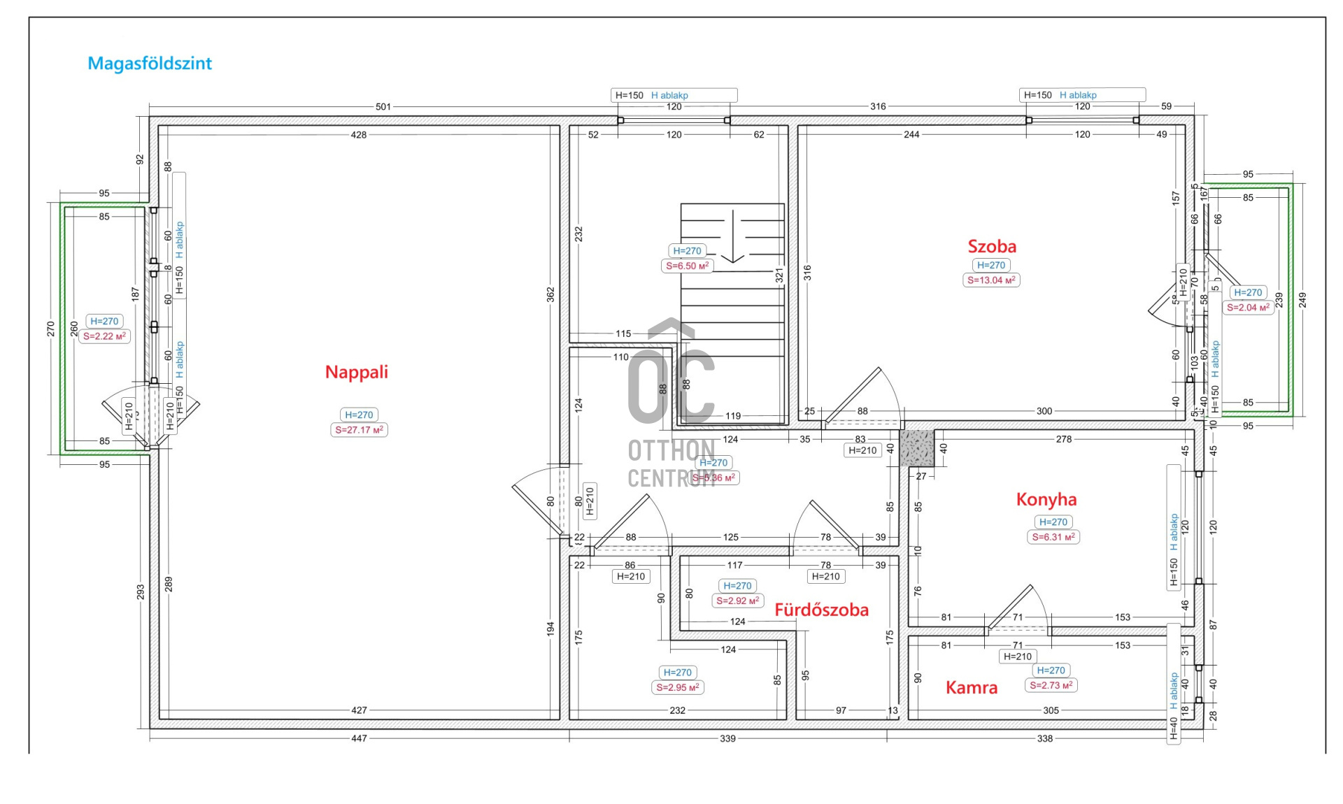
átlagos, felújítandó állapotú. Az alagsorban található egy garázs, mosókonyha és egy hobbiszoba. A magasföldszinten egy tágas nappali, egy
hálószoba egy konyha és egy fürdőszoba wc-vel.A ház tetőterét a 80-s években építették be. Itt helyet kapott 4 hálószoba, egy fürdőszoba wc-vel
és egy gardrobeszoba. A házban 3 évvel ezelőtt cserélték a kazánt, két évvel ezelőtt pedig a tetőfelújítás történt meg.
A kert viszonylag kisebb méretű azonban pont akkora melyet kiválóan tudunk kikapcsolódásra, sütögetésre és gyerekekkel közös játékra használni.
Várom hívását, szívesen bemutatom Önnek ezt a kiváló és csendes helyen lévő házat!
átlagos, felújítandó állapotú. Az alagsorban található egy garázs, mosókonyha és egy hobbiszoba. A magasföldszinten egy tágas nappali, egy
hálószoba egy konyha és egy fürdőszoba wc-vel.A ház tetőterét a 80-s években építették be. Itt helyet kapott 4 hálószoba, egy fürdőszoba wc-vel
és egy gardrobeszoba. A házban 3 évvel ezelőtt cserélték a kazánt, két évvel ezelőtt pedig a tetőfelújítás történt meg.
A kert viszonylag kisebb méretű azonban pont akkora melyet kiválóan tudunk kikapcsolódásra, sütögetésre és gyerekekkel közös játékra használni.
Várom hívását, szívesen bemutatom Önnek ezt a kiváló és csendes helyen lévő házat!
Registration Number
H511823
Property Details
Sales
for sale
Legal Status
used
Character
house
Construction Method
brick
Net Size
198 m²
Gross Size
208 m²
Plot Size
239 m²
Size of Terrace / Balcony
14 m²
Heating
Gas circulator
Ceiling Height
274 cm
Number of Levels Within the Property
3
Orientation
South-West
View
Green view
Condition
To be renovated
Condition of Facade
Good
Basement
Independent
Neighborhood
quiet, good transport, green
Year of Construction
1955
Number of Bathrooms
2
Condominium Garden
yes
Garage
Included in the price
Garage Spaces
1
Number of Covered Parking Spots
2
Water
Available
Gas
Available
Electricity
Available
Sewer
Available
Storage
Independent
Rooms
living room
25 m²
kitchen
8 m²
room
10 m²
room
12 m²
bathroom-toilet
4 m²
bathroom-toilet
3 m²
other room
6 m²
Kirmáyer Elvíra
Credit Expert