112,500,000 Ft
298,000 €
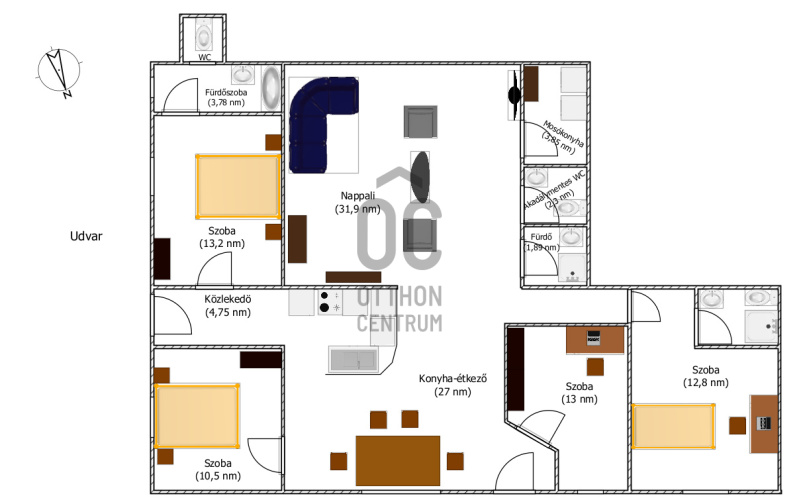
- 141m²
- 4 Rooms
5 szobás,141 nm-es társasházi lakás saját udvarral, kiülő terasszal eladó Szekszárd Előhegy városrészében!
Fedezze fel ezt a páratlan lehetőséget Szekszárdon, ahol a kertvárosi jelleg nem esik messze a városközponttól.Ezzel a kiváló állapotban lévő ingatlannal egy nagy méretű nappalit és 4 hálószobát kínálunk.
A lakást jó szívvel ajánlom nagy családok (akár 3 generáció) számára, azonban vállalkozás folytatására is alkalmas!
A számos helyiség biztosítja a szeparációt, a nagy közös tér pedig az együttlétet.
A három fürdőszoba is megfelelő privát teret biztosít az itt lakók / dolgozók számára.
Az ingatlan elhelyezkedése különösen vonzó, hiszen a csendes környék biztosítja a nyugodt életvitel lehetőségét, miközben a város központja karnyújtásra található.
A lakásban a fűtésről elektromos norvég fűtőpanelek gondoskodnak. Ez nem csak hatékony, hanem környezetbarát megoldást is kínál.
A lakás jelenleg vendégházként működik, kialakult vendégkörrel, e tevékenységet, amennyiben kedve tartja, Ön is folytathatja!
A környék biztonságos, barátságos közösséggel rendelkezik, ahol a szomszédok ismerősként üdvözlik egymást.
A lakás közvetlen közelében általános és középiskolát, orvosi rendelőket is talál.
A közlekedési lehetőségek is kedvezőek: az autóval való közlekedés egyszerű, és a város tömegközlekedési rendszere is jól kiépített, így a helyi szolgáltatások, boltok könnyen elérhetőek. Ne hagyja ki ezt a remek lehetőséget, hogy egy olyan ingatlan tulajdonosa legyen, amely nemcsak kényelmet, hanem egy életstílust is kínál.
Fontos mindezeken túl, hogy tudja:
* az épület külső szigetelelést kapott
* hőszigetelő műanyag külső nyíílászárók találhatók mindenütt
* a burkolóanyagok jó ízlésről tanúskodnak
* a lakásban 3 fázis (ipari áram) található
* a 2024-es év során az ingatlan teljes körű újrafestése megtörtént
* a ház előtt tágas parkoló lett kiépítve
* a zárt, saját udvarban akár 3 autó is szilárd burkolaton parkolhat
Ha bármilyen kérdése van az ingatlannal kapcsolatban, vagy szeretné megtekinteni, kérem, bizalommal keressen!
Az Ön igényei és elvárásai fontosak számunkra, és szívesen segítünk Önnek az ingatlanpiacon való tájékozódásban.
Teljes körű pénzügyi megoldások díjmentesen.
Minden élethelyzetre végzünk pénzügyi elemzést - ha vásárolni szeretne, segítünk, hogy ezt a legjobb feltételek mellett tegye; ha eladni szeretné ingatlanát, nézzük meg, hátha érdemes meglévő hitelét átváltani.
Keressen bizalommal, szakértők vagyunk!
A lakást jó szívvel ajánlom nagy családok (akár 3 generáció) számára, azonban vállalkozás folytatására is alkalmas!
A számos helyiség biztosítja a szeparációt, a nagy közös tér pedig az együttlétet.
A három fürdőszoba is megfelelő privát teret biztosít az itt lakók / dolgozók számára.
Az ingatlan elhelyezkedése különösen vonzó, hiszen a csendes környék biztosítja a nyugodt életvitel lehetőségét, miközben a város központja karnyújtásra található.
A lakásban a fűtésről elektromos norvég fűtőpanelek gondoskodnak. Ez nem csak hatékony, hanem környezetbarát megoldást is kínál.
A lakás jelenleg vendégházként működik, kialakult vendégkörrel, e tevékenységet, amennyiben kedve tartja, Ön is folytathatja!
A környék biztonságos, barátságos közösséggel rendelkezik, ahol a szomszédok ismerősként üdvözlik egymást.
A lakás közvetlen közelében általános és középiskolát, orvosi rendelőket is talál.
A közlekedési lehetőségek is kedvezőek: az autóval való közlekedés egyszerű, és a város tömegközlekedési rendszere is jól kiépített, így a helyi szolgáltatások, boltok könnyen elérhetőek. Ne hagyja ki ezt a remek lehetőséget, hogy egy olyan ingatlan tulajdonosa legyen, amely nemcsak kényelmet, hanem egy életstílust is kínál.
Fontos mindezeken túl, hogy tudja:
* az épület külső szigetelelést kapott
* hőszigetelő műanyag külső nyíílászárók találhatók mindenütt
* a burkolóanyagok jó ízlésről tanúskodnak
* a lakásban 3 fázis (ipari áram) található
* a 2024-es év során az ingatlan teljes körű újrafestése megtörtént
* a ház előtt tágas parkoló lett kiépítve
* a zárt, saját udvarban akár 3 autó is szilárd burkolaton parkolhat
Ha bármilyen kérdése van az ingatlannal kapcsolatban, vagy szeretné megtekinteni, kérem, bizalommal keressen!
Az Ön igényei és elvárásai fontosak számunkra, és szívesen segítünk Önnek az ingatlanpiacon való tájékozódásban.
Teljes körű pénzügyi megoldások díjmentesen.
Minden élethelyzetre végzünk pénzügyi elemzést - ha vásárolni szeretne, segítünk, hogy ezt a legjobb feltételek mellett tegye; ha eladni szeretné ingatlanát, nézzük meg, hátha érdemes meglévő hitelét átváltani.
Keressen bizalommal, szakértők vagyunk!
Registration Number
H510953
Property Details
Sales
for sale
Legal Status
used
Character
house
Construction Method
brick
Net Size
141 m²
Gross Size
148 m²
Plot Size
1,156 m²
Heating
electric, infrared
Ceiling Height
280 cm
Number of Levels Within the Property
1
Orientation
East
View
Green view
Condition
Excellent
Condition of Facade
Excellent
Neighborhood
good transport, green
Year of Construction
1995
Number of Bathrooms
3
Water
Available
Electricity
Available
Sewer
Available
Multi-Generational
yes
Rooms
living room
32 m²
bedroom
10.5 m²
bedroom
13.25 m²
bedroom
13 m²
open-plan kitchen and dining room
26 m²
bathroom-toilet
2.8 m²
bathroom
3.78 m²
bathroom
1.89 m²
laundry room
3.85 m²
toilet-washbasin
2.3 m²
corridor
4.75 m²
corridor
2.34 m²
toilet
1.07 m²
terrace
27 m²
Moczok Ágnes
Credit Expert