For sale family house, H514194
Kalocsa

230,000,000 Ft

607,000 €

  • 252.9m²
  • 6 Rooms
Exclusive Contract

Kalocsán a városközpontban lakóház/iroda eladó!

Kalocsán a Szent István király utcában lakóház és irodaként nyilvántartott ingatlan eladó!

A főépület jó állapotú melyben található 6 szoba, 2 fürdőszobával, az udvarában található melléképületben pedig tárlóhelyiségek.

Szeretné megtekinteni? Hívjon , megmutatom!

Teljes körű pénzügyi megoldások ügyintézése díjmentesen.
Minden élethelyzetre végzünk pénzügyi elemzést - ha vásárolni szeretne, segítünk, hogy ezt a legjobb feltételek mellett tegye; ha eladni szeretné ingatlanát,nézzük meg, hátha érdemes meglévő hitelét átváltani.
Keressen bizalommal, szakértők vagyunk!
Reg.szám:H514194

Registration Number

H514194

Property Details

Sales
for sale
Legal Status
used
Character
house
Construction Method
brick
Net Size
252.9 m²
Gross Size
335.9 m²
Plot Size
370 m²
Heating
Gas circulator
Ceiling Height
280 cm
Number of Levels Within the Property
1
Orientation
North
Condition
Average
Condition of Facade
Average
Basement
Independent
Neighborhood
good transport, central
Year of Construction
1970
Number of Bathrooms
2
Water
Available
Gas
Available
Electricity
Available
Sewer
Available
Storage
Independent

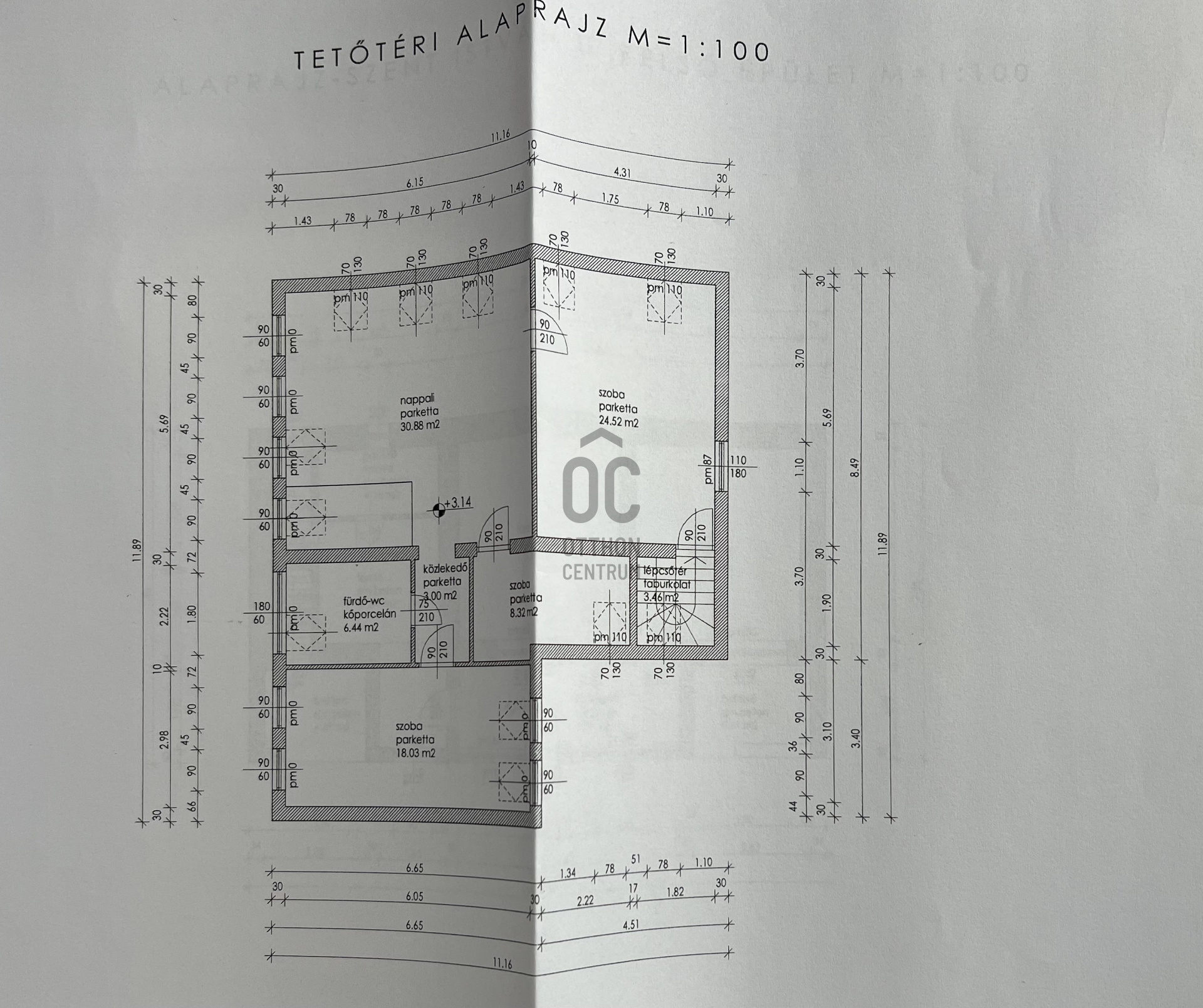
Rooms

cellar
83 m²
corridor
5.68 m²
kitchen
11.88 m²
bathroom
5.42 m²
corridor
9.03 m²
toilet
1.77 m²
corridor
6.14 m²
room
20.11 m²
living room
31.07 m²
pantry
1.62 m²
corridor
3 m²
room
8.32 m²
bathroom-toilet
6.44 m²
room
18.03 m²
living room
30.88 m²
room
24.52 m²
other room
69.03 m²
Moczok Ágnes
Moczok Ágnes

Credit Expert

From Our Office Listings - Szekszárd - Széchenyi utca

for sale semi-detached house

Index image
data_sheet.details.realestate.section.main.otthonstart_flag.label
11

for sale apartment

Index image
data_sheet.details.realestate.section.main.otthonstart_flag.label
18

for sale family house

Index image
data_sheet.details.realestate.section.main.otthonstart_flag.label
7

for sale commercial property

Index image
3

for sale apartment

Index image
data_sheet.details.realestate.section.main.otthonstart_flag.label
6

for sale family house

Index image
data_sheet.details.realestate.section.main.otthonstart_flag.label
14

for sale panel apartment

Index image
data_sheet.details.realestate.section.main.otthonstart_flag.label
4

for sale agricultural property

Index image
1