59,900,000 Ft
156,000 €
- 37m²
- 2 Rooms
- 1st floor
In the heart of Újlipótváros, a 37 m², 2-room panel apartment on the 1st floor is for sale.
In one of the most popular areas of Budapest's XIII district, in the heart of Újlipótváros, a 37 m² apartment in good condition is looking for a new owner in a neighborhood with excellent transportation and great infrastructure. If you are looking for a logically laid out property with low maintenance costs, you must check this out!
**NEIGHBORHOOD AND TRANSPORTATION**
✅ Budapest XIII district, Újlipótváros, Vág Street.
✅ Centrally located, well-served, and very popular, value-stable area.
✅ A 5-minute walk to the M3 metro station at Dózsa György út, with several bus and tram lines available in the area.
✅ Vág Street provides a quiet residential environment while still being close to the central part of Váci út.
✅ Lidl, Spar, small shops, bakeries, and drugstores are all within walking distance.
✅ Playgrounds, smaller parks, and sports facilities ensure a pleasant, family-friendly environment.
✅ Pharmacies, post offices, banks, cafés, and restaurants can be reached in a few minutes.
✅ Both by metro and car, Nyugati, Westend, and the city center can be reached in a few minutes.
**BUILDING PARAMETERS:**
➡️ A panel building built in the 1970s, 14 stories high, with 2 elevators.
➡️ The exterior and interior facades, as well as the stairwell, are all in good condition.
➡️ The building has participated in the panel program.
➡️ The residential community is organized, calm, and of mixed age.
➡️ The apartment includes a private parking space with a gate and a shared storage room.
➡️ Both are included in the price, so they can be used without additional costs.
**APARTMENT FEATURES AND PARAMETERS:**
✅ 1st-floor, 37 m², in good condition, ready to move in after a fresh coat of paint.
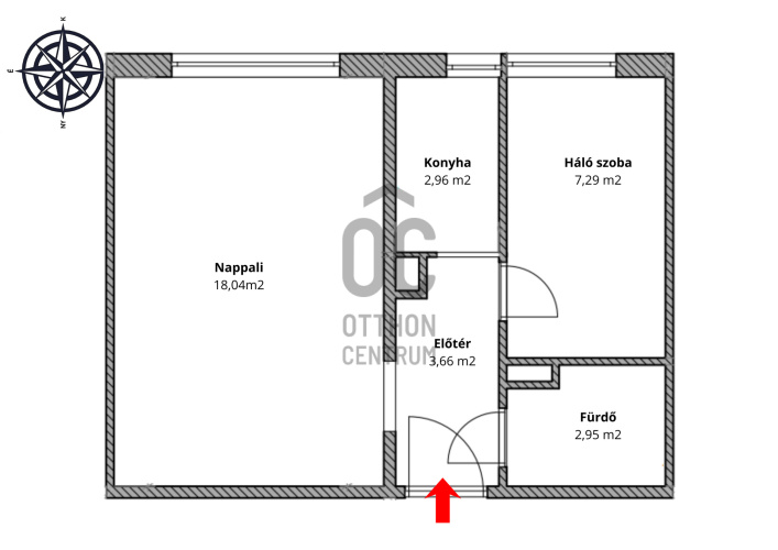
✅ Layout: hallway, windowed kitchen, living room, bedroom, bathroom with shower.
✅ The windows of the rooms overlook a quiet inner courtyard.
✅ The living room is east-facing, providing normal lighting conditions, with sunlight streaming in during the morning hours.
✅ The windows have been replaced with heat-insulating plastic ones.
✅ The rooms are covered with laminate flooring, while the hallway, kitchen, and bathroom have tiles.
✅ The bedroom features a large built-in wardrobe for storage.
✅ Common costs are 8,400 HUF/month, and maintenance costs are favorable.
✅ Heating and hot water are provided by district heating.
**THE PROPERTY CAN BE VIEWED:**
➡️ In person,
➡️ ONLINE with a personal presentation.
**WE ALSO HELP WITH FINANCING THROUGH ONLINE ADMINISTRATION:**
✅ Our bank-independent credit center will compare offers from all banks and financial institutions free of charge.
✅ All you need to do is talk to our colleague and then select the most suitable long-term option from the competitive offers.
✅ Our experts, with 20 years of professional experience, are ready to assist you with consumer-friendly mortgages tailored to individual needs, baby waiting loans, and comprehensive CSOK PLUS and HOME START program administration.
✅ By prior arrangement, even after normal working hours.
Due to the excellent location of the property, it holds many opportunities. Whether for personal use or as an investment, it is definitely worth checking out!
I LOOK FORWARD TO YOUR CALL every day of the week!
**NEIGHBORHOOD AND TRANSPORTATION**
✅ Budapest XIII district, Újlipótváros, Vág Street.
✅ Centrally located, well-served, and very popular, value-stable area.
✅ A 5-minute walk to the M3 metro station at Dózsa György út, with several bus and tram lines available in the area.
✅ Vág Street provides a quiet residential environment while still being close to the central part of Váci út.
✅ Lidl, Spar, small shops, bakeries, and drugstores are all within walking distance.
✅ Playgrounds, smaller parks, and sports facilities ensure a pleasant, family-friendly environment.
✅ Pharmacies, post offices, banks, cafés, and restaurants can be reached in a few minutes.
✅ Both by metro and car, Nyugati, Westend, and the city center can be reached in a few minutes.
**BUILDING PARAMETERS:**
➡️ A panel building built in the 1970s, 14 stories high, with 2 elevators.
➡️ The exterior and interior facades, as well as the stairwell, are all in good condition.
➡️ The building has participated in the panel program.
➡️ The residential community is organized, calm, and of mixed age.
➡️ The apartment includes a private parking space with a gate and a shared storage room.
➡️ Both are included in the price, so they can be used without additional costs.
**APARTMENT FEATURES AND PARAMETERS:**
✅ 1st-floor, 37 m², in good condition, ready to move in after a fresh coat of paint.
✅ Layout: hallway, windowed kitchen, living room, bedroom, bathroom with shower.
✅ The windows of the rooms overlook a quiet inner courtyard.
✅ The living room is east-facing, providing normal lighting conditions, with sunlight streaming in during the morning hours.
✅ The windows have been replaced with heat-insulating plastic ones.
✅ The rooms are covered with laminate flooring, while the hallway, kitchen, and bathroom have tiles.
✅ The bedroom features a large built-in wardrobe for storage.
✅ Common costs are 8,400 HUF/month, and maintenance costs are favorable.
✅ Heating and hot water are provided by district heating.
**THE PROPERTY CAN BE VIEWED:**
➡️ In person,
➡️ ONLINE with a personal presentation.
**WE ALSO HELP WITH FINANCING THROUGH ONLINE ADMINISTRATION:**
✅ Our bank-independent credit center will compare offers from all banks and financial institutions free of charge.
✅ All you need to do is talk to our colleague and then select the most suitable long-term option from the competitive offers.
✅ Our experts, with 20 years of professional experience, are ready to assist you with consumer-friendly mortgages tailored to individual needs, baby waiting loans, and comprehensive CSOK PLUS and HOME START program administration.
✅ By prior arrangement, even after normal working hours.
Due to the excellent location of the property, it holds many opportunities. Whether for personal use or as an investment, it is definitely worth checking out!
I LOOK FORWARD TO YOUR CALL every day of the week!
Registration Number
H510323
Property Details
Sales
for sale
Legal Status
used
Character
apartment
Construction Method
panel
Net Size
37 m²
Gross Size
37 m²
Heating
individual district heating
Ceiling Height
250 cm
Number of Levels Within the Property
1
Orientation
East
Staircase Type
enclosed staircase
Condition
Average
Condition of Facade
Good
Condition of Staircase
Good
Year of Construction
1970
Number of Bathrooms
1
Position
courtyard-facing
Common Costs
8400
Garage
Included in the price
Water
Available
Gas
Available
Electricity
Available
Sewer
Available
Elevator
available
Storage
Shared
Rooms
living room
18.04 m²
kitchen
2.96 m²
entryway
3.66 m²
room
7.29 m²
bathroom
2.95 m²
Medovarszki Andrea
Credit Expert