150,000,000 Ft
393,000 €
- 73m²
- 3 Rooms
- ground floor
III. Kerületben egy újszerű kertkapcsolatos 3 szobás TERASSZAL 73 m2-es ingatlan ELADÓ!
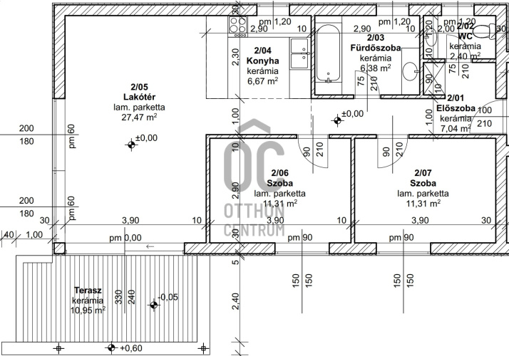
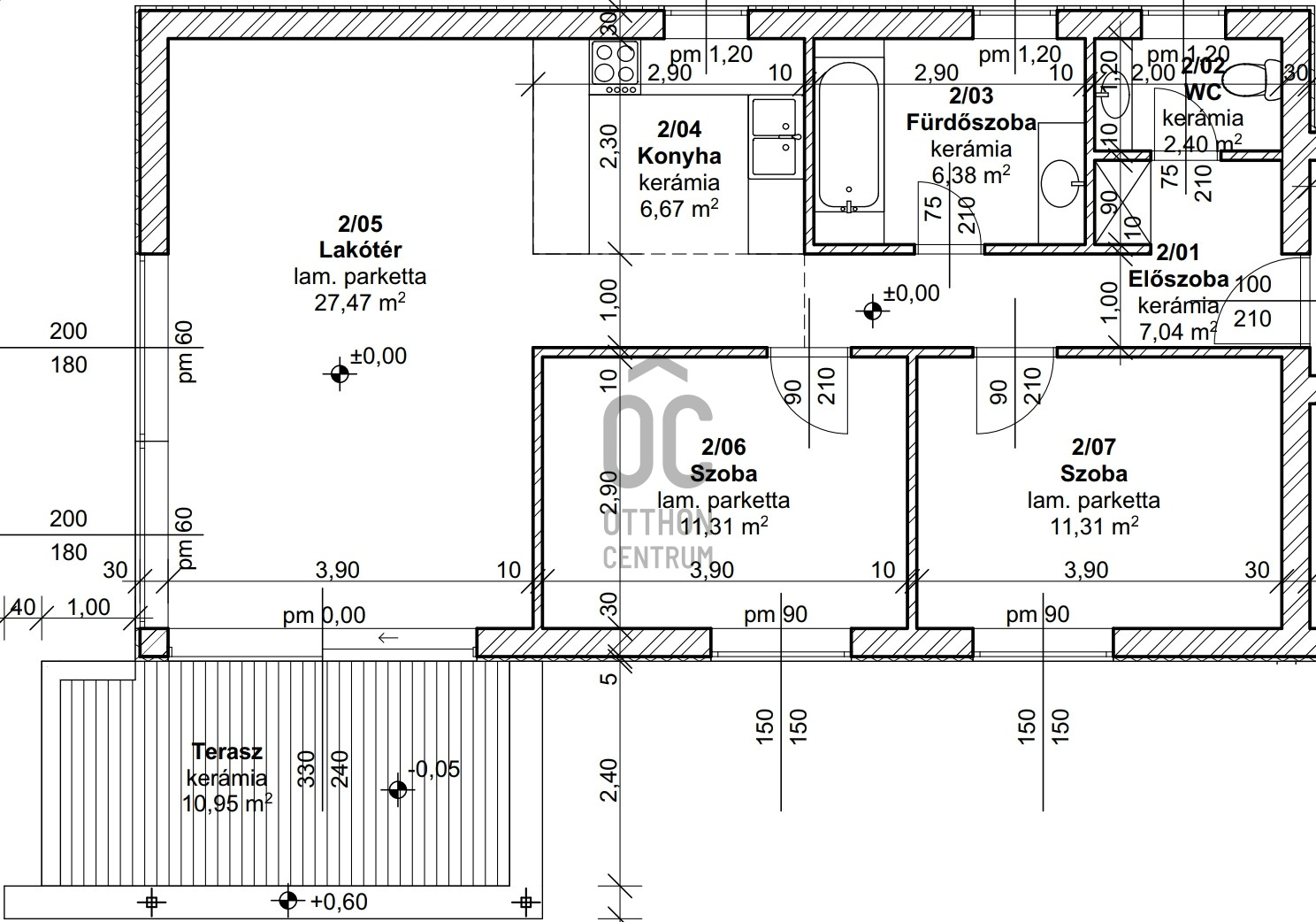
A III. kerület zöldövezeti részén eladásra kínálok egy 73 m2-es, 3 szobás, 10.95 m2-es teraszos földszint lakást!
A lakás három szobájának jól átgondolt elrendezése ideális pároknak, kiscsaládoknak vagy akár azoknak is, akik otthonról dolgoznak. A tágas nappaliból közvetlenül nyílik a közel 11 négyzetméteres, déli tájolású terasz, amely a zöld kertre néz, így egész évben nyugalmat és kellemes panorámát biztosít.
A lakás modern műszaki tartalommal rendelkezik: hőszivattyús fűtése energiatakarékos és komfortos megoldást kínál.
A kényelemhez tartozik továbbá egy különálló WC, valamint egy gondosan kialakított fürdőszoba.
Az ingatlanhoz egy teremgarázs-hely és egy felszíni, nyitott beálló is tartozik, ami nagy előny ebben a környékben!
A ház 2023-ban épült!
Sok extrával felszerelt, okos otthon előkészítéssel rendelkező ingatlan, mely csendes, nyugodt, családias környezetben található. Nagy méretű terasz, saját udvar kapcsolat teszi még kellemesebbé a mindennapokat ebben az ingatlanban, melyet minőségi munkával építenek.
A konyha olasz Veneta Cucine bútorzattal rendelkezik, a felszereltséghez pedig Samsung hűtő, valamint Miele mosogatógép és sütő tartozik, amelyek garantálják a megbízható és prémium minőségű használatot.
A fürdőszobában Zen Cersanit kád, Hansgrohe zuhany, valamint RAK mosdó és WC található. A falakat Benjamin Moore (USA) festék borítja, az ajtók pedig Juga Doors termékek. A fürdőszobai bútorzatot a Wellis biztosítja, amely stílusos és praktikus kialakításáról ismert.
Különnyíló szobák, külön wc és fürdőszoba, hőszivattyús fűtés-hűtés rendszer és számos opcionálisan kérhető extra mint például Zigbee / Z-wave alapú, csillagpontos villanyszereléssel kombinált okos otthon rendszer. Okos otthonba bevonható területek árnyékolástechnika (redőnyök és zsaluzia), szekunder köri fűtés/hűtés rendszer, légtechnika (központi szellőztetési rendszer integrációja), világítástechnika (villanykapcsolók integrációja), kert öntözőrendszer, szobánkénti hőmérséklet szabályozási lehetőség, motoros szelepekkel, csapadékvíz tárolására szolgáló zárt tároló építése, locsoló rendszerrel történő integrációval, melyek tovább tudják fokozni ezen ingatlan nyújtotta kényelmet.
A környék ideális a pihenésre, feltöltődésre. A zöld, friss levegős, madárcsicsergős környezetnek köszönhetően magas minőségű életmódot élhetünk. Pár perc sétatávolságra található vonat és buszmegálló.
Hivatalos elnevezése „Minimális energiaigényű”. Ezen ingatlanok üzemben tartási költségei, a mai technikai megoldások mellett, az elérhető legalacsonyabbak. Az ebbe a kategóriába tartozó ingatlanok messze túlteljesítik a „közel nulla energiaigény” építésügyi energetikai előírásait.
Egyedi igényekre szabott lakáshitelekkel állunk rendelkezésére. Bankfüggetlen hitelcentrumunk az országban elérhető összes bank és hitelintézet ajánlatát versenyezteti az Ön számára díjmentesen. Munkatársaink nagy szakmai tapasztalattal várják Önt az előre egyeztetett időpontban akár a normál munkaidő után is.
Bővebb információért és a megtekintéssel kapcsolatban hívjon bizalommal!
A lakás három szobájának jól átgondolt elrendezése ideális pároknak, kiscsaládoknak vagy akár azoknak is, akik otthonról dolgoznak. A tágas nappaliból közvetlenül nyílik a közel 11 négyzetméteres, déli tájolású terasz, amely a zöld kertre néz, így egész évben nyugalmat és kellemes panorámát biztosít.
A lakás modern műszaki tartalommal rendelkezik: hőszivattyús fűtése energiatakarékos és komfortos megoldást kínál.
A kényelemhez tartozik továbbá egy különálló WC, valamint egy gondosan kialakított fürdőszoba.
Az ingatlanhoz egy teremgarázs-hely és egy felszíni, nyitott beálló is tartozik, ami nagy előny ebben a környékben!
A ház 2023-ban épült!
Sok extrával felszerelt, okos otthon előkészítéssel rendelkező ingatlan, mely csendes, nyugodt, családias környezetben található. Nagy méretű terasz, saját udvar kapcsolat teszi még kellemesebbé a mindennapokat ebben az ingatlanban, melyet minőségi munkával építenek.
A konyha olasz Veneta Cucine bútorzattal rendelkezik, a felszereltséghez pedig Samsung hűtő, valamint Miele mosogatógép és sütő tartozik, amelyek garantálják a megbízható és prémium minőségű használatot.
A fürdőszobában Zen Cersanit kád, Hansgrohe zuhany, valamint RAK mosdó és WC található. A falakat Benjamin Moore (USA) festék borítja, az ajtók pedig Juga Doors termékek. A fürdőszobai bútorzatot a Wellis biztosítja, amely stílusos és praktikus kialakításáról ismert.
Különnyíló szobák, külön wc és fürdőszoba, hőszivattyús fűtés-hűtés rendszer és számos opcionálisan kérhető extra mint például Zigbee / Z-wave alapú, csillagpontos villanyszereléssel kombinált okos otthon rendszer. Okos otthonba bevonható területek árnyékolástechnika (redőnyök és zsaluzia), szekunder köri fűtés/hűtés rendszer, légtechnika (központi szellőztetési rendszer integrációja), világítástechnika (villanykapcsolók integrációja), kert öntözőrendszer, szobánkénti hőmérséklet szabályozási lehetőség, motoros szelepekkel, csapadékvíz tárolására szolgáló zárt tároló építése, locsoló rendszerrel történő integrációval, melyek tovább tudják fokozni ezen ingatlan nyújtotta kényelmet.
A környék ideális a pihenésre, feltöltődésre. A zöld, friss levegős, madárcsicsergős környezetnek köszönhetően magas minőségű életmódot élhetünk. Pár perc sétatávolságra található vonat és buszmegálló.
Hivatalos elnevezése „Minimális energiaigényű”. Ezen ingatlanok üzemben tartási költségei, a mai technikai megoldások mellett, az elérhető legalacsonyabbak. Az ebbe a kategóriába tartozó ingatlanok messze túlteljesítik a „közel nulla energiaigény” építésügyi energetikai előírásait.
Egyedi igényekre szabott lakáshitelekkel állunk rendelkezésére. Bankfüggetlen hitelcentrumunk az országban elérhető összes bank és hitelintézet ajánlatát versenyezteti az Ön számára díjmentesen. Munkatársaink nagy szakmai tapasztalattal várják Önt az előre egyeztetett időpontban akár a normál munkaidő után is.
Bővebb információért és a megtekintéssel kapcsolatban hívjon bizalommal!
Registration Number
H510318
Property Details
Sales
for sale
Legal Status
used
Character
apartment
Construction Method
brick
Net Size
73 m²
Gross Size
84 m²
Size of Terrace / Balcony
10.9 m²
Heating
heat pump
Ceiling Height
270 cm
Orientation
South
View
Green view
Staircase Type
enclosed staircase
Condition
Excellent
Condition of Facade
Excellent
Condition of Staircase
Excellent
Neighborhood
quiet, green
Year of Construction
2023
Number of Bathrooms
1
Position
garden-facing
Garage
Included in the price
Water
Available
Electricity
Available
Sewer
Available
Rooms
open-plan living and dining room
27.47 m²
room
11.31 m²
room
11.31 m²
bathroom-toilet
6.38 m²
kitchen
6.67 m²
toilet
2.4 m²
entryway
7.04 m²