1,534,200 Ft
4,000 €
- 462m²
- 5 Rooms
Prémium luxusvilla a II. kerületben
An exceptional opportunity for families, the TOP property of district 2/A!
In the quiet, suburban part of district 02/A of Budapest, in Adyliget, a stunning, premium-designed, 4-bedroom luxury villa is for sale, which can be an ideal home for a larger family or even a perfect choice for investment purposes. The floor area of the property is 462.87 sqm, while the plot size is 725 sqm, thus providing ample space for comfortable living.
Additional features:
- fantastic eternal panorama
- heat pump, H tariff
- luxury quality exterior and interior cladding
- heated pool
- spacious sauna
- jacuzzi
- 42.72 sqm covered, equipped grill terrace
The house awaits its new residents in excellent, immediately move-in condition, equipped with modern heat pump heating and air conditioning to ensure a pleasant temperature at all times of the year. The interior spaces of the property are dominated by spacious spaces, an ideal location for family gatherings and representation. The elegant design of the property, the built-in furniture and cabinets, and the LED mood lighting "old money" lend elegance and style to the spaces. The 5 bathrooms in the house guarantee comfort and privacy for every family member.
In the impressive garden, the automatic irrigation system continuously ensures the vitality of the plants, and the unmissable panorama offers an exclusive view from all directions. The sauna, heated pool and jacuzzi provide opportunities to spend your free time.
A property video can be sent upon request!
The area is safe and quiet, ideal for families who are looking for a home away from the noise of the city, yet in an easily accessible location. International schools can be found in the area. Transportation is excellent, as the nearby public transportation options provide quick and convenient access to the city center of Budapest. Car transportation is also easy, the main transport routes are easily accessible, and the city center can be reached in 10-15 minutes.
This property is not just a home, but a lifestyle that meets all your needs with its unique design and exclusive solutions. The security door and alarm system provide maximum protection, while the video intercom and video security system provide the convenience of modern technology. If you are interested in the details or have any questions about this unique property, please do not hesitate! Feel free to contact me with any information and I will be happy to help you find the home of your dreams.
In the quiet, suburban part of district 02/A of Budapest, in Adyliget, a stunning, premium-designed, 4-bedroom luxury villa is for sale, which can be an ideal home for a larger family or even a perfect choice for investment purposes. The floor area of the property is 462.87 sqm, while the plot size is 725 sqm, thus providing ample space for comfortable living.
Additional features:
- fantastic eternal panorama
- heat pump, H tariff
- luxury quality exterior and interior cladding
- heated pool
- spacious sauna
- jacuzzi
- 42.72 sqm covered, equipped grill terrace
The house awaits its new residents in excellent, immediately move-in condition, equipped with modern heat pump heating and air conditioning to ensure a pleasant temperature at all times of the year. The interior spaces of the property are dominated by spacious spaces, an ideal location for family gatherings and representation. The elegant design of the property, the built-in furniture and cabinets, and the LED mood lighting "old money" lend elegance and style to the spaces. The 5 bathrooms in the house guarantee comfort and privacy for every family member.
In the impressive garden, the automatic irrigation system continuously ensures the vitality of the plants, and the unmissable panorama offers an exclusive view from all directions. The sauna, heated pool and jacuzzi provide opportunities to spend your free time.
A property video can be sent upon request!
The area is safe and quiet, ideal for families who are looking for a home away from the noise of the city, yet in an easily accessible location. International schools can be found in the area. Transportation is excellent, as the nearby public transportation options provide quick and convenient access to the city center of Budapest. Car transportation is also easy, the main transport routes are easily accessible, and the city center can be reached in 10-15 minutes.
This property is not just a home, but a lifestyle that meets all your needs with its unique design and exclusive solutions. The security door and alarm system provide maximum protection, while the video intercom and video security system provide the convenience of modern technology. If you are interested in the details or have any questions about this unique property, please do not hesitate! Feel free to contact me with any information and I will be happy to help you find the home of your dreams.
Registration Number
H510270
Property Details
Sales
for rent
Legal Status
used
Character
house
Construction Method
brick
Net Size
462 m²
Gross Size
462 m²
Plot Size
725 m²
Size of Terrace / Balcony
57.2 m²
Heating
Gas circulator
Ceiling Height
290 cm
Number of Levels Within the Property
4
Orientation
West
View
Green view
Condition
Excellent
Condition of Facade
Excellent
Neighborhood
quiet, green
Year of Construction
2009
Number of Bathrooms
5
Condominium Garden
yes
Garage
Included in the price
Garage Spaces
3
Number of Covered Parking Spots
3
Water
Available
Gas
Available
Electricity
Available
Sewer
Available
Multi-Generational
yes
Storage
Independent
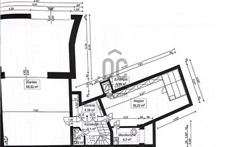
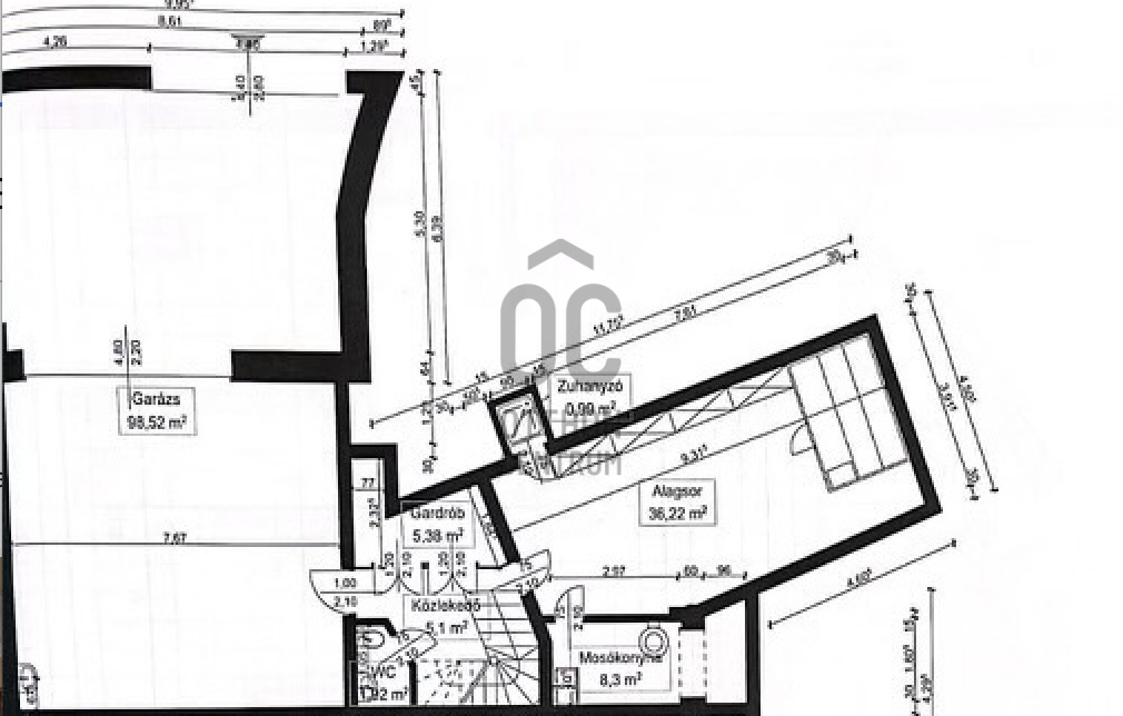
Rooms
garage
98.52 m²
wardrobe
5.38 m²
staircase
4.76 m²
washroom
1.92 m²
laundry room
8.3 m²
shower
0.99 m²
cellar
36.22 m²
entryway
5.68 m²
corridor
11.3 m²
staircase
5 m²
washroom
4.39 m²
kitchen
22.51 m²
living room
45.19 m²
terrace
42.72 m²
staircase
5 m²
corridor
19.24 m²
washroom
5.28 m²
room
28.19 m²
room
24.72 m²
room
14.84 m²
washroom
6.81 m²
staircase
5.32 m²
corridor
22.21 m²
washroom
7.06 m²
room
22.74 m²
wardrobe
8.56 m²