data_sheet.details.realestate.section.main.otthonstart_flag.label
For sale family house,
H509995
Szigetszentmiklós
147,000,000 Ft
375,000 €
- 99m²
- 5 Rooms
Szigetszentmiklós: KÉT LAKÁSSÁ ALAKÍTHATÓ, KÖZPONTI KÉNYELEM ÉS FENNTARTHATÓ ÉRTÉK!
ALAPADATOK:
•Helyszín: Szigetszentmiklós, Központhoz közeli, aszfaltozott utca.
•Ár: 147 M Ft (Irányár)
•Méret: 98.3 m²
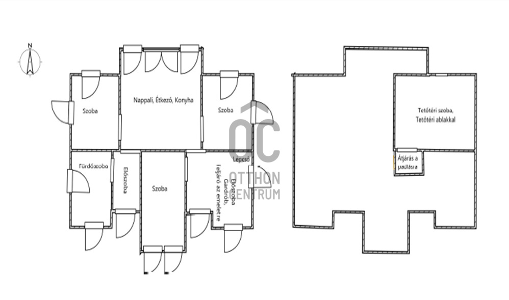
•Szobák száma: 4 Különálló háló + Tágas Nappali/Konyha/Étkező
•Potenciál: Könnyen 2 különálló lakássá osztható, Tetőtér beépítéssel bővíthető.
•Állapot: Újszerű, 2008-as téglaépítés, új kazán.
•Kert/Parkolás: Gondozásmentes, térkövezett, fedett beálló 2 autónak, külön tároló.
•Hitelképesség: Igen.
________________________________________
Kiemelkedő lehetőség Szigetszentmiklós egyik legkeresettebb részén
Eladásra kínálunk egy 2008-ban épült, újszerű műszaki és esztétikai állapotú, minőségi téglaépítésű családi házat Szigetszentmiklós központhoz közeli, aszfaltozott utcájában. Az ingatlan nem csupán kényelmes otthon, hanem tudatosan átgondolt, hosszú távon is értékálló életviteli és befektetési lehetőség.
Azonnali érték, jól szervezett terek
A 98,3 m²-es lakótér praktikus és élhető elrendezést biztosít:
tágas, egybenyitott nappali–konyha–étkező közösségi tér,
négy, külön bejáratú hálószoba a zavartalan privát szféráért.
Konyha: A modern, gépesített és igényes kivitelű konyhabútor a vételár részét képezi.
Műszaki állapot: Az épület kifogástalan állapotú, a fűtést új, korszerű gázkazán biztosítja.
Kertkapcsolat: Az ingatlan első és hátsó terasszal is rendelkezik. A nagyméretű, fedett hátsó terasz közvetlenül a konyhából nyílik, ideális családi és baráti összejövetelekhez.
Kimagasló fejlesztési és hasznosítási potenciál
Az ingatlan különleges értéke a benne rejlő rugalmasság:
1. Két különálló lakás kialakításának lehetősége
Az adottságok lehetővé teszik, hogy kisebb átalakítással két teljesen elkülönített lakrész jöjjön létre. Ez ideális megoldás lehet többgenerációs együttélésre vagy bérbeadás céljára, stabil és kiszámítható bevételi forrást biztosítva. A funkcionális megoszthatóság jelentősen növeli a piaci értéket.
2. Bővíthető tetőtér
A jelenleg egy hálószobás tetőtér teljes beépítésével tovább növelhető a lakóterület és a szobaszám, ami további értéknövekedési potenciált jelent.
Alacsony fenntartási igényű, rendezett környezet
A 320 m²-es telek szinte teljes egészében térkövezett, így minimális karbantartást igényel – ideális választás azok számára, akik gondozásmentes kertet szeretnének.
Különálló tároló az udvarban
Automata kapu a kényelmes bejárás érdekében
Két gépjármű számára fedett beálló
Kiváló infrastruktúra és könnyű megközelíthetőség a központi elhelyezkedésnek köszönhetően
Érték, amely hosszú távon is megtérül
Az ingatlan ára a benne rejlő fejlesztési és hasznosítási lehetőségek tükrében kiemelkedően kedvező. A kétlakásos kialakítás opciója és a bővíthetőség olyan hozzáadott értéket képvisel, amely ritkán elérhető a környéken.
Amennyiben egy sokoldalúan hasznosítható, stabil értéket képviselő ingatlant keres Szigetszentmiklós központjához közel, ez a ház kivételes lehetőséget kínál.
Vegye fel velünk a kapcsolatot, és győződjön meg személyesen az ingatlan adottságairól és lehetőségeiről.
•Helyszín: Szigetszentmiklós, Központhoz közeli, aszfaltozott utca.
•Ár: 147 M Ft (Irányár)
•Méret: 98.3 m²
•Szobák száma: 4 Különálló háló + Tágas Nappali/Konyha/Étkező
•Potenciál: Könnyen 2 különálló lakássá osztható, Tetőtér beépítéssel bővíthető.
•Állapot: Újszerű, 2008-as téglaépítés, új kazán.
•Kert/Parkolás: Gondozásmentes, térkövezett, fedett beálló 2 autónak, külön tároló.
•Hitelképesség: Igen.
________________________________________
Kiemelkedő lehetőség Szigetszentmiklós egyik legkeresettebb részén
Eladásra kínálunk egy 2008-ban épült, újszerű műszaki és esztétikai állapotú, minőségi téglaépítésű családi házat Szigetszentmiklós központhoz közeli, aszfaltozott utcájában. Az ingatlan nem csupán kényelmes otthon, hanem tudatosan átgondolt, hosszú távon is értékálló életviteli és befektetési lehetőség.
Azonnali érték, jól szervezett terek
A 98,3 m²-es lakótér praktikus és élhető elrendezést biztosít:
tágas, egybenyitott nappali–konyha–étkező közösségi tér,
négy, külön bejáratú hálószoba a zavartalan privát szféráért.
Konyha: A modern, gépesített és igényes kivitelű konyhabútor a vételár részét képezi.
Műszaki állapot: Az épület kifogástalan állapotú, a fűtést új, korszerű gázkazán biztosítja.
Kertkapcsolat: Az ingatlan első és hátsó terasszal is rendelkezik. A nagyméretű, fedett hátsó terasz közvetlenül a konyhából nyílik, ideális családi és baráti összejövetelekhez.
Kimagasló fejlesztési és hasznosítási potenciál
Az ingatlan különleges értéke a benne rejlő rugalmasság:
1. Két különálló lakás kialakításának lehetősége
Az adottságok lehetővé teszik, hogy kisebb átalakítással két teljesen elkülönített lakrész jöjjön létre. Ez ideális megoldás lehet többgenerációs együttélésre vagy bérbeadás céljára, stabil és kiszámítható bevételi forrást biztosítva. A funkcionális megoszthatóság jelentősen növeli a piaci értéket.
2. Bővíthető tetőtér
A jelenleg egy hálószobás tetőtér teljes beépítésével tovább növelhető a lakóterület és a szobaszám, ami további értéknövekedési potenciált jelent.
Alacsony fenntartási igényű, rendezett környezet
A 320 m²-es telek szinte teljes egészében térkövezett, így minimális karbantartást igényel – ideális választás azok számára, akik gondozásmentes kertet szeretnének.
Különálló tároló az udvarban
Automata kapu a kényelmes bejárás érdekében
Két gépjármű számára fedett beálló
Kiváló infrastruktúra és könnyű megközelíthetőség a központi elhelyezkedésnek köszönhetően
Érték, amely hosszú távon is megtérül
Az ingatlan ára a benne rejlő fejlesztési és hasznosítási lehetőségek tükrében kiemelkedően kedvező. A kétlakásos kialakítás opciója és a bővíthetőség olyan hozzáadott értéket képvisel, amely ritkán elérhető a környéken.
Amennyiben egy sokoldalúan hasznosítható, stabil értéket képviselő ingatlant keres Szigetszentmiklós központjához közel, ez a ház kivételes lehetőséget kínál.
Vegye fel velünk a kapcsolatot, és győződjön meg személyesen az ingatlan adottságairól és lehetőségeiről.
Registration Number
H509995
Property Details
Sales
for sale
Legal Status
used
Character
house
Construction Method
brick
Net Size
99 m²
Gross Size
130 m²
Plot Size
320 m²
Size of Terrace / Balcony
10 m²
Garden Size
320 m²
Heating
Gas circulator
Ceiling Height
277 cm
Number of Levels Within the Property
1
Orientation
South-West
Condition
Excellent
Condition of Facade
Excellent
Neighborhood
quiet, good transport, green, central
Year of Construction
2008
Number of Bathrooms
1
Condominium Garden
yes
Number of Covered Parking Spots
2
Water
Available
Gas
Available
Electricity
Available
Sewer
Available
Multi-Generational
yes
Storage
Independent
Rooms
entryway
9.4 m²
entryway
3.92 m²
bathroom-toilet
13.32 m²
open-plan kitchen and living room
24.48 m²
room
12.09 m²
room
12.09 m²
room
15 m²
room
8 m²
Kele Szabina Éva
Credit Expert