For sale family house, H509946
Diósd

310,000,000 Ft

803,000 €

  • 479m²
  • 7 Rooms
Exclusive Contract

Discover your dream home in Diósd – a 7-room family house awaits you!

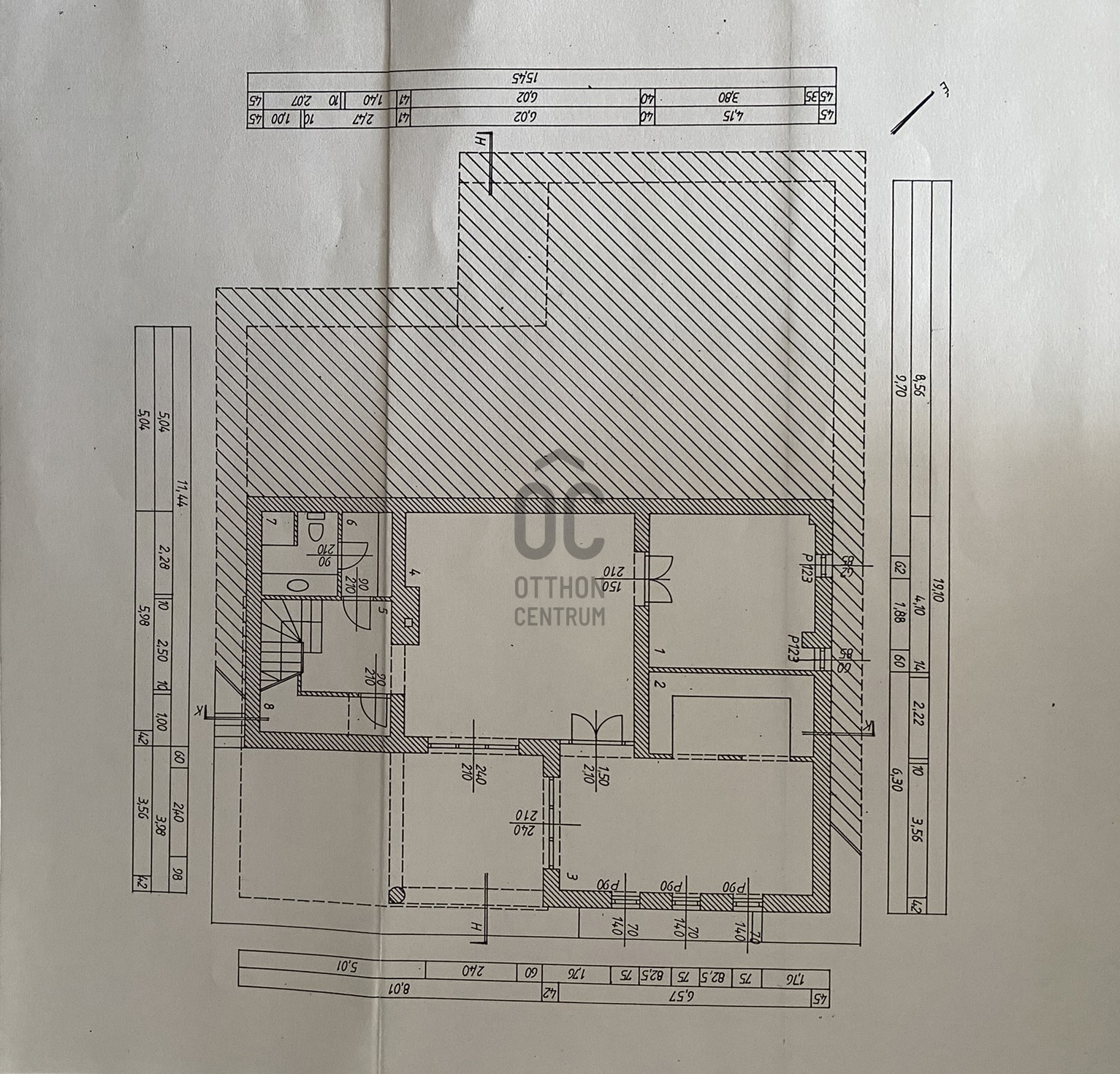
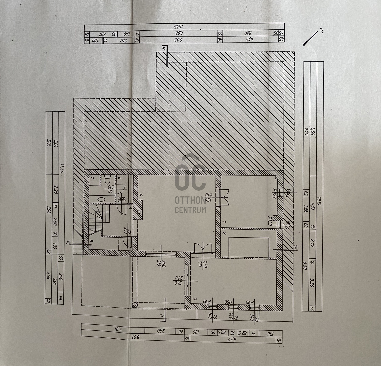
For Sale: Exclusive Three-Story Family House in a Quiet Street of Diósd** We offer for sale a meticulously constructed family house, built in the early 2000s, located in one of Diósd's calm and popular areas. The property spans 479 m² and is situated on a well-maintained 1111 m² plot. Thanks to its spacious dimensions and well-thought-out layout, the property is ideal for multi-generational living, as a combination of residence and office, or even for business purposes. The interior, designed by an interior architect, exudes an exclusive atmosphere. Premium quality finishes, colorful stained glass interior doors, and the Süttő limestone featured on the external facade highlight the elegance and timelessness of the house. **Ground Floor:** * Living room * Kitchen + dining area * Pantry * Bedroom * Bathroom * Dressing room * Guest toilet * Two-car garage with direct access to the home **Attic:** * 90% full-height ceiling * Living room * Bedroom * Dressing room * Bathroom * Two additional rooms * Storage room **Basement:** * Living room * Bathroom * Storage * Boiler room + laundry room * Kitchen + dining area * Direct access to the garden **Heating and Cooling:** * Vaillant gas boiler with a combination of underfloor and radiator heating * Snow melting system at the garage entrance * Separate heating circuit for the pool * Thermostats on each level * 6 Panasonic inverter (heating-cooling) air conditioning units **Garden:** * Well-maintained, grassy area * Planted with evergreens, perennials, and ornamental shrubs * Automatic irrigation system operating from its own well * Roman-style heated swimming pool This property is an ideal choice for those seeking a spacious, high-quality, multifunctional home in one of Diósd's best areas, in a tranquil environment, yet with excellent transport connections.

Registration Number

H509946

Property Details

Sales
for sale
Legal Status
used
Character
house
Construction Method
brick
Net Size
479 m²
Gross Size
512 m²
Plot Size
1,111 m²
Heating
Gas circulator
Ceiling Height
302 cm
Number of Levels Within the Property
3
Orientation
South-West
Condition
Good
Condition of Facade
Good
Neighborhood
quiet, good transport
Year of Construction
2001
Number of Bathrooms
4
Garage Spaces
2
Water
Available
Gas
Available
Electricity
Available
Sewer
Available

Rooms

living room
35.88 m²
entryway
7.44 m²
winter garden
12.89 m²
open-plan kitchen and dining room
27.76 m²
bedroom
35.69 m²
wardrobe
11.18 m²
garage
36.12 m²
living room
72.59 m²
bedroom
23.1 m²
bedroom
25.2 m²
wardrobe
21.63 m²
Bitó István
Bitó István

Credit Expert

From Our Office Listings - Budaörs - Templom tér

for sale new construction semi-detached house

Index image
data_sheet.details.realestate.section.main.otthonstart_flag.label
23

for sale family house

Index image
59

for sale family house

Index image
data_sheet.details.realestate.section.main.otthonstart_flag.label
16

for sale row house

Index image
32

for sale new construction semi-detached house

Index image
25

for sale family house

Index image
30