208 000 000 Ft
539 000 €
- 140m²
- 4 szoba
Budaörsön, központi helyen 140 nm-es önálló családi ház eladó. A telek 569 nm.
A ház teljes felújításon esett át 2013 ban, ekkor építették be a tetőteret.
A ház alagsorában található tároló pince, garázs.
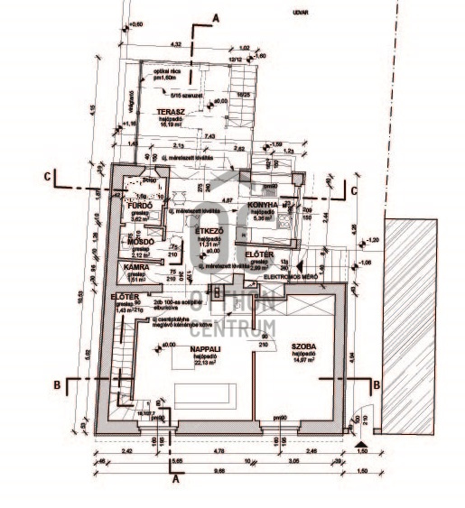
Földszinten, konyha, étkező, nappali, kamra, fürdőszoba, hálószoba, terasz
Emeleten 2 hálószoba, fürdőszoba.
Fűtése, elektromos norvég panel illetve légkondicionáló berendezés biztosítja.
Ezen kívül egy fa tüzelésű kályha van a nappaliban.
Új nyílászárók kerültek beépítésre.
Tömegközlekedés könnyen elérhető.
Ideális választás egy család számára, akik egy kedves otthont keresnek.
A ház teljes felújításon esett át 2013 ban, ekkor építették be a tetőteret.
A ház alagsorában található tároló pince, garázs.
Földszinten, konyha, étkező, nappali, kamra, fürdőszoba, hálószoba, terasz
Emeleten 2 hálószoba, fürdőszoba.
Fűtése, elektromos norvég panel illetve légkondicionáló berendezés biztosítja.
Ezen kívül egy fa tüzelésű kályha van a nappaliban.
Új nyílászárók kerültek beépítésre.
Tömegközlekedés könnyen elérhető.
Ideális választás egy család számára, akik egy kedves otthont keresnek.
Regisztrációs szám
H512106
Az ingatlan adatai
Értékesités
eladó
Jogi státusz
használt
Jelleg
ház
Építési mód
tégla
Méret
140 m²
Bruttó méret
160 m²
Telek méret
569 m²
Terasz / erkély mérete
18 m²
Fűtés
elektromos, infra
Belmagasság
340 cm
Lakáson belüli szintszám
2
Tájolás
Nyugat
Állapot
Jó
Homlokzat állapota
Jó
Pince
Önálló
Környék
csendes, jó közlekedés
Építés éve
1920
Fürdőszobák száma
2
Garázs
Benne van az árban
Garázs férőhely
1
Víz
Van
Villany
Van
Csatorna
Van
Tároló
Önálló
Helyiségek
nappali
22 m²
hálószoba
15 m²
ebédlő
11 m²
konyha
5 m²
fürdőszoba
5 m²
hálószoba
18 m²
hálószoba
16 m²
fürdőszoba
6 m²
Bitó István
Hitelszakértő