186,000,000 Ft
492,000 €
- 91m²
- 4 Rooms
- 1st floor
Exkluzív Otthon a Díjnyertes "Római Kert" Lakóparkban – Újlipótváros Szívében! (1132 Budapest, Visegrádi út 80.)
Fedezze fel ezt a kivételes, újszerű (2022) ingatlant Budapest szívében, az Újlipótvárosban, ahol a modern, magas minőségű életstílus találkozik a csendes lakóparki környezet nyugalmával és a kiemelkedő infrastruktúrával!
A Lakópark Előnyei és a Prémium Környezet
A lakás egy 2002-ben átadott, az Autóker által épített "Római Kert" lakóparkban található.
Ez az épületegyüttes:
Többszörös díjnyertes: Kiemelkedő építészeti megoldásai és gyönyörű, gondozott zöldterülete miatt vált elismertté.
Zárt és Biztonságos: A lakók kényelmét és biztonságát 24 órás portaszolgálat garantálja.
Gondozott, Belső Park: A házak által körbefogott területen egy különlegesen szépen ápolt, díjnyertes közös díszkert biztosítja a nyugodt pihenést, távol a város zajától.
Teremgarázs: A kényelmes és biztonságos parkolást a ház teremgarázsa teszi lehetővé (a terem garázshely vásárolható/bérelhető a ház más lakóitól).
Lakás Jellemzők
Ez az I. emeleti, 91 négyzetméteres lakás kiváló állapotú, prémium kivitelezésű, ami a beköltözés utáni felújítási munkálatok aggodalmait teljesen kizárja.
Elosztás: Négy tágas szoba, mely ideális választás családok, fiatal párok vagy befektetők számára egyaránt.
Konyha: Világos nappali amerikai konyhával, modern dizájnnal és beépített bútorokkal.
Kényelem: Két fürdőszoba és kettő összesen 14 négyzetméteres, intim terasz, ahonnan élvezheti a környék panorámáját.
Fűtés: Házközponti fűtés egyedi méréssel, ami kedvező fűtési költségeket garantál.
Kiemelkedő Újlipótvárosi Infrastruktúra
Az Újlipótváros kiemelt lokációja nem csupán kényelmes, de kiemelkedően előnyös a mindennapi élet szempontjából is. A környék ellátottsága és a közlekedés tökéletes:
Kultúra és Szabadidő: Sétatávolságra található a RaM – Radnóti Miklós Művelődési Központ, amely színházzal, könyvtárral, étteremmel (VakVarjú) és közösségi programokkal várja az itt lakókat.
Oktatás: Bölcsőde, óvoda, iskola könnyen elérhető közelségben 1-2 perc séta.
Közlekedés: Kiváló tömegközlekedési csomópontok (pl. 4-6-os villamos, M3 metró, 15-ös busz, trolibuszok) gyors elérést biztosítanak a belváros és a város bármely része felé.
Szolgáltatások: Számos bolt, étterem, kávézó, gyógyszertár és a Duna-part közelsége teszi teljessé a kényelmet.
A lakás akadálymentesített és biztonsági ajtóval felszerelt, így minden szempontból garantálja a gondtalan és kényelmes otthont.
Ne maradjon le erről a páratlan lehetőségről! Tekintse meg személyesen, és tapasztalja meg a "Római Kert" lakópark nyújtotta prémium életérzést!
Fedezze fel ezt a kivételes, újszerű (2022) ingatlant Budapest szívében, az Újlipótvárosban, ahol a modern, magas minőségű életstílus találkozik a csendes lakóparki környezet nyugalmával és a kiemelkedő infrastruktúrával!
A Lakópark Előnyei és a Prémium Környezet
A lakás egy 2002-ben átadott, az Autóker által épített "Római Kert" lakóparkban található.
Ez az épületegyüttes:
Többszörös díjnyertes: Kiemelkedő építészeti megoldásai és gyönyörű, gondozott zöldterülete miatt vált elismertté.
Zárt és Biztonságos: A lakók kényelmét és biztonságát 24 órás portaszolgálat garantálja.
Gondozott, Belső Park: A házak által körbefogott területen egy különlegesen szépen ápolt, díjnyertes közös díszkert biztosítja a nyugodt pihenést, távol a város zajától.
Teremgarázs: A kényelmes és biztonságos parkolást a ház teremgarázsa teszi lehetővé (a terem garázshely vásárolható/bérelhető a ház más lakóitól).
Lakás Jellemzők
Ez az I. emeleti, 91 négyzetméteres lakás kiváló állapotú, prémium kivitelezésű, ami a beköltözés utáni felújítási munkálatok aggodalmait teljesen kizárja.
Elosztás: Négy tágas szoba, mely ideális választás családok, fiatal párok vagy befektetők számára egyaránt.
Konyha: Világos nappali amerikai konyhával, modern dizájnnal és beépített bútorokkal.
Kényelem: Két fürdőszoba és kettő összesen 14 négyzetméteres, intim terasz, ahonnan élvezheti a környék panorámáját.
Fűtés: Házközponti fűtés egyedi méréssel, ami kedvező fűtési költségeket garantál.
Kiemelkedő Újlipótvárosi Infrastruktúra
Az Újlipótváros kiemelt lokációja nem csupán kényelmes, de kiemelkedően előnyös a mindennapi élet szempontjából is. A környék ellátottsága és a közlekedés tökéletes:
Kultúra és Szabadidő: Sétatávolságra található a RaM – Radnóti Miklós Művelődési Központ, amely színházzal, könyvtárral, étteremmel (VakVarjú) és közösségi programokkal várja az itt lakókat.
Oktatás: Bölcsőde, óvoda, iskola könnyen elérhető közelségben 1-2 perc séta.
Közlekedés: Kiváló tömegközlekedési csomópontok (pl. 4-6-os villamos, M3 metró, 15-ös busz, trolibuszok) gyors elérést biztosítanak a belváros és a város bármely része felé.
Szolgáltatások: Számos bolt, étterem, kávézó, gyógyszertár és a Duna-part közelsége teszi teljessé a kényelmet.
A lakás akadálymentesített és biztonsági ajtóval felszerelt, így minden szempontból garantálja a gondtalan és kényelmes otthont.
Ne maradjon le erről a páratlan lehetőségről! Tekintse meg személyesen, és tapasztalja meg a "Római Kert" lakópark nyújtotta prémium életérzést!
Registration Number
H509908
Property Details
Sales
for sale
Legal Status
used
Character
apartment
Construction Method
brick
Net Size
91 m²
Gross Size
98 m²
Size of Terrace / Balcony
14 m²
Heating
central heating
Ceiling Height
275 cm
Orientation
South
View
city view
Staircase Type
enclosed staircase
Condition
Excellent
Condition of Facade
Excellent
Condition of Staircase
Excellent
Year of Construction
2002
Number of Bathrooms
2
Position
street-facing
Common Costs
27000
Water
Available
Electricity
Available
Sewer
Available
Elevator
available
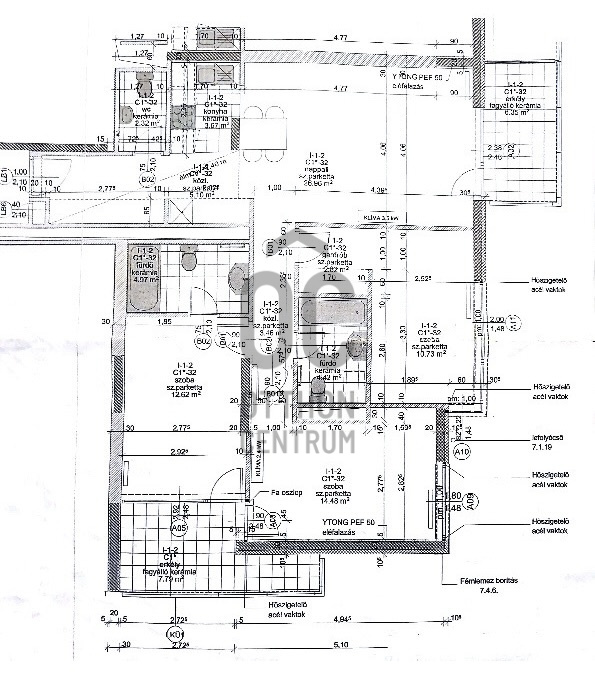
Rooms
room
12.62 m²
room
14.48 m²
room
10.73 m²
corridor
3.46 m²
bathroom-toilet
4.07 m²
bathroom-toilet
4.42 m²
kitchen
3.67 m²
living room
26.96 m²
balcony
6.35 m²
balcony
7.79 m²
Örvössy Tamás
Credit Expert