Eladó lakás, H512220
Budapest V. kerület, Dél-Belváros

199 447 500 Ft

525 000 €

  • 93m²
  • 3 szoba
  • 4. emelet
Kiemelt megbízás

Fedezze fel Budapest szívében ezt a tágas, 3 szobás lakást – otthon vagy befektetés céljára!

Egy igazán különleges lehetőséget kínálunk, amely a főváros szívében található. A Dél-Belvárosban, Budapest 05. kerületében elhelyezkedő, használt lakásunk ideális választás lehet, legyen szó saját otthonról vagy befektetési célú vásárlásról. Az ingatlan alapterülete 100 négyzetméter, amely három tágas szobával, egy modern fürdőszobával és egy étkezős-konyhával rendelkezik. A lakás állapota jó, így azonnal költözhető, a fűtése pedig gáz (cirko) rendszerű, amely kedvező rezsiköltségeket biztosít. A lakás világos, napfényes terekkel büszkélkedhet, amelyek kellemes atmoszférát teremtenek a mindennapi élethez. A tágas nappali ideális helyszín a családi összejövetelekhez vagy baráti találkozókhoz, míg a szobákban a nyugalom és a pihenés garantált. A központi elhelyezkedés, az Egyetem tér közelsége lehetővé teszi, hogy a város legfontosabb látnivalói, üzletei és szolgáltatásai könnyedén elérhetők legyenek. A környék ellátottsága kiváló, a közeli üzletek, éttermek és kávézók széles választéka biztosítja, hogy minden szükségletét könnyedén kielégíthesse. A közlekedési csomópont közelsége miatt a kitűnő közlekedés lehetőségei révén Budapest bármely pontja gyorsan és egyszerűen elérhető. A tömegközlekedési lehetőségek, mint a M3, M4 metrók, buszok és a villamosok, mindössze pár perc sétára találhatók, így a napi ingázás sem okoz majd nehézséget. A Dél-Belváros nemcsak a kiváló közlekedési és ellátottsági lehetőségeiről híres, hanem a biztonságos és csendes környezetéről is, amely ideális választássá teszi ezt a lakást családok, fiatal párok és befektetők számára egyaránt. A tehermentes ingatlan lehetőséget ad arra, hogy zökkenőmentesen valósítsa meg álmait, és élvezhesse a belvárosi élet minden előnyét. Amennyiben bármilyen kérdése merülne fel a lakással vagy a vásárlási folyamattal kapcsolatban, bizalommal keresen. Szívesen állunk rendelkezésére, hogy segítsünk Önnek megtalálni a tökéletes ingatlant, amely megfelel az igényeinek és elvárásainak. Ne habozzon, hiszen ez a lehetőség nem tart örökké!

Regisztrációs szám

H512220

Az ingatlan adatai

Értékesités
eladó
Jogi státusz
használt
Jelleg
lakás
Építési mód
tégla
Méret
93 m²
Bruttó méret
100 m²
Fűtés
Gáz cirkó
Belmagasság
360 cm
Tájolás
Kelet
Lépcsőház típusa
zárt lépcsőház
Állapot
Homlokzat állapota
Átlagos
Lépcsőház állapota
Átlagos
Környék
jó közlekedés, központi
Építés éve
1892
Fürdőszobák száma
1
Fekvés
utcai
Közös költség
28000
Víz
Van
Gáz
Van
Villany
Van
Csatorna
Van
Lift
van

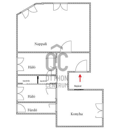
Helyiségek

nappali
29 m²
hálószoba
14 m²
hálószoba
14 m²
konyha-étkező
18 m²
fürdőszoba-wc
8 m²
gardrób
2 m²
gardrób
2 m²
előszoba
3 m²
közlekedő
6 m²
Örvössy Tamás
Örvössy Tamás

Hitelszakértő

Irodánk kínálatából - XIII. kerület - Szent István park

for sale apartment

Index image
30

for sale apartment

Index image
63

for sale new construction family house

Index image
58

for sale apartment

Index image
22

for sale apartment

Index image
20

for sale apartment

Index image
30

for sale apartment

Index image
32

for sale panel apartment

Index image
data_sheet.details.realestate.section.main.otthonstart_flag.label
11

for sale commercial property

Index image
6

for sale apartment

Index image
31

eladó lakás

Index image
18