data_sheet.details.realestate.section.main.otthonstart_flag.label
For sale family house, H509716
Szekszárd, Bottyán-hegy, Ezerjó köz

58,000,000 Ft

155,000 €

  • 168m²
  • 4 Rooms
Exclusive Contract

Eladó családi ház Szekszárd

A Bottyán-hegyi területen található ház 1972-es építése óta korszerűsítésre került:

- 5 cm hungarocell hőszigetelés a teljes homlokzaton
- pala tető zsindelyezése
- Sanier Duval kazán
- LG klíma
- műanyag ablakok és redőnyök, fa tokban

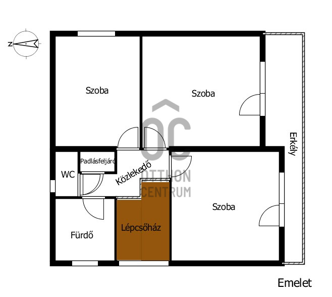
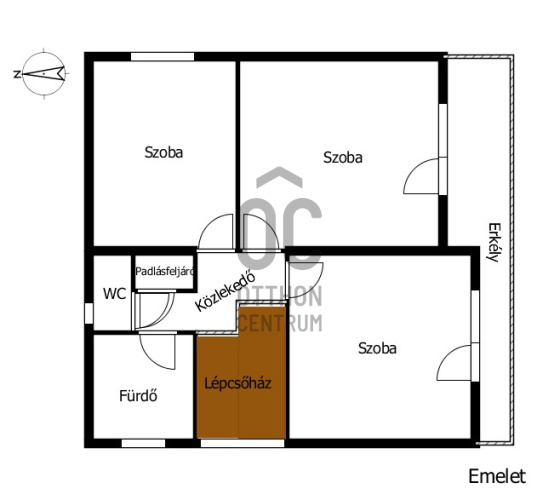
Ezt leszámítva gyári a ház, felújítandó állapotú. 38 cm vastag téglából épültek a fő falak, 12/15 cm vastagok
a válaszfalak. A tájékoztató jellegű alaprajzon jelöltek a falvastagságot és a helyiségek elrendezését.
Kis átalakításokkal egy nagyon élhető, jó terekkel rendelkező háza lehet annak a családnak aki atomvillanás álló
alapokkal rendelkező felújítási alapot keres. A teljes tervdokumentáció rendelkezésre áll 1970-ből, még az anyag-
beszerzés könyvelése is megőrzésre került.

Ha a képek és az adatok felkeltették az érdeklődésed nézzük meg a helyszínen!

Registration Number

H509716

Property Details

Sales
for sale
Legal Status
used
Character
house
Construction Method
brick
Net Size
168 m²
Gross Size
212 m²
Plot Size
624 m²
Size of Terrace / Balcony
20 m²
Heating
gas boiler
Ceiling Height
270 cm
Number of Levels Within the Property
2
Orientation
South
View
city view, Green view
Condition
To be renovated
Condition of Facade
Average
Neighborhood
quiet, good transport, green
Year of Construction
1972
Number of Bathrooms
2
Garage
Included in the price
Garage Spaces
1
Water
Available
Gas
Available
Electricity
Available
Sewer
Available
Storage
Independent

Rooms

entryway
1 m²
kitchen
2 m²
bathroom-toilet
3 m²
bedroom
4 m²
living room
5 m²
boiler room
6 m²
Moczok Ágnes
Moczok Ágnes

Credit Expert

From Our Office Listings - Szekszárd - Széchenyi utca

for sale semi-detached house

Index image
data_sheet.details.realestate.section.main.otthonstart_flag.label
23

for sale agricultural property

Index image
6

for sale semi-detached house

Index image
data_sheet.details.realestate.section.main.otthonstart_flag.label
11

for sale apartment

Index image
data_sheet.details.realestate.section.main.otthonstart_flag.label
18

for sale family house

Index image
data_sheet.details.realestate.section.main.otthonstart_flag.label
7

for sale commercial property

Index image
3

for sale apartment

Index image
data_sheet.details.realestate.section.main.otthonstart_flag.label
6