data_sheet.details.realestate.section.main.otthonstart_flag.label
For sale family house,
H508803
Bag, Alvég
39,500,000 Ft
103,000 €
- 80m²
- 3 Rooms
Családi ház csendes utcában Bagon Eladó
Eladóvá vált egy különleges lehetőség, mely Pest vármegyében, Bag városának Alvég városrészében található.
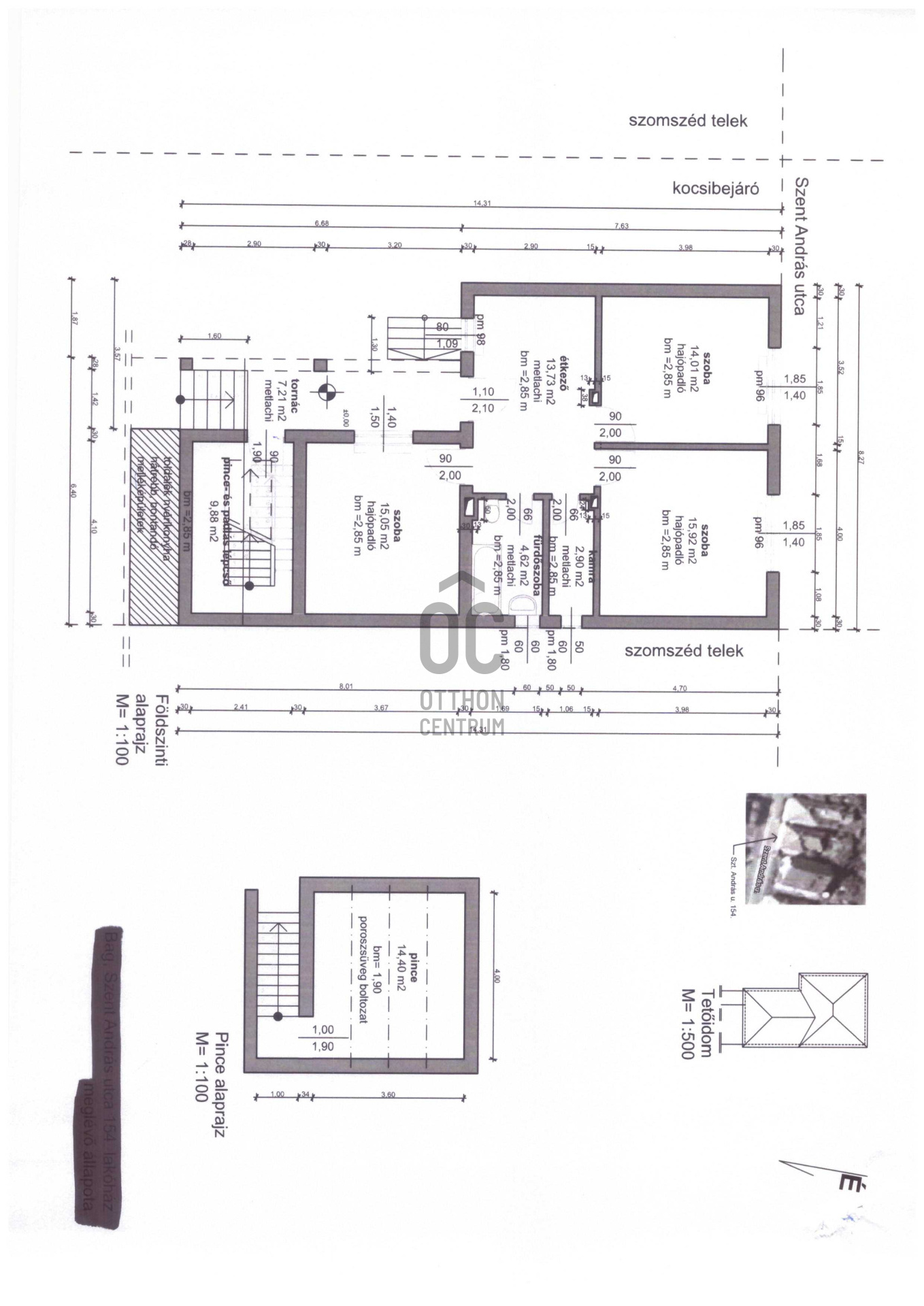
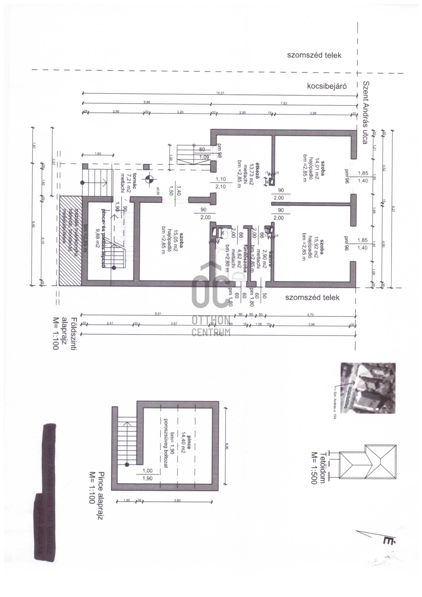
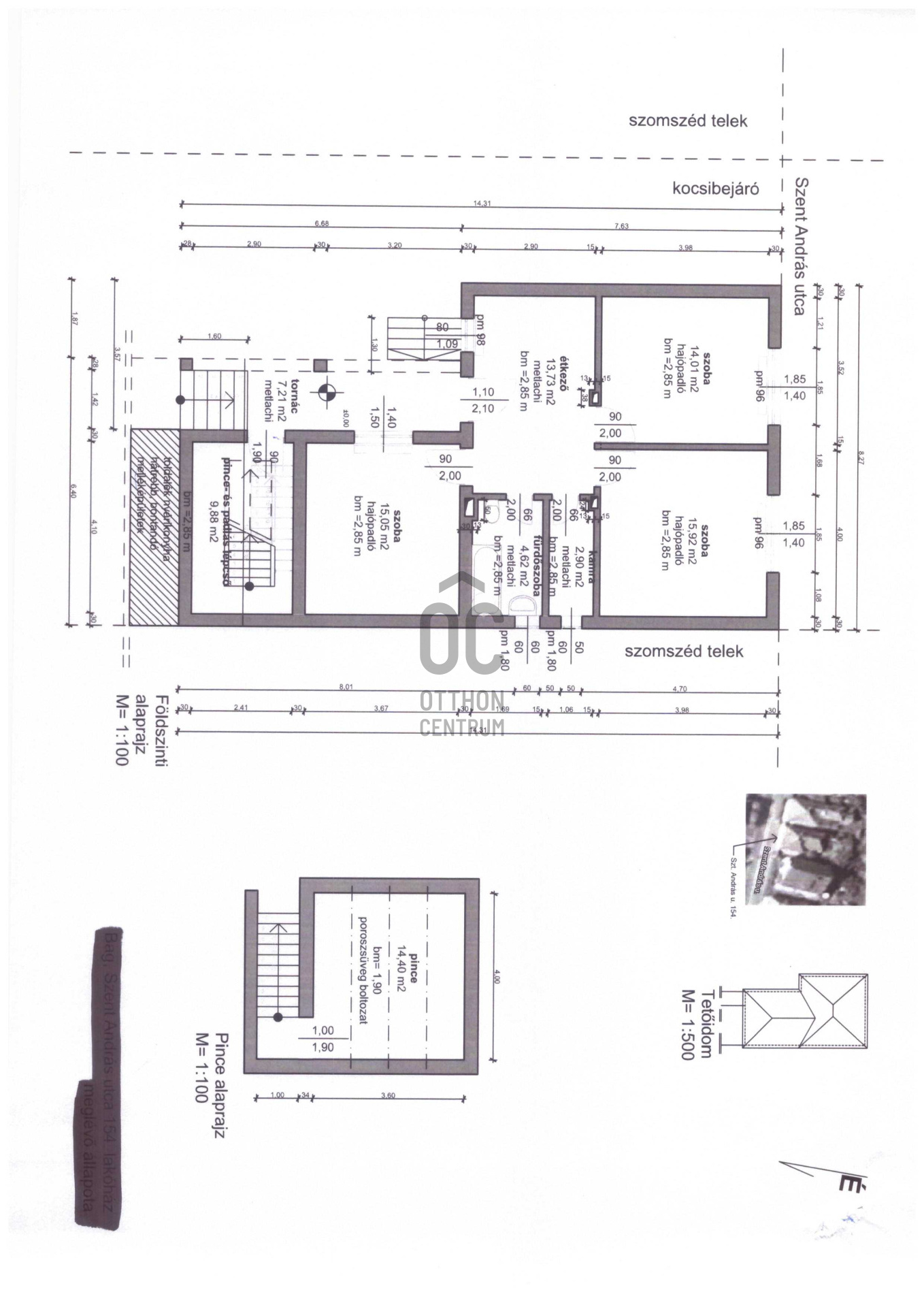
Az ingatlan, amelyet kínálunk, 80 nm alapterületű, és a hozzá tartozó telek mérete 680 nm.
A ház három tágas szobával és egy fürdőszobával, kamrával, konyha-étkezővel rendelkezik, így ideális otthont biztosít családok számára, vagy akár befektetési céllal is remek választás lehet.
A ház felújítandó állapotban van, ami lehetőséget ad arra, hogy saját ízlésére és elképzeléseire formálj, alakítsa új tulajdonosa.
Falazata téglából épült és a tetőszerkezete pedig cserép fedéssel ellátott.
A fűtés gáz kazánnal megoldott, ami kényelmes és gazdaságos fűtést biztosít a hideg téli hónapokban.
A környék csendes, nyugodt, ami ideális környezetet teremt a fiatalok számára, akik szeretnék elkerülni a város zaját, ugyanakkor könnyen elérni a szükséges szolgáltatásokat.
A közlekedés is kiváló, hiszen a település jól megközelíthető autóval, a közeli főutaknak köszönhetően.
Tömegközlekedési lehetőségek is rendelkezésre állnak, így könnyedén elérhetők a szomszédos városok és települések. A környék biztonságos, barátságos lakói és a közeli zöld területek pedig még inkább vonzóvá teszik ezt az ingatlant.
Ez a tehermentes ingatlan nemcsak a lakhatás, hanem a jövőbeni befektetés szempontjából is kiemelkedő lehetőséget kínál.
Ha Ön is szeretné megvalósítani álmait és egyedi otthont keres, ahol saját elképzelései szerint alakíthatja ki a tereket, akkor ne habozzon!
Kérdéseivel bizalommal kereshet minket, és szívesen segítünk Önnek!
Jöjjön el és nézze meg!
Az ingatlan, amelyet kínálunk, 80 nm alapterületű, és a hozzá tartozó telek mérete 680 nm.
A ház három tágas szobával és egy fürdőszobával, kamrával, konyha-étkezővel rendelkezik, így ideális otthont biztosít családok számára, vagy akár befektetési céllal is remek választás lehet.
A ház felújítandó állapotban van, ami lehetőséget ad arra, hogy saját ízlésére és elképzeléseire formálj, alakítsa új tulajdonosa.
Falazata téglából épült és a tetőszerkezete pedig cserép fedéssel ellátott.
A fűtés gáz kazánnal megoldott, ami kényelmes és gazdaságos fűtést biztosít a hideg téli hónapokban.
A környék csendes, nyugodt, ami ideális környezetet teremt a fiatalok számára, akik szeretnék elkerülni a város zaját, ugyanakkor könnyen elérni a szükséges szolgáltatásokat.
A közlekedés is kiváló, hiszen a település jól megközelíthető autóval, a közeli főutaknak köszönhetően.
Tömegközlekedési lehetőségek is rendelkezésre állnak, így könnyedén elérhetők a szomszédos városok és települések. A környék biztonságos, barátságos lakói és a közeli zöld területek pedig még inkább vonzóvá teszik ezt az ingatlant.
Ez a tehermentes ingatlan nemcsak a lakhatás, hanem a jövőbeni befektetés szempontjából is kiemelkedő lehetőséget kínál.
Ha Ön is szeretné megvalósítani álmait és egyedi otthont keres, ahol saját elképzelései szerint alakíthatja ki a tereket, akkor ne habozzon!
Kérdéseivel bizalommal kereshet minket, és szívesen segítünk Önnek!
Jöjjön el és nézze meg!
Registration Number
H508803
Property Details
Sales
for sale
Legal Status
used
Character
house
Construction Method
brick
Net Size
80 m²
Gross Size
100 m²
Plot Size
680 m²
Size of Terrace / Balcony
7.2 m²
Heating
gas boiler
Ceiling Height
270 cm
Orientation
South
View
Other
Condition
To be renovated
Condition of Facade
Average
Basement
Independent
Neighborhood
quiet
Year of Construction
1958
Number of Bathrooms
1
Water
Available
Gas
Available
Electricity
Available
Sewer
Available
Storage
Independent
Rooms
bedroom
14 m²
bedroom
15 m²
living room
15.92 m²
open-plan kitchen and dining room
13.73 m²
pantry
2.9 m²
bathroom-toilet
4.62 m²
Kirmáyer Elvíra
Credit Expert