115,000 Ft
300 €
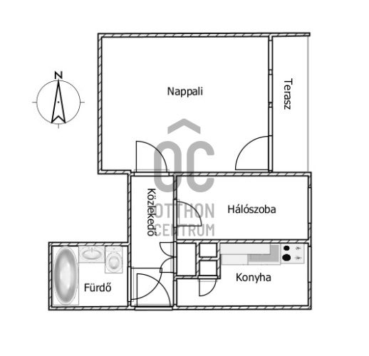
- 44m²
- 2 Rooms
- 3rd floor
















Kiadó szép állapotú 2 szobás, teraszos lakás Szekszárdon, a Tartsay lakótelepen!
Ha keresed az ideális Otthont, ne keress tovább, mert megtaláltad!
- csendes környék, a redőnnyel védett terasz zöld kertre néz
- szigetelt homlokzatú társasház 3. emeletén található lakás
- távfűtéses, radiátorok egyedi hőmennyiségmérővel felszereltek
- Keleti tájolás, világos lakás
- zárt lépcsőház, saját tároló
- a lakás világos, falai frissen festettek
- igényesen kitakarítva kerül birtokba
- a két szoba parkettával fedett (nappali 20 m2, háló 7,8 m2)
- konyhabútor, villanytűzhely
- a fürdőkádas fürdő és a Wc egy helyiségben található
- előszobában ideális méretű beépített szekrények találhatóak
- klimatizált otthon, a klímaberendezés a közlekedőben található
- üres, nem bútorozott
- fa nyílászárók
- kedvező rezsi (A rezsi hozzávetőlegesen: víz 2.000 Ft/hó, távhő 7000Ft/hó, hulladék 1300Ft/hó, áramdíj 5000 Ft/hó)
- közös költség havi 8.810 Ft
- csendes szomszédok, rendezett lakókörnyezet
- parkolás a ház előtti parkolóban díjmentesen lehetséges
- a közelben bevásárlási lehetőség, autóbusz pályaudvar, cukrászda elérhető
Ha a felsorolt paraméterek megfelelnek a számodra és vállalod a közjegyző előtti szerződéskötést valamint azt, hogy minimum 16 hónapra kibérelnéd a lakást, csörögj és szívesen megmutatom az Otthonod!
A szerződéskötéskor 2 havi kaució szükséges, az első havi bérleti díj előre fizetendő!
Kiadó lakás Szekszárd, Tartsay ltp. 2 szoba csendes terasz, nem bútorozott OC H508551
- csendes környék, a redőnnyel védett terasz zöld kertre néz
- szigetelt homlokzatú társasház 3. emeletén található lakás
- távfűtéses, radiátorok egyedi hőmennyiségmérővel felszereltek
- Keleti tájolás, világos lakás
- zárt lépcsőház, saját tároló
- a lakás világos, falai frissen festettek
- igényesen kitakarítva kerül birtokba
- a két szoba parkettával fedett (nappali 20 m2, háló 7,8 m2)
- konyhabútor, villanytűzhely
- a fürdőkádas fürdő és a Wc egy helyiségben található
- előszobában ideális méretű beépített szekrények találhatóak
- klimatizált otthon, a klímaberendezés a közlekedőben található
- üres, nem bútorozott
- fa nyílászárók
- kedvező rezsi (A rezsi hozzávetőlegesen: víz 2.000 Ft/hó, távhő 7000Ft/hó, hulladék 1300Ft/hó, áramdíj 5000 Ft/hó)
- közös költség havi 8.810 Ft
- csendes szomszédok, rendezett lakókörnyezet
- parkolás a ház előtti parkolóban díjmentesen lehetséges
- a közelben bevásárlási lehetőség, autóbusz pályaudvar, cukrászda elérhető
Ha a felsorolt paraméterek megfelelnek a számodra és vállalod a közjegyző előtti szerződéskötést valamint azt, hogy minimum 16 hónapra kibérelnéd a lakást, csörögj és szívesen megmutatom az Otthonod!
A szerződéskötéskor 2 havi kaució szükséges, az első havi bérleti díj előre fizetendő!
Kiadó lakás Szekszárd, Tartsay ltp. 2 szoba csendes terasz, nem bútorozott OC H508551
Registration Number
H508551
Property Details
Sales
for rent
Legal Status
used
Character
apartment
Construction Method
panel
Net Size
44 m²
Gross Size
46 m²
Size of Terrace / Balcony
4.6 m²
Heating
individual district heating
Ceiling Height
250 cm
Orientation
East
Staircase Type
enclosed staircase
Condition
Average
Condition of Facade
Good
Condition of Staircase
Average
Neighborhood
quiet, good transport, green, central
Year of Construction
1960
Number of Bathrooms
1
Position
garden-facing
Common Costs
8810
Water
Available
Electricity
Available
Sewer
Available
Storage
Independent
Rooms
living room
20 m²
bedroom
7.8 m²
kitchen
4 m²
corridor
6.6 m²
bathroom-toilet
303 m²
terrace
4.6 m²

Deli Richárd
Credit Expert