Elérhető Otthon Start hitellel
Eladó családi ház,
H505721
Gyönk, Szabatonpuszta
14 000 000 Ft
37 000 €
- 109m²
- 4 szoba































Gyönk-Szabatonpusztán ikerház egyben eladó!
Az eladó ikerház két lakásból áll, amelyek egymás tükörképei. Igény szerint egybe nyithatóak.
A ház tégla falazattal, cserép tetővel, beton aljzattal és betontálcás födémmel rendelkezik.
Mindkét házrészben két szoba, konyha, fürdő, wc és kamra található.
Fűtése jelenleg kályhával lehetséges.
Aszfaltozott úton megközelíthető. Úzd előtt kell balra fordulni, és az út egyenesen odavisz.
Gyönk földúton 7 km.
A telek összesen 1143 m2.
Az odavezető út is vadregényes, a Varasdi halastavak mellett haladunk végig, a másik oldalon erdő.
A házba az áram és a víz be van vezetve, csatorna nincs.
Az ingatlan felújítandó, de jó alap a saját elképzelések megvalósításához.
Ha valaki csendes, zöld környezetbe vágyik, vagy elvonulásra alkalmas ingatlant keres, ez tökéletes lehet!
zöld csendes tégla ikerház erdő mellett OC H505721
A ház tégla falazattal, cserép tetővel, beton aljzattal és betontálcás födémmel rendelkezik.
Mindkét házrészben két szoba, konyha, fürdő, wc és kamra található.
Fűtése jelenleg kályhával lehetséges.
Aszfaltozott úton megközelíthető. Úzd előtt kell balra fordulni, és az út egyenesen odavisz.
Gyönk földúton 7 km.
A telek összesen 1143 m2.
Az odavezető út is vadregényes, a Varasdi halastavak mellett haladunk végig, a másik oldalon erdő.
A házba az áram és a víz be van vezetve, csatorna nincs.
Az ingatlan felújítandó, de jó alap a saját elképzelések megvalósításához.
Ha valaki csendes, zöld környezetbe vágyik, vagy elvonulásra alkalmas ingatlant keres, ez tökéletes lehet!
zöld csendes tégla ikerház erdő mellett OC H505721
Regisztrációs szám
H505721
Az ingatlan adatai
Értékesités
eladó
Jogi státusz
használt
Jelleg
ház
Építési mód
tégla
Méret
109 m²
Bruttó méret
109 m²
Telek méret
1 143 m²
Kert méret
1 143 m²
Fűtés
kályha (faszén)
Belmagasság
274 cm
Tájolás
Dél-nyugat
Panoráma
Zöldre néző panoráma
Állapot
Felújítandó
Homlokzat állapota
Átlagos
Környék
csendes, zöld
Építés éve
1965
Fürdőszobák száma
2
Társaház kert
igen
Víz
Van
Villany
Van
Többgenerációs
igen
Tároló
Önálló
Vízpart távolsága
500 méterre
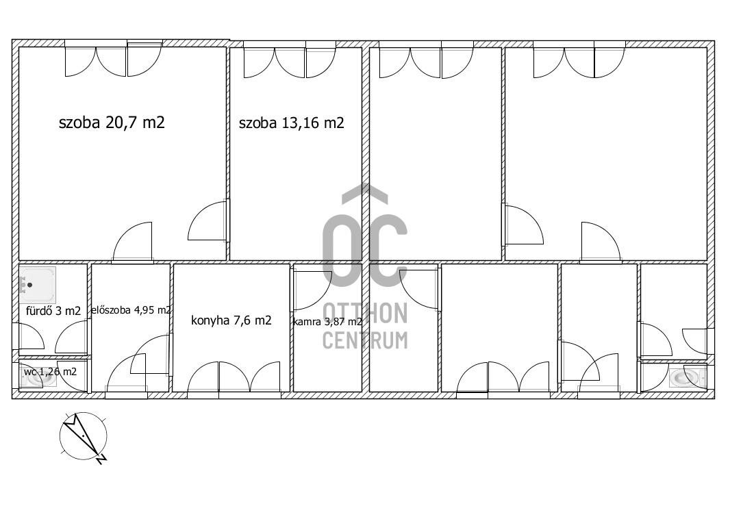
Helyiségek
szoba
20.7 m²
szoba
20.3 m²
szoba
13.16 m²
szoba
13.2 m²
előszoba
4.95 m²
előszoba
4.97 m²
konyha
7.6 m²
konyha
7.65 m²
kamra
3.87 m²
kamra
3.86 m²
fürdőszoba
3 m²
fürdőszoba
3.1 m²
fürdőszoba-wc
1.26 m²
fürdőszoba-wc
1.28 m²

Deli Richárd
Hitelszakértő