Elérhető Otthon Start hitellel
Eladó családi ház,
H507998
Decs, Rákóczi utca
22 900 000 Ft
59 000 €
- 94m²
- 3 szoba










Decsen központ közelében jó állapotú vegyes falazatú ház eladó!
A Tolna vármegye szívében, Decs városában található, Rákóczi utcai ingatlanunk tökéletes választás lehet Önnek, ha a csendes, mégis jól megközelíthető környezetet keresi.
Az ingatlan használt, de korához képest jó állapotának köszönhetően rengeteg lehetőséget rejt magában.
A ház alapterülete 94 négyzetméter, amely három tágas szobát foglal magában, így ideális családok számára is.
A fürdőszoba egybenyitott, zuhanyzós, ami kényelmes használatot biztosít.
A telek mérete 701 négyzetméter, így bőven van hely a kertészkedésre vagy akár egy kis pihenőhely kialakítására is.
Az ingatlan fűtése gázkonvektorral történik, ami gazdaságos fűtési megoldást nyújt a hideg hónapokban.
A tágas szobák és a világos terek barátságossá teszik a házat.
A konyha nagyobb családok számára is megfelelő méretű.
A tető cseréppel fedett.
A ház mögötti tárolóból jó állapotú és méretű pince nyílik.
A fedett autóbeálló igazán tágas.
Az ólak is megvannak, ha valaki állatokat tartana.
Az ingatlan Falusi CSOK kompatibilis, így ideális választás lehet fiatal családok számára, akik szeretnék kihasználni a támogatási lehetőségeket.
Decs városa nemcsak a természet közelségét kínálja, hanem a környék ellátottsága is kiváló.
A közeli boltok, iskolák és egészségügyi intézmények mind könnyen elérhetők, így a mindennapi élet kényelmesen zajlik.
A közlekedési lehetőségek is kedvezőek, hiszen a település jól kapcsolódik a környező városokhoz, autóval és tömegközlekedéssel egyaránt.
A csendes utcák és a barátságos szomszédság garantálja a nyugodt életvitel lehetőségét.
Ha Ön olyan ingatlant keres, amely nemcsak otthont, hanem értéknövelő befektetést is jelent, akkor ez a ház remek választás lehet. Bízzon meg bennünket, és ne habozzon kérdésekkel keresni, hiszen célunk, hogy a legjobb döntést hozhassa meg az ingatlanvásárlás során. Az ingatlanpiac folyamatosan változik, és mi itt vagyunk, hogy Önnek segítsünk a legjobb lehetőségek megtalálásában.
Időpontért keressen bátran!
Ha a vásárláshoz hitelre van szüksége, kollégánk ingyenes, bankfüggetlen pénzügyi szolgáltatással áll rendelkezésre!
családi ház vegyes jó állapot 3 szoba nagy kert gázfűtés OC H507998
Az ingatlan használt, de korához képest jó állapotának köszönhetően rengeteg lehetőséget rejt magában.
A ház alapterülete 94 négyzetméter, amely három tágas szobát foglal magában, így ideális családok számára is.
A fürdőszoba egybenyitott, zuhanyzós, ami kényelmes használatot biztosít.
A telek mérete 701 négyzetméter, így bőven van hely a kertészkedésre vagy akár egy kis pihenőhely kialakítására is.
Az ingatlan fűtése gázkonvektorral történik, ami gazdaságos fűtési megoldást nyújt a hideg hónapokban.
A tágas szobák és a világos terek barátságossá teszik a házat.
A konyha nagyobb családok számára is megfelelő méretű.
A tető cseréppel fedett.
A ház mögötti tárolóból jó állapotú és méretű pince nyílik.
A fedett autóbeálló igazán tágas.
Az ólak is megvannak, ha valaki állatokat tartana.
Az ingatlan Falusi CSOK kompatibilis, így ideális választás lehet fiatal családok számára, akik szeretnék kihasználni a támogatási lehetőségeket.
Decs városa nemcsak a természet közelségét kínálja, hanem a környék ellátottsága is kiváló.
A közeli boltok, iskolák és egészségügyi intézmények mind könnyen elérhetők, így a mindennapi élet kényelmesen zajlik.
A közlekedési lehetőségek is kedvezőek, hiszen a település jól kapcsolódik a környező városokhoz, autóval és tömegközlekedéssel egyaránt.
A csendes utcák és a barátságos szomszédság garantálja a nyugodt életvitel lehetőségét.
Ha Ön olyan ingatlant keres, amely nemcsak otthont, hanem értéknövelő befektetést is jelent, akkor ez a ház remek választás lehet. Bízzon meg bennünket, és ne habozzon kérdésekkel keresni, hiszen célunk, hogy a legjobb döntést hozhassa meg az ingatlanvásárlás során. Az ingatlanpiac folyamatosan változik, és mi itt vagyunk, hogy Önnek segítsünk a legjobb lehetőségek megtalálásában.
Időpontért keressen bátran!
Ha a vásárláshoz hitelre van szüksége, kollégánk ingyenes, bankfüggetlen pénzügyi szolgáltatással áll rendelkezésre!
családi ház vegyes jó állapot 3 szoba nagy kert gázfűtés OC H507998
Regisztrációs szám
H507998
Az ingatlan adatai
Értékesités
eladó
Jogi státusz
használt
Jelleg
ház
Építési mód
vegyesfalazatú
Méret
94 m²
Bruttó méret
109 m²
Telek méret
701 m²
Kert méret
300 m²
Fűtés
gázkonvektor
Belmagasság
260 cm
Tájolás
Kelet
Állapot
Átlagos
Homlokzat állapota
Átlagos
Pince
Önálló
Környék
csendes, zöld
Építés éve
1960
Fürdőszobák száma
1
Társaház kert
igen
Fedett beállók száma
1
Víz
Van
Gáz
Van
Villany
Van
Csatorna
Van
Tároló
Önálló
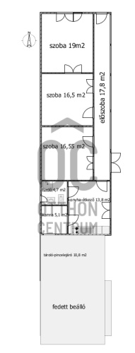
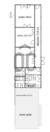
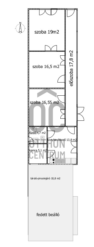
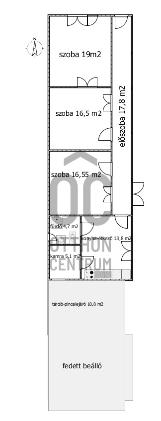
Helyiségek
szoba
19 m²
szoba
16.5 m²
szoba
16.55 m²
konyha-étkező
13.8 m²
kamra
5.1 m²
fürdőszoba-wc
4.7 m²
tároló
10.8 m²
pince
14 m²
kocsibeálló
18 m²

Deli Richárd
Hitelszakértő