750,000,000 Ft
1,939,000 €
- 238m²
- 6 Rooms
Kortárs elegancia a hegyek lábánál
A szenvedélyes minimalizmus paradoxona: egy családi ház, amely egyszerre fegyelmezett és temperamentumos. Üdv itthon!
RÖVID ÖSSZEFOGLALÓ
Budapest III. kerületének exkluzív Vizimenta utcájában, - Harsánylejtő második ütemében található 238 m²-es, két szintes épület Nappali + 5 szobával , három fürdőszobával, szülői háló master-bedroom-al és gardrób szobávala bensőséges családi életért.
Az épület hőszivattyús fűtéssel-hűtéssel, dupla garázzsal, jacuzzival és és tudatosan tervezett intim kerttel kínál kompromisszummentes kényelmet a nyugalmat és bensőséges hangulatot keresőknek.
TERVEZŐK ÉS BEMUTATÓ VIDEÓ
A tervezést Chehadé Abdel Rahim és Gőz Dorottya — az Amoeba Group — végezte.
A videó az Építechture sorozatában jelent meg, amely az építészettel és designnal foglalkozó magyar alkotókat, történeteiket és szemléletüket mutatja be emberközpontú, inspiráló módon. YT csatorna elérhető: https://www.youtube.com/@epitechture
A Harsánylejtőn megvalósult, általuk tervezett és bemutatott családi ház egyértelműen erős dialógusba kerül a kerttel, és ennek révén egy zártabb, intimebb családi tér jön létre, ahol a külső és belső határok elmosódnak, de minden részlet átgondoltan szolgálja az együttélés nyugalmát és vizuális egységét.
Az Építechture által készített videó érzékletesen mutatja be a ház téralkotását, a kerttel való kapcsolatát, valamint a belső és külső felületek finom illeszkedéseit. Tekintse meg a videót, és kövesse végig a tervezők gondolatmenetét: hogyan alakul a kert és az épület harmóniája, és mi rejlik minden egyes forma, anyag és térkapcsolat mögött.
LOKÁCIÓ
Az épület a III. kerület egyik legkülönlegesebb részén, Harsánylejtőn található, amely a Hármashatár-hegy és a Testvérhegy közötti lankás területen fekszik. Ez a városrész viszonylag fiatal, 2007-ben vált le Csúcshegyről, és azóta önálló, egyedi arculattal fejlődik. A második ütem előnye az első ütemhez képest, hogy nincsenek magasfeszültségű vezetékek ill. magasabban fekszik.
A környéket kertvárosi jelleg, friss levegő, bőséges zöldfelületek és lenyűgöző panoráma jellemzi. Nem véletlen, hogy sok család és igényes otthonkereső választja: itt a természet közelsége és a modern városi kényelem találkozik. A csend és biztonság miatt ideális azok számára, akik nyugodt környezetben szeretnének élni, de nem akarnak lemondani Budapest közelségéről.
A megközelíthetőség kiváló: a 260-as buszjáratok közvetlen kapcsolatot biztosítanak a Bécsi úttal és az Árpád híd irányával, autóval pedig a főbb kiágazásokon keresztül rövid idő alatt elérhető a város szíve.
ÉPÜLET
Tervezők: Chehadé Abdel Rahim és Gőz Dorottya - Amoeba Group
Kevesen tudják, hogy a minimalista stílust eredetileg az egyszerűség és a visszafogottság szinonimájaként tartották számon. Ez a ház viszont éppen azt bizonyítja, hogy a ez a stílus nemcsak hűvös és fegyelmezett lehet, hanem szenvedélyesen elegáns is. Ez az épület egyszerre hordozza a geometrikus rend fegyelmét és a nagyvonalú formák temperamentumát – ritka, hogy két ennyire ellentétes karakter ilyen harmóniában egyesüljön
Ez az családi ház nem egyszerűen otthon: ikonikus építészeti állásfoglalás. A hófehér tömegek és a grafitszürke téglaburkolat kontrasztja, a fa lamellák ritmusa és a nagylelkű üvegfelületek együtt olyan vizuális élményt teremtenek, amelyet egy nemzetközi designmagazin címlapján is megcsodálnánk.
Az épület „kettős arca” – nappal és este
Érdekesség, hogy ez a ház két teljesen különböző arcát mutatja attól függően, hogy nappal vagy este látjuk. Nappal a letisztultság, a fehér felületek és a nagy üvegfelületek fegyelmezett minimalizmusa uralja. Amikor azonban leszáll az est, és felgyulladnak a gondosan komponált, homlokzatot hangsúlyozó fények, az épület szinte átalakul: temperamentumos, szoborszerű jelenlétté válik, amelynek eleganciája magával ragad. Mintha két házat kapnánk egyben – egy fegyelmezett minimalista épületet és egy szenvedélyes design-installációt.
AZ OTTHON TÖRTÉNETE
Belépve azonnal érezzük, hogy ez a ház többről szól, mint funkcióról, és bár a minimalizmus jegyében született, mindenből a maximumot nyújtja.
Minden négyzetmétere a szépség és az igényesség megnyilvánulása.
Az étkező az otthon egyik legimpozánsabb színtere: a fekete kazettás nyílászárók grafikus keretbe foglalják a kert látványát, a mély szürke étkezőszékek és az arany tónusú csillár pedig a hófehér márványhatású padlón olyan kontrasztot alkotnak, amely álomszerűen elegáns.
A konyha visszafogottan modern szürke frontjaival és fényes fehér konyhaszigetével egyszerre hívogat főzésre és beszélgetésre.
A tervezés minden lépése tudatos volt, 50 cm parapettel az étkező rész került egy - magasságba a kerttel, ezáltal a nappali ennyivel "lejjebb" helyezkedik el, ami egyedi otthonos hangulatot, és intimitást ad ennek a fontos helyszínnek.
A nappaliban a mennyezetről lebegő arany körlámpák ragyogása szinte ékszerként díszíti a teret, miközben a világos falak és a mély tónusú bútorok közötti kontraszt kifinomult harmóniát teremt. A fény játékossága a padlón szinte megnyitja a teret – mintha maga az otthon is nagylelkűen kitárná karjait.
Egy mozdulat, és már a teraszon találjuk magunkat, ahol a reggeli kávé vagy tea, és a kert zöldje természetes harmóniában köszönti a napot.
Az emelet intimebb világa a nyugalom és a kifinomultság birodalma. A hálószobák színeiben a hamuszürke, a törtfehér és az aranyló részletek találkoznak, teremtve egy atmoszférát, amely egyszerre elegáns és pihentető. A fürdőszobákban a szabadon álló kád, a walk-in zuhany, a márványerezetű burkolatok és a fa meleg tónusai ötvöződnek – itt a hétköznapi rutin is a kényeztetés szintjére emelkedik.
A kert nem egyszerűen kiegészíti az otthont, – szerves része annak. A jacuzzi gőzölgő meghívása és a precízen komponált zöldfelületek együtt egy nyugalomra hangolt, mégis élettel teli kulisszát teremtenek. Amikor lemegy a nap, a fények új értelmet adnak a térnek – mintha a kert is ünneplőbe öltözne, hogy este is a legszebb arcát mutassa.
MEGHÍVÁS EGY „ZÁRTKÖRŰ RENDEZVÉNYRE"
Ez a családi ház nem mindenkinek szól, és ez így van rendjén.
Ez az otthon azoknak készült, akik nem küzdenek már, hanem választanak.
Akik nem csak házat keresnek – hanem egy olyan teret, ami végre felér hozzájuk és ahhoz, amit valaha megálmodtak, - ami most végre valóra válhat.
Egy ponton túl nem az a kérdés, hogy „megéri-e”, hanem az: tükrözi-e azt az életet, amit élni akarunk?
Ha most magára ismert, akkor nem véletlenül olvassa ezeket a sorokat, és ha idáig eljutott ezt biztosan érzi már.
Akkor ez az otthon Önnek épült.
Vegye fel velem a kapcsolatot, és engedje meg, hogy személyesen mutassam meg.
Már maga a megtekintés is egy élmény lesz, ezt garantálom!
RÖVID ÖSSZEFOGLALÓ
Budapest III. kerületének exkluzív Vizimenta utcájában, - Harsánylejtő második ütemében található 238 m²-es, két szintes épület Nappali + 5 szobával , három fürdőszobával, szülői háló master-bedroom-al és gardrób szobávala bensőséges családi életért.
Az épület hőszivattyús fűtéssel-hűtéssel, dupla garázzsal, jacuzzival és és tudatosan tervezett intim kerttel kínál kompromisszummentes kényelmet a nyugalmat és bensőséges hangulatot keresőknek.
TERVEZŐK ÉS BEMUTATÓ VIDEÓ
A tervezést Chehadé Abdel Rahim és Gőz Dorottya — az Amoeba Group — végezte.
A videó az Építechture sorozatában jelent meg, amely az építészettel és designnal foglalkozó magyar alkotókat, történeteiket és szemléletüket mutatja be emberközpontú, inspiráló módon. YT csatorna elérhető: https://www.youtube.com/@epitechture
A Harsánylejtőn megvalósult, általuk tervezett és bemutatott családi ház egyértelműen erős dialógusba kerül a kerttel, és ennek révén egy zártabb, intimebb családi tér jön létre, ahol a külső és belső határok elmosódnak, de minden részlet átgondoltan szolgálja az együttélés nyugalmát és vizuális egységét.
Az Építechture által készített videó érzékletesen mutatja be a ház téralkotását, a kerttel való kapcsolatát, valamint a belső és külső felületek finom illeszkedéseit. Tekintse meg a videót, és kövesse végig a tervezők gondolatmenetét: hogyan alakul a kert és az épület harmóniája, és mi rejlik minden egyes forma, anyag és térkapcsolat mögött.
LOKÁCIÓ
Az épület a III. kerület egyik legkülönlegesebb részén, Harsánylejtőn található, amely a Hármashatár-hegy és a Testvérhegy közötti lankás területen fekszik. Ez a városrész viszonylag fiatal, 2007-ben vált le Csúcshegyről, és azóta önálló, egyedi arculattal fejlődik. A második ütem előnye az első ütemhez képest, hogy nincsenek magasfeszültségű vezetékek ill. magasabban fekszik.
A környéket kertvárosi jelleg, friss levegő, bőséges zöldfelületek és lenyűgöző panoráma jellemzi. Nem véletlen, hogy sok család és igényes otthonkereső választja: itt a természet közelsége és a modern városi kényelem találkozik. A csend és biztonság miatt ideális azok számára, akik nyugodt környezetben szeretnének élni, de nem akarnak lemondani Budapest közelségéről.
A megközelíthetőség kiváló: a 260-as buszjáratok közvetlen kapcsolatot biztosítanak a Bécsi úttal és az Árpád híd irányával, autóval pedig a főbb kiágazásokon keresztül rövid idő alatt elérhető a város szíve.
ÉPÜLET
Tervezők: Chehadé Abdel Rahim és Gőz Dorottya - Amoeba Group
Kevesen tudják, hogy a minimalista stílust eredetileg az egyszerűség és a visszafogottság szinonimájaként tartották számon. Ez a ház viszont éppen azt bizonyítja, hogy a ez a stílus nemcsak hűvös és fegyelmezett lehet, hanem szenvedélyesen elegáns is. Ez az épület egyszerre hordozza a geometrikus rend fegyelmét és a nagyvonalú formák temperamentumát – ritka, hogy két ennyire ellentétes karakter ilyen harmóniában egyesüljön
Ez az családi ház nem egyszerűen otthon: ikonikus építészeti állásfoglalás. A hófehér tömegek és a grafitszürke téglaburkolat kontrasztja, a fa lamellák ritmusa és a nagylelkű üvegfelületek együtt olyan vizuális élményt teremtenek, amelyet egy nemzetközi designmagazin címlapján is megcsodálnánk.
Az épület „kettős arca” – nappal és este
Érdekesség, hogy ez a ház két teljesen különböző arcát mutatja attól függően, hogy nappal vagy este látjuk. Nappal a letisztultság, a fehér felületek és a nagy üvegfelületek fegyelmezett minimalizmusa uralja. Amikor azonban leszáll az est, és felgyulladnak a gondosan komponált, homlokzatot hangsúlyozó fények, az épület szinte átalakul: temperamentumos, szoborszerű jelenlétté válik, amelynek eleganciája magával ragad. Mintha két házat kapnánk egyben – egy fegyelmezett minimalista épületet és egy szenvedélyes design-installációt.
AZ OTTHON TÖRTÉNETE
Belépve azonnal érezzük, hogy ez a ház többről szól, mint funkcióról, és bár a minimalizmus jegyében született, mindenből a maximumot nyújtja.
Minden négyzetmétere a szépség és az igényesség megnyilvánulása.
Az étkező az otthon egyik legimpozánsabb színtere: a fekete kazettás nyílászárók grafikus keretbe foglalják a kert látványát, a mély szürke étkezőszékek és az arany tónusú csillár pedig a hófehér márványhatású padlón olyan kontrasztot alkotnak, amely álomszerűen elegáns.
A konyha visszafogottan modern szürke frontjaival és fényes fehér konyhaszigetével egyszerre hívogat főzésre és beszélgetésre.
A tervezés minden lépése tudatos volt, 50 cm parapettel az étkező rész került egy - magasságba a kerttel, ezáltal a nappali ennyivel "lejjebb" helyezkedik el, ami egyedi otthonos hangulatot, és intimitást ad ennek a fontos helyszínnek.
A nappaliban a mennyezetről lebegő arany körlámpák ragyogása szinte ékszerként díszíti a teret, miközben a világos falak és a mély tónusú bútorok közötti kontraszt kifinomult harmóniát teremt. A fény játékossága a padlón szinte megnyitja a teret – mintha maga az otthon is nagylelkűen kitárná karjait.
Egy mozdulat, és már a teraszon találjuk magunkat, ahol a reggeli kávé vagy tea, és a kert zöldje természetes harmóniában köszönti a napot.
Az emelet intimebb világa a nyugalom és a kifinomultság birodalma. A hálószobák színeiben a hamuszürke, a törtfehér és az aranyló részletek találkoznak, teremtve egy atmoszférát, amely egyszerre elegáns és pihentető. A fürdőszobákban a szabadon álló kád, a walk-in zuhany, a márványerezetű burkolatok és a fa meleg tónusai ötvöződnek – itt a hétköznapi rutin is a kényeztetés szintjére emelkedik.
A kert nem egyszerűen kiegészíti az otthont, – szerves része annak. A jacuzzi gőzölgő meghívása és a precízen komponált zöldfelületek együtt egy nyugalomra hangolt, mégis élettel teli kulisszát teremtenek. Amikor lemegy a nap, a fények új értelmet adnak a térnek – mintha a kert is ünneplőbe öltözne, hogy este is a legszebb arcát mutassa.
MEGHÍVÁS EGY „ZÁRTKÖRŰ RENDEZVÉNYRE"
Ez a családi ház nem mindenkinek szól, és ez így van rendjén.
Ez az otthon azoknak készült, akik nem küzdenek már, hanem választanak.
Akik nem csak házat keresnek – hanem egy olyan teret, ami végre felér hozzájuk és ahhoz, amit valaha megálmodtak, - ami most végre valóra válhat.
Egy ponton túl nem az a kérdés, hogy „megéri-e”, hanem az: tükrözi-e azt az életet, amit élni akarunk?
Ha most magára ismert, akkor nem véletlenül olvassa ezeket a sorokat, és ha idáig eljutott ezt biztosan érzi már.
Akkor ez az otthon Önnek épült.
Vegye fel velem a kapcsolatot, és engedje meg, hogy személyesen mutassam meg.
Már maga a megtekintés is egy élmény lesz, ezt garantálom!
Registration Number
H507681
Property Details
Sales
for sale
Legal Status
used
Character
house
Construction Method
brick
Net Size
238 m²
Gross Size
263 m²
Plot Size
1,080 m²
Size of Terrace / Balcony
50 m²
Garden Size
800 m²
Heating
renewable
Ceiling Height
275 cm
Number of Levels Within the Property
2
Orientation
South-West
View
Green view
Condition
Excellent
Condition of Facade
Excellent
Neighborhood
quiet, green
Year of Construction
2020
Number of Bathrooms
3
Condominium Garden
yes
Garage
Included in the price
Garage Spaces
2
Water
Available
Gas
On the street
Electricity
Available
Sewer
Available
Rooms
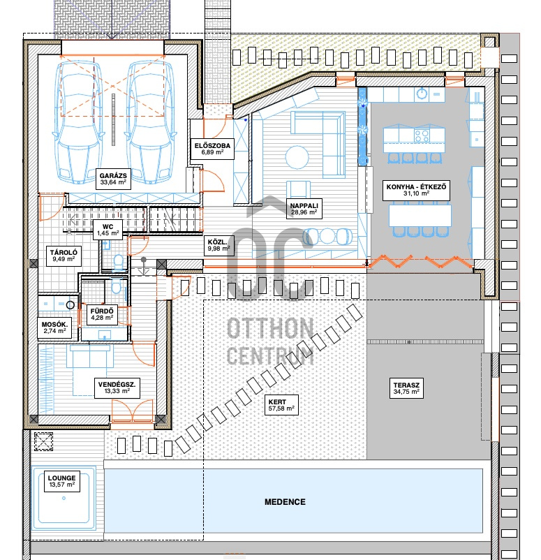
entryway
6.89 m²
corridor
9.98 m²
garage
33.64 m²
living room
28.96 m²
open-plan kitchen and dining room
31.1 m²
toilet-washbasin
1.45 m²
storage
9.49 m²
bathroom-toilet
4.28 m²
laundry room
2.74 m²
bedroom
13.33 m²
other room
13.57 m²
terrace
34.75 m²
corridor
11.45 m²
other
10.57 m²
bedroom
10.66 m²
bathroom-toilet
4.54 m²
bedroom
14.68 m²
bedroom
18.9 m²
bathroom-toilet
9 m²
wardrobe
6.86 m²
values.realestate.szobatipus.49
16.2 m²
Tóth Róbert
Credit Expert