110,000,000 Ft
281,000 €
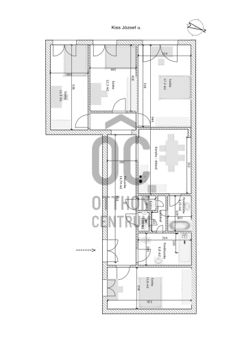
- 98m²
- 5 Rooms
- 3rd floor














Fedezze fel Budapest szívében ezt az öt szobás otthont – ideális választás családoknak és befektetőknek!
BEFEKTETŐK FIGYELMÉBE!!! 6,24%-os hozam. Eladó egy 98m2-es teljeskörűen felújított lakás a Kiss József u. 12-ben, komplett új villany, álmenyezet LED világítással, kondenzációs gáz cirkó fűtés radiátorokkal, új kémény, új burkolatok, 2 fürdőszoba, külön kazánhelyiség mosógéppel, gépesített konyha, új 86 mm-es 3 rétegű üvegezésű ablakok és bejárati ajtó, komplett bútorzat és berendezés. A lakás a harmadik emeleten található, utcai, DNY-i fekvésű. Négy, nagy méretű, külön nyíló szoba, 2 fürdőszoba, 2 WC található benne. A lakás hosszú távra bérbe van adva egy cégnek 1.300Eur áron. Az ára 100mió Ft, a berendezések, bútorok, felszerelések plusz 10 milló Ft, tehát összesen 110 mióFt. A lakás csak ezekkel együtt kerül eladásra.
Registration Number
H507186
Property Details
Sales
for sale
Legal Status
used
Character
apartment
Construction Method
brick
Net Size
98 m²
Gross Size
98 m²
Heating
Gas circulator
Ceiling Height
300 cm
Number of Levels Within the Property
1
Orientation
West
Staircase Type
circular corridor
Condition
Excellent
Condition of Facade
Good
Condition of Staircase
Good
Year of Construction
1920
Number of Bathrooms
2
Position
street-facing
Water
Available
Gas
Available
Electricity
Available
Sewer
Available
Rooms
bedroom
12.9 m²
bedroom
10.3 m²
bedroom
17.3 m²
bathroom
3.23 m²
bathroom
6.6 m²
toilet
1.03 m²
pantry
1.48 m²
entryway
14.74 m²
open-plan kitchen and dining room
33 m²

Váczi Zsófia
Credit Expert