data_sheet.details.realestate.section.main.otthonstart_flag.label
For sale family house,
H505581
Nagytarcsa
126,900,000 Ft
324,000 €
- 147m²
- 4 Rooms





















4 szobás önálló családi ház Nagytarcsán nagy telekkel eladó
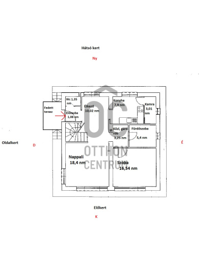
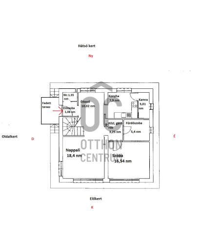
Nagytarcsán csendes mellékutcában kínálunk megvásárlása egy 796 nm-es összközműves telken álló alápincézett+ két lakószintes önálló családi házat. A földszinten a fedett teraszról nyílik a bejárat, ahol a tágas, csupa napfény nappali (kelet-délkeleti tájolású), kényelmes méretű étkező, konyha, kamra, egy nagy hálószoba, fürdőszoba és egy külön mellékhelyiség került kialakításra. Modern, mai igényeknek megfelelő belső elosztás, tágas, rendkívül világos helyiségek. Az emeletre kényelmes lépcső vezet, ahol két nagy hálószoba (egyik teraszos), és egy nagy kádas fürdőszoba kapott helyet. A fürdőszoba a két hálószoba között helyezkedik el, mindkét szobából közvetlenül megközelíthető. A lakóépület alatt több helyiségből álló nagy szuterén található, itt garázs, kazánház, tárolók vannak, a lakásba a belső lépcsőn juthatunk fel. A ház 2000-ben nyerte el mai formáját, ekkor lett bővítve a tetőtérrel. A nyílászárók cserélve lettek korszerű műanyag ablakokra redőnyökkel és szúnyoghálóval felszerelve, a fűtést egy korszerű turbós kombi cirkó biztosítja, de rendelkezésre áll egy szinte új vegyes tüzelésű kazán is. A tetőt beton cserép fedi, a kertben 3 autó számára fedett beálló lett kialakítva. A környék csendes, csupa zöld, buszmegálló, bevásárlási lehetőség pár perces sétával elérhető.
Registration Number
H505581
Property Details
Sales
for sale
Legal Status
used
Character
house
Construction Method
brick
Net Size
147 m²
Gross Size
187 m²
Plot Size
796 m²
Size of Terrace / Balcony
16 m²
Heating
Gas circulator
Ceiling Height
270 cm
Number of Levels Within the Property
3
Orientation
East
Condition
Good
Condition of Facade
Good
Basement
Independent
Neighborhood
quiet, good transport, green
Year of Construction
1984
Number of Bathrooms
2
Garage
Included in the price
Garage Spaces
1
Number of Covered Parking Spots
3
Water
Available
Gas
Available
Electricity
Available
Sewer
Available
Storage
Independent
Rooms
living room
18.4 m²
bedroom
16.4 m²
bathroom
5.4 m²
kitchen
7.9 m²
pantry
3.01 m²
dining room
10.02 m²
entryway
1.08 m²
toilet-washbasin
1.35 m²
corridor
3.25 m²
bedroom
17.06 m²
bedroom
18.75 m²
balcony
6 m²
bathroom-toilet
6.25 m²
corridor
4.5 m²
garage
22.68 m²
boiler room
12.8 m²
storage
5.97 m²
storage
17.85 m²
corridor
3.6 m²
staircase
2.16 m²

Torday Tibor
Credit Expert