800,000,000 Ft
2,058,000 €
- 1,721m²





Nagy telek, nagy lehetőség – egyedi helyszín Budán!
Eladásra kínálok egy különleges adottságokkal rendelkező, 1721 m2-es, 5 lakásos társasház építésére alkalmas, összközműves telket Budapest II. kerületének egyik legkeresettebb részén, Törökvészen!
A telek csendes, zöldövezeti környezetben helyezkedik el, mégis könnyen megközelíthető, aszfaltozott utcában található, kiváló infrastruktúrával a közelben. A környék kimondottan családbarát, ugyanakkor azok számára is ideális, akik nyugodt, zöldövezeti lakókörnyezetre vágynak a város közelségében.
A telek jelenleg Lke-2/SZ-9 övezeti besorolás alá esik, ami lehetőséget biztosít 15%-os beépíthetőségre, 0,4-es színterületi mutató mellett, és legfeljebb 7,5 méter építménymagasság engedélyezett. Ez azt jelenti, hogy a telek mérete és szabályozása akár egy nagyméretű, 5 lakásos társasház megépítését is lehetővé teszi, miközben a zöldfelület aránya el kell hogy érje a 75%-ot.
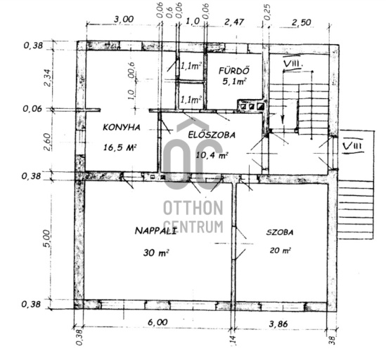
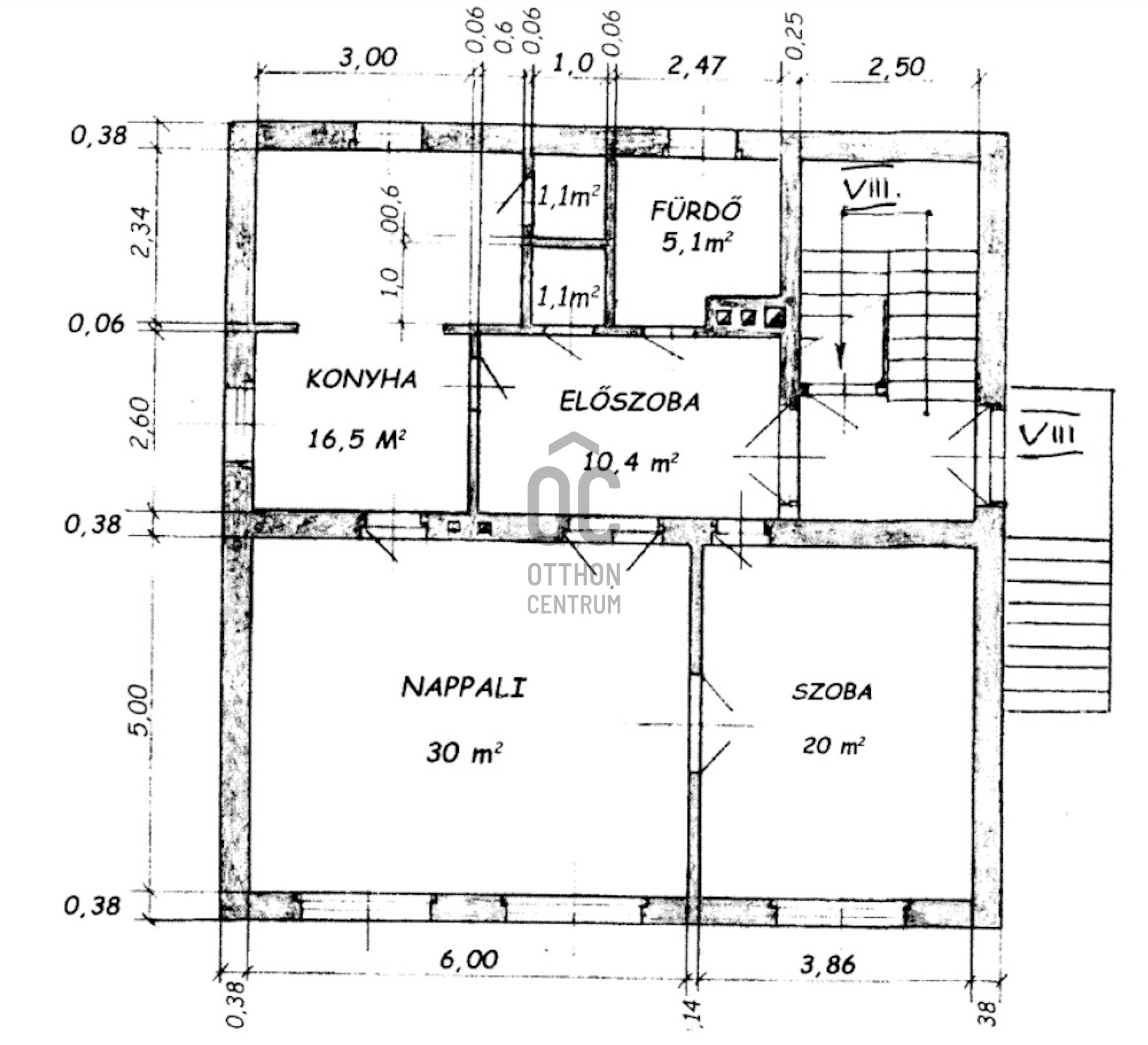
A telken jelenleg egy 1972-ben épült, 247 négyzetméteres lakóépület áll. Az épület állapota miatt elsősorban bontásra ajánlott, de természetesen felújítás is lehetséges azok számára, akik értéket látnak a meglévő struktúrában. Az ingatlan délkeleti tájolású, így a benapozottsága kiváló, ami különösen alkalmassá teszi egy modern, napfényes otthon kialakítására.
A környék egyedi hangulatát a nyugodt, természetközeli környezet, valamint a város közelsége adja. Ez a telek nemcsak otthonteremtésre, hanem befektetésnek is kiváló választás lehet, hiszen a II. kerület ezen része évről évre stabil értéknövekedést mutat.
Amennyiben egy kivételes méretű, jól szabályozott, zöldövezeti telket keres Budán, amely mind a nyugalmat, mind a központi elérhetőséget kínálja, ez az ingatlan remek lehetőség lehet az Ön számára is.
További információért és megtekintésért kérem, keressen bizalommal.
A telek csendes, zöldövezeti környezetben helyezkedik el, mégis könnyen megközelíthető, aszfaltozott utcában található, kiváló infrastruktúrával a közelben. A környék kimondottan családbarát, ugyanakkor azok számára is ideális, akik nyugodt, zöldövezeti lakókörnyezetre vágynak a város közelségében.
A telek jelenleg Lke-2/SZ-9 övezeti besorolás alá esik, ami lehetőséget biztosít 15%-os beépíthetőségre, 0,4-es színterületi mutató mellett, és legfeljebb 7,5 méter építménymagasság engedélyezett. Ez azt jelenti, hogy a telek mérete és szabályozása akár egy nagyméretű, 5 lakásos társasház megépítését is lehetővé teszi, miközben a zöldfelület aránya el kell hogy érje a 75%-ot.
A telken jelenleg egy 1972-ben épült, 247 négyzetméteres lakóépület áll. Az épület állapota miatt elsősorban bontásra ajánlott, de természetesen felújítás is lehetséges azok számára, akik értéket látnak a meglévő struktúrában. Az ingatlan délkeleti tájolású, így a benapozottsága kiváló, ami különösen alkalmassá teszi egy modern, napfényes otthon kialakítására.
A környék egyedi hangulatát a nyugodt, természetközeli környezet, valamint a város közelsége adja. Ez a telek nemcsak otthonteremtésre, hanem befektetésnek is kiváló választás lehet, hiszen a II. kerület ezen része évről évre stabil értéknövekedést mutat.
Amennyiben egy kivételes méretű, jól szabályozott, zöldövezeti telket keres Budán, amely mind a nyugalmat, mind a központi elérhetőséget kínálja, ez az ingatlan remek lehetőség lehet az Ön számára is.
További információért és megtekintésért kérem, keressen bizalommal.
Registration Number
H504178
Property Details
Sales
for sale
Character
plot
Type of Land
Building plot
Zone
residential zone
Plot Size
1,721 m²
Orientation
South-East
View
Other
Neighborhood
quiet, green, central
Garage
Included in the price
Water
Available
Gas
Available
Electricity
Available
Sewer
Available
Buildability
15%
Facade Height
750
Type of Buildable Property
Family house, Semi-detached house, Condominium up to 4 apartments