698,000,000 Ft
1,848,000 €
- 844m²
- 18 Rooms
ATTENTION! PANORAMIC CROWN JEWEL IN BUDAPEST FOR SALE!
6 FLOORS, ENDLESS OPPORTUNITY: UNBEATABLE INVESTMENT IN DISTRICT I!
Are you looking for that unmissable investment where sensational location meets limitless potential? You've found it! This 6-story, elevator-equipped brick building awaits its new owner in the heart of Budapest's District I, in the stunning Víziváros.
✨ THE KEY TO THE FUTURE AND BUDAPEST'S PANORAMA! ✨
Extra Profit Potential: Based on the valid zoning classification (Vt−V/I/03), there is an opportunity to add ONE EXTRA FLOOR on top of the building! Imagine the breathtaking, 360° Buda panoramic views from the new, premium penthouse apartments or rooftop units!
A TREASURE TROVE OF POSSIBILITIES: Anything is achievable across these 6 floors!
Luxury Condominium/Apartment Building: Exclusive residences in the most sought-after location.
Vibrant Hostel/Boutique Hotel: Taking advantage of the excellent tourist positioning.
Modern Healthcare Center: A stable, sought-after function in a central location.
UNENCUMBERED AND LIEN-FREE: A profitable investment that is immediately available for occupancy.
ECONOMIC MAINTENANCE: Thanks to the central heating system of this well-maintained building with an elevator, running costs are favorable!
UNPARALLELED LOCATION: Víziváros offers perfect infrastructure! Restaurants, cafés, and services are in the immediate vicinity. Green parks and historic buildings vibrantly merge with modern business life.
TOP TRANSPORTATION JUST A 2-MINUTE WALK AWAY!
M2 Metro
Tram 4/6
Numerous bus and other tram lines Any point in the city is quickly and easily accessible!
DON'T JUST DREAM ABOUT A LUCRATIVE INVESTMENT!
Ask for the TRANSFORMATION IDEAS AND VISUAL DESIGNS (for a healthcare facility, hostel, and apartments) prepared to maximize your investment today!
We support our buyer clients with free, independent mortgage consulting to help them make the most advantageous financing decisions. With our optional additional services – such as legal assistance, energy certification, or electrical safety inspection – we provide comprehensive professional support at every step of the sales process.
Are you looking for that unmissable investment where sensational location meets limitless potential? You've found it! This 6-story, elevator-equipped brick building awaits its new owner in the heart of Budapest's District I, in the stunning Víziváros.
✨ THE KEY TO THE FUTURE AND BUDAPEST'S PANORAMA! ✨
Extra Profit Potential: Based on the valid zoning classification (Vt−V/I/03), there is an opportunity to add ONE EXTRA FLOOR on top of the building! Imagine the breathtaking, 360° Buda panoramic views from the new, premium penthouse apartments or rooftop units!
A TREASURE TROVE OF POSSIBILITIES: Anything is achievable across these 6 floors!
Luxury Condominium/Apartment Building: Exclusive residences in the most sought-after location.
Vibrant Hostel/Boutique Hotel: Taking advantage of the excellent tourist positioning.
Modern Healthcare Center: A stable, sought-after function in a central location.
UNENCUMBERED AND LIEN-FREE: A profitable investment that is immediately available for occupancy.
ECONOMIC MAINTENANCE: Thanks to the central heating system of this well-maintained building with an elevator, running costs are favorable!
UNPARALLELED LOCATION: Víziváros offers perfect infrastructure! Restaurants, cafés, and services are in the immediate vicinity. Green parks and historic buildings vibrantly merge with modern business life.
TOP TRANSPORTATION JUST A 2-MINUTE WALK AWAY!
M2 Metro
Tram 4/6
Numerous bus and other tram lines Any point in the city is quickly and easily accessible!
DON'T JUST DREAM ABOUT A LUCRATIVE INVESTMENT!
Ask for the TRANSFORMATION IDEAS AND VISUAL DESIGNS (for a healthcare facility, hostel, and apartments) prepared to maximize your investment today!
We support our buyer clients with free, independent mortgage consulting to help them make the most advantageous financing decisions. With our optional additional services – such as legal assistance, energy certification, or electrical safety inspection – we provide comprehensive professional support at every step of the sales process.
Registration Number
H498983
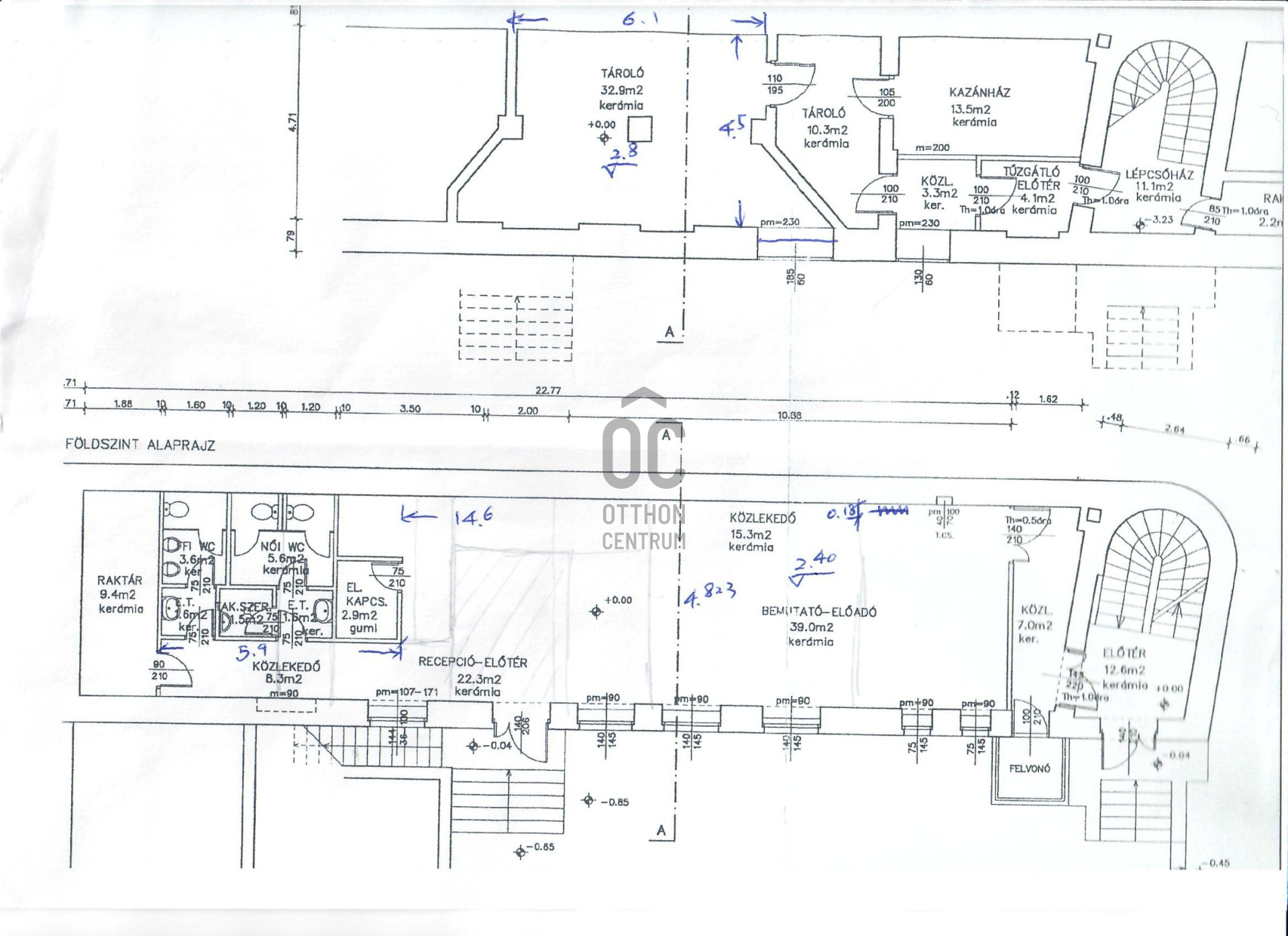
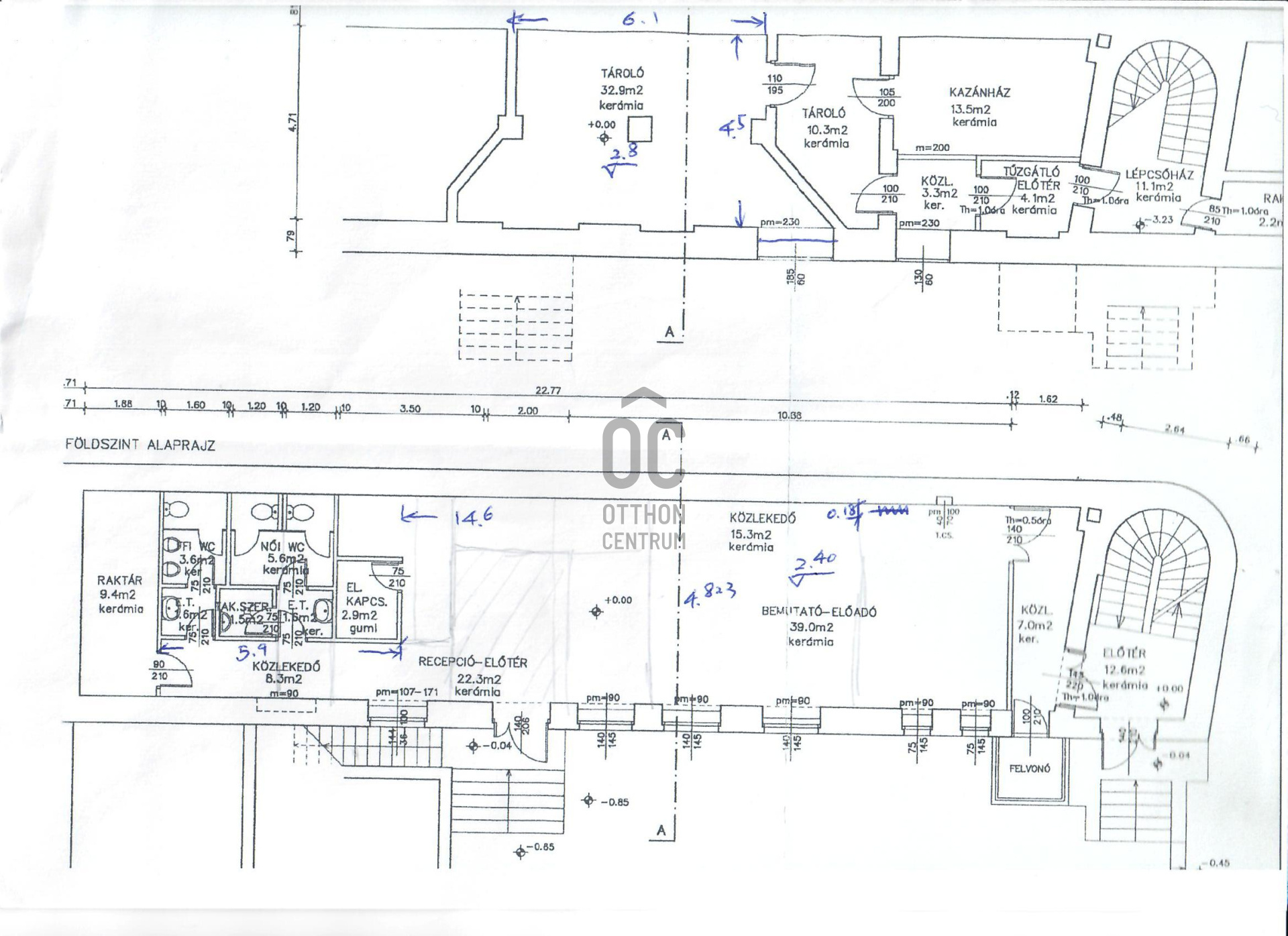
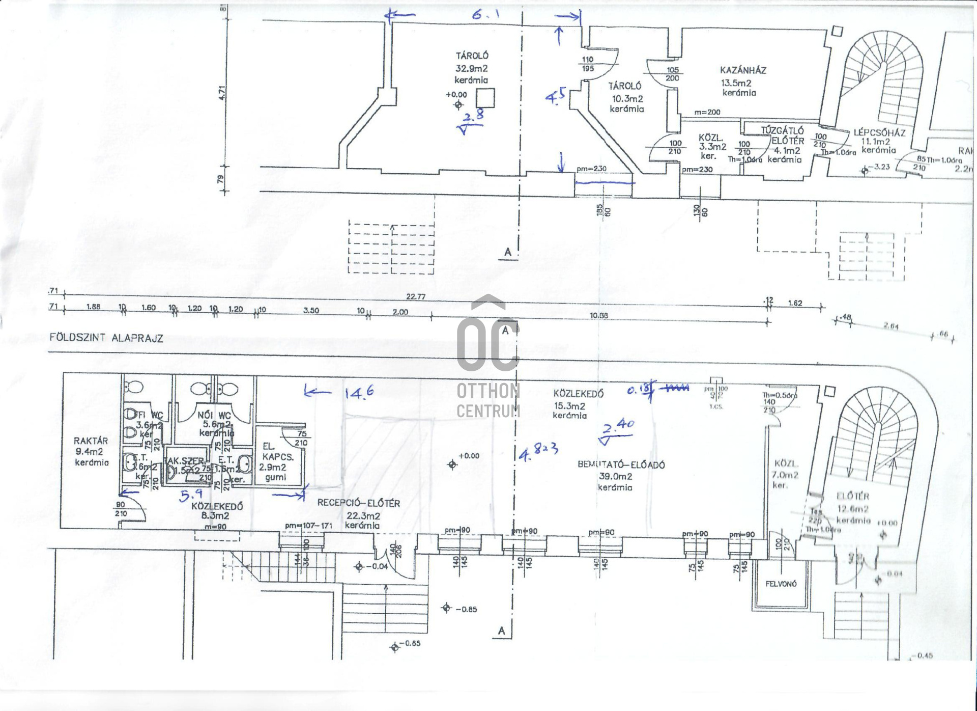
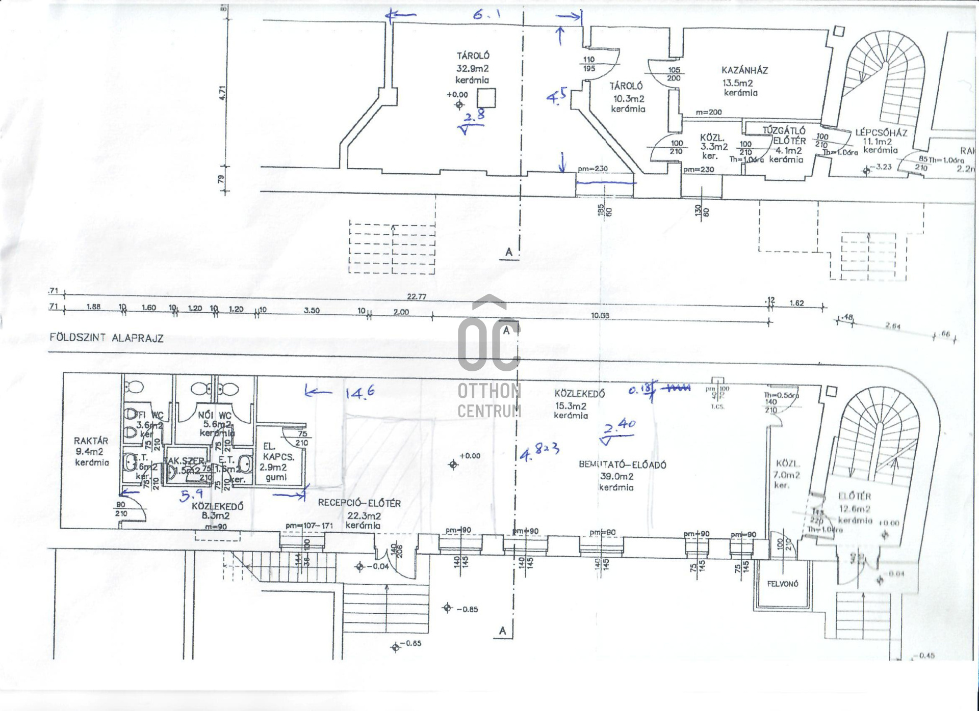
Property Details
Sales
for sale
Legal Status
used
Character
house
Construction Method
brick
Net Size
844 m²
Gross Size
844 m²
Plot Size
140 m²
Heating
unmetered central heating
Ceiling Height
310 cm
Orientation
North-West
View
Other
Condition
Good
Condition of Facade
Good
Basement
Independent
Neighborhood
good transport, central
Year of Construction
1990
Number of Bathrooms
6
Water
Available
Gas
Available
Electricity
Available
Sewer
Available
Rooms
other room
70 m²
other room
70 m²
other room
70 m²
other room
70 m²
other room
70 m²
other room
70 m²
bathroom-toilet
10 m²
bathroom-toilet
10 m²
bathroom-toilet
10 m²
bathroom-toilet
10 m²
staircase
30 m²
terrace
80 m²
other room
50 m²
other room
50 m²
other room
50 m²
other room
50 m²
other room
50 m²
other room
50 m²
other
14 m²
other
14 m²
other
14 m²
other
14 m²
other
14 m²
other
14 m²
Gerber Dorottya
Credit Expert