190,000,000 Ft
506,000 €
- 200m²
- 7 Rooms
Többgenerációs családi ház
Attractive Family Home for Sale in the Heart of Rákosszentmihály!
For sale in the 14th district, Rákosszentmihály area, a spacious, 3-story, 7-room family house, located in a quiet side street, offering numerous opportunities and modern comforts!
Why Rákosszentmihály?
Peaceful, green environment: Perfect for families seeking the harmony of nature while staying close to the city.
Excellent infrastructure: Nearby kindergartens, schools, shopping facilities, and public transportation connections.
Key Features of the Property:
Built in 1992, this brick house sits on a 600 m² plot, fully accessible from all sides.
Multi-generational layout: The separate entrances to each floor provide privacy and comfort for all family members.
Expansion possibilities: The attic can be developed into an additional living space.
Unique Extras:
Semi-basement: A 51 m² garage with space for up to 3 cars, plus a laundry room, pantry, hobby room, bathroom, and WC.
Workshop or additional living space: A 60 m² workshop is located on the plot, equipped with 380V industrial electricity – can be transformed into a garage or a separate apartment.
Floor-by-Floor Layout:
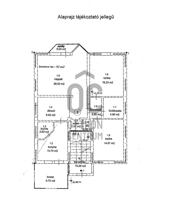
Ground Floor: Living room, 2 bedrooms, kitchen, pantry, dining room, bathroom, and a separate WC.
First Floor: Living room, 2 bedrooms, kitchen, bathroom with WC.
Modern Comforts: Wooden windows, air conditioning, and underfloor heating.
Don’t miss out on this exceptional opportunity! A perfect home in the heart of Rákosszentmihály, offering comfort, functionality, and expansion potential. Live in a dynamic yet tranquil environment, ideal for harmonious family living!
Contact us today to ensure you don’t miss this rare opportunity!
For sale in the 14th district, Rákosszentmihály area, a spacious, 3-story, 7-room family house, located in a quiet side street, offering numerous opportunities and modern comforts!
Why Rákosszentmihály?
Peaceful, green environment: Perfect for families seeking the harmony of nature while staying close to the city.
Excellent infrastructure: Nearby kindergartens, schools, shopping facilities, and public transportation connections.
Key Features of the Property:
Built in 1992, this brick house sits on a 600 m² plot, fully accessible from all sides.
Multi-generational layout: The separate entrances to each floor provide privacy and comfort for all family members.
Expansion possibilities: The attic can be developed into an additional living space.
Unique Extras:
Semi-basement: A 51 m² garage with space for up to 3 cars, plus a laundry room, pantry, hobby room, bathroom, and WC.
Workshop or additional living space: A 60 m² workshop is located on the plot, equipped with 380V industrial electricity – can be transformed into a garage or a separate apartment.
Floor-by-Floor Layout:
Ground Floor: Living room, 2 bedrooms, kitchen, pantry, dining room, bathroom, and a separate WC.
First Floor: Living room, 2 bedrooms, kitchen, bathroom with WC.
Modern Comforts: Wooden windows, air conditioning, and underfloor heating.
Don’t miss out on this exceptional opportunity! A perfect home in the heart of Rákosszentmihály, offering comfort, functionality, and expansion potential. Live in a dynamic yet tranquil environment, ideal for harmonious family living!
Contact us today to ensure you don’t miss this rare opportunity!
Registration Number
H494083
Property Details
Sales
for sale
Legal Status
used
Character
house
Construction Method
brick
Net Size
200 m²
Gross Size
200 m²
Plot Size
578 m²
Size of Terrace / Balcony
9 m²
Heating
gas boiler
Ceiling Height
290 cm
Number of Levels Within the Property
3
Orientation
South-West
Condition
Good
Condition of Facade
Good
Basement
Independent
Year of Construction
1992
Number of Bathrooms
3
Garage
Included in the price
Garage Spaces
3
Water
Available
Gas
Available
Electricity
Available
Sewer
Available
Storage
Independent
Rooms
living room
29 m²
bedroom
16 m²
bedroom
15 m²
kitchen
10 m²
dining room
8 m²
pantry
3 m²
bathroom
5 m²
corridor
3 m²
toilet
1 m²
staircase
10 m²
Durucskó Gabriella
Credit Expert