189,000,000 Ft
502,000 €
- 83m²
- 4 Rooms
- 1st floor
Belvárosi elegancia
Szeretne egy gyönyörű, tágas, modern otthonban élni, melyből élvezheti a belváros nyújtotta előnyöket? Ide csak a bőröndjét kell hoznia! Üdv itthon!
RÖVID ÖSSZEFOGLALÓ
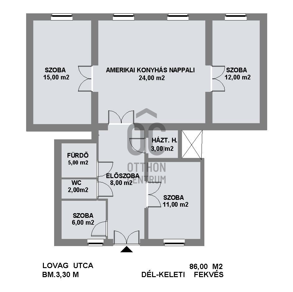
Budapest VI. kerületének Belső-Terézváros részén, az egyirányú Lovag utcában, felújított, liftes, impozáns nagypolgári társasház, első emelet, 86 négyzetméteres, tágas amerikai konyhás nappali, három hálószoba és dolgozó, két fürdőszoba. Egy egyedi lakás, ahol a modern bútorok stílusosan összhangban áll a régi nagypolgári báj minden elemével.
KINEK AJÁNLOM?
- Akik egy teljeskörűen felújított lakás keresnek azonnali megoldásként.
- Ideális választás családoknak vagy azoknak, akik a belváros pezsgő életét keresik, de egy csendes otthonra vágynak.
- Külföldieknek, akik megízlelnék a klasszikus belvárosi életérzést.
A LAKÁSRÓL
A lakás 86 négyzetméteres (tulajdoni lapon 83), melyet optimálisan osztottak el, hogy minden négyzetcentiméter a kényelmet és a funkcionalitást szolgálja. A négy hálószoba világos, jól szeparált, és remek elosztásuknak köszönhetően maximális privát szférát biztosítanak. Az amerikai konyhás nappali tágas, ideális helyszín a családi összejövetelekhez vagy baráti beszélgetésekhez. A két fürdőszoba modern, letisztult dizájnú, és minden igényt kielégít.
MŰSZAKI TARTALOM
Bosch konyhai gépek, Gránit mosogató tálca
Legrand villanykapcsolók és egyedi keretek
Egyedi OIKOS olasz strukturált falbetétek, díszfestékek
Riasztórendszer
60x120cm -es lapokkal mennyezetig burkolatok
Wellis szaniterek
Állmennyezetbe beépített hangszórók
Fűtési rendszer: kiépített gáz cirkó a radiátorokhoz, padlófűtéshez
elektromos cirkó kiállás
2 db hőszivattyús 3,5kw teljesítményű klíma,
Teljes körűen felújított nyílászárók (savmart üveg, hőszigetelés, passzítás, polírozott réz kilincsek, zárszerkezet felújítás)
A TÁRSASHÁZ
Az épület az 1920-as évek báját és eleganciáját tükrözi, ugyanakkor modern kényelmet biztosít, hiszen felújított állapotban van. A lift kényelmes közlekedést biztosít a lakók számára, a lakás pedig az első emeleten helyezkedik el, így gyorsan és könnyen megközelíthető.
Mindössze 22.000 Ft-os közös költséggel, amely tartalmazza a felújítási alapot.
LOKÁCIÓ - BELSŐ TERÉZVÁROS
A Lovag utca a 6. kerület egyik gyöngyszeme, ahol a belváros nyüzsgése és a csendes, hangulatos utcák egyedülálló kombinációját élvezheti. Néhány perces sétával elérhető a Nyugati tér, a Westend bevásárlóközpont, valamint számos kávézó, étterem és kulturális intézmény. Kiváló tömegközlekedési kapcsolatokkal rendelkezik, így a város bármely pontja könnyen elérhető.
PARKOLÁS
Az utcában fizetős parkolási lehetőség áll rendelkezésre, de lakcím bejelentés egy autóra igényelhető kerületi éves parkolás "utcai bérlet".
TÖMEGKÖZLEKEDÉS
4-6 Villamossal könnyedén bárhova eljuthat a körúton.
M3 metró, az Arany János utcai megálló van a legközelebb a lakáshoz.
70-es trolibusz
MOL BUBI
A Legközelebbi kerékpárgyűjtő állomás a Teréz körút/Szondi út találkozásánál van.
Ez az ingatlan nemcsak egy otthon, hanem valódi életérzés – Budapest pezsgő központjában, mégis nyugodt környezetben élhet.
Jöjjön el, bizonyosodjon meg saját szemével erről a lenyűgöző lakásról. Várom megtisztelő hívását!
RÖVID ÖSSZEFOGLALÓ
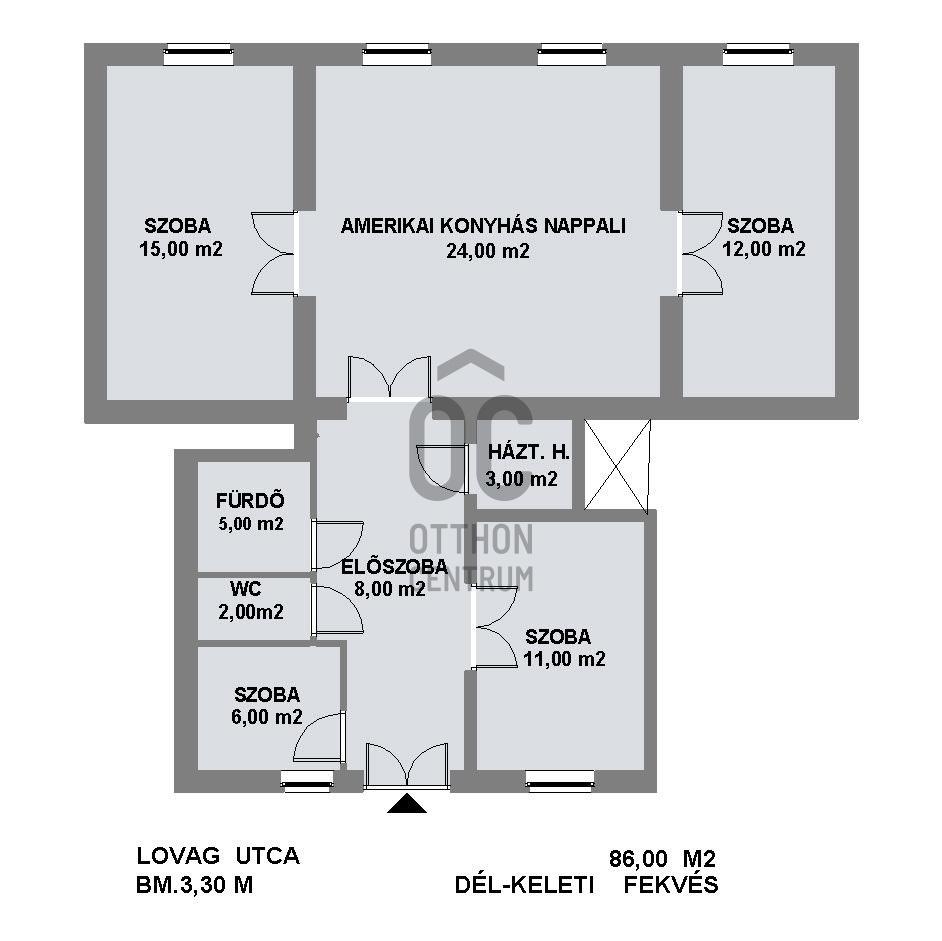
Budapest VI. kerületének Belső-Terézváros részén, az egyirányú Lovag utcában, felújított, liftes, impozáns nagypolgári társasház, első emelet, 86 négyzetméteres, tágas amerikai konyhás nappali, három hálószoba és dolgozó, két fürdőszoba. Egy egyedi lakás, ahol a modern bútorok stílusosan összhangban áll a régi nagypolgári báj minden elemével.
KINEK AJÁNLOM?
- Akik egy teljeskörűen felújított lakás keresnek azonnali megoldásként.
- Ideális választás családoknak vagy azoknak, akik a belváros pezsgő életét keresik, de egy csendes otthonra vágynak.
- Külföldieknek, akik megízlelnék a klasszikus belvárosi életérzést.
A LAKÁSRÓL
A lakás 86 négyzetméteres (tulajdoni lapon 83), melyet optimálisan osztottak el, hogy minden négyzetcentiméter a kényelmet és a funkcionalitást szolgálja. A négy hálószoba világos, jól szeparált, és remek elosztásuknak köszönhetően maximális privát szférát biztosítanak. Az amerikai konyhás nappali tágas, ideális helyszín a családi összejövetelekhez vagy baráti beszélgetésekhez. A két fürdőszoba modern, letisztult dizájnú, és minden igényt kielégít.
MŰSZAKI TARTALOM
Bosch konyhai gépek, Gránit mosogató tálca
Legrand villanykapcsolók és egyedi keretek
Egyedi OIKOS olasz strukturált falbetétek, díszfestékek
Riasztórendszer
60x120cm -es lapokkal mennyezetig burkolatok
Wellis szaniterek
Állmennyezetbe beépített hangszórók
Fűtési rendszer: kiépített gáz cirkó a radiátorokhoz, padlófűtéshez
elektromos cirkó kiállás
2 db hőszivattyús 3,5kw teljesítményű klíma,
Teljes körűen felújított nyílászárók (savmart üveg, hőszigetelés, passzítás, polírozott réz kilincsek, zárszerkezet felújítás)
A TÁRSASHÁZ
Az épület az 1920-as évek báját és eleganciáját tükrözi, ugyanakkor modern kényelmet biztosít, hiszen felújított állapotban van. A lift kényelmes közlekedést biztosít a lakók számára, a lakás pedig az első emeleten helyezkedik el, így gyorsan és könnyen megközelíthető.
Mindössze 22.000 Ft-os közös költséggel, amely tartalmazza a felújítási alapot.
LOKÁCIÓ - BELSŐ TERÉZVÁROS
A Lovag utca a 6. kerület egyik gyöngyszeme, ahol a belváros nyüzsgése és a csendes, hangulatos utcák egyedülálló kombinációját élvezheti. Néhány perces sétával elérhető a Nyugati tér, a Westend bevásárlóközpont, valamint számos kávézó, étterem és kulturális intézmény. Kiváló tömegközlekedési kapcsolatokkal rendelkezik, így a város bármely pontja könnyen elérhető.
PARKOLÁS
Az utcában fizetős parkolási lehetőség áll rendelkezésre, de lakcím bejelentés egy autóra igényelhető kerületi éves parkolás "utcai bérlet".
TÖMEGKÖZLEKEDÉS
4-6 Villamossal könnyedén bárhova eljuthat a körúton.
M3 metró, az Arany János utcai megálló van a legközelebb a lakáshoz.
70-es trolibusz
MOL BUBI
A Legközelebbi kerékpárgyűjtő állomás a Teréz körút/Szondi út találkozásánál van.
Ez az ingatlan nemcsak egy otthon, hanem valódi életérzés – Budapest pezsgő központjában, mégis nyugodt környezetben élhet.
Jöjjön el, bizonyosodjon meg saját szemével erről a lenyűgöző lakásról. Várom megtisztelő hívását!
Registration Number
H491637
Property Details
Sales
for sale
Legal Status
used
Character
apartment
Construction Method
brick
Net Size
83 m²
Gross Size
86 m²
Heating
gas
Ceiling Height
330 cm
Number of Levels Within the Property
1
Orientation
East
Staircase Type
suspended corridor
Condition
Excellent
Condition of Facade
Excellent
Condition of Staircase
Excellent
Basement
Shared
Neighborhood
good transport, central
Year of Construction
1920
Number of Bathrooms
2
Position
street-facing
Common Costs
22000
Water
Available
Gas
Available
Electricity
Available
Sewer
Available
Elevator
available
Rooms
entryway
8 m²
room
6 m²
room
11 m²
toilet
2 m²
bathroom
5 m²
utility room
3 m²
open-plan kitchen and living room
24 m²
room
15 m²
room
12 m²
Tóth Róbert
Credit Expert