570 000 000 Ft
1 459 000 €
- 215m²
- 5 szoba
Premium new-build home in Remetekertváros
Newly built family house with private pool in a landscaped setting
WELCOME HOME!
Clean, contemporary architecture, true green surroundings and high technical standards – an independent family home that forms a carefully designed harmony with its garden.
THE PROPERTY AND ITS SURROUNDINGS
Three separate houses on a large plot (each with its own lot number), in a tastefully landscaped environment:
- carefully planned planting
- lawn areas
- garden with automatic irrigation system
- 6×3 m private pool – home wellness directly off the living room terrace
Only one house remains for sale.
KEY DATA
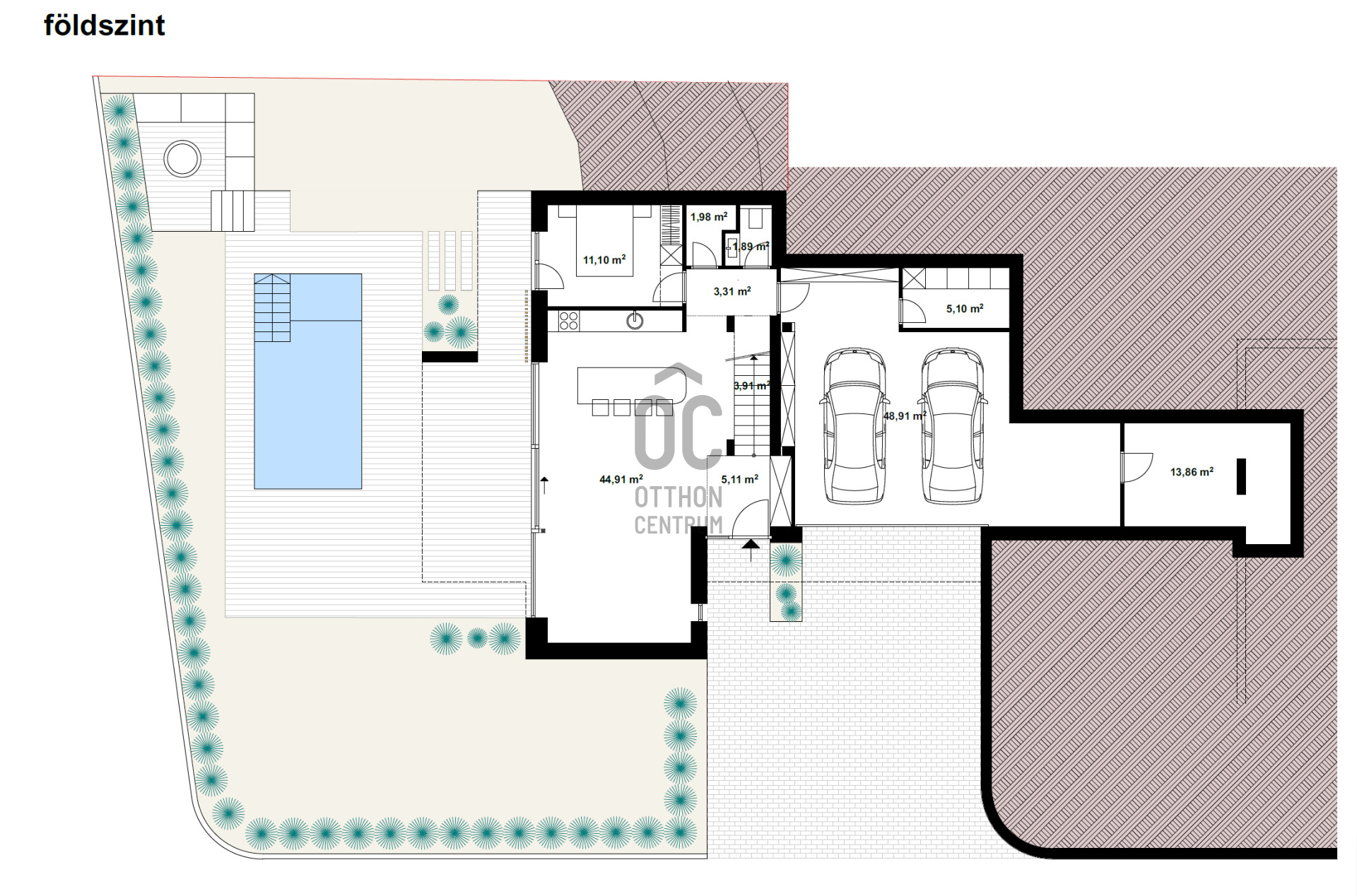
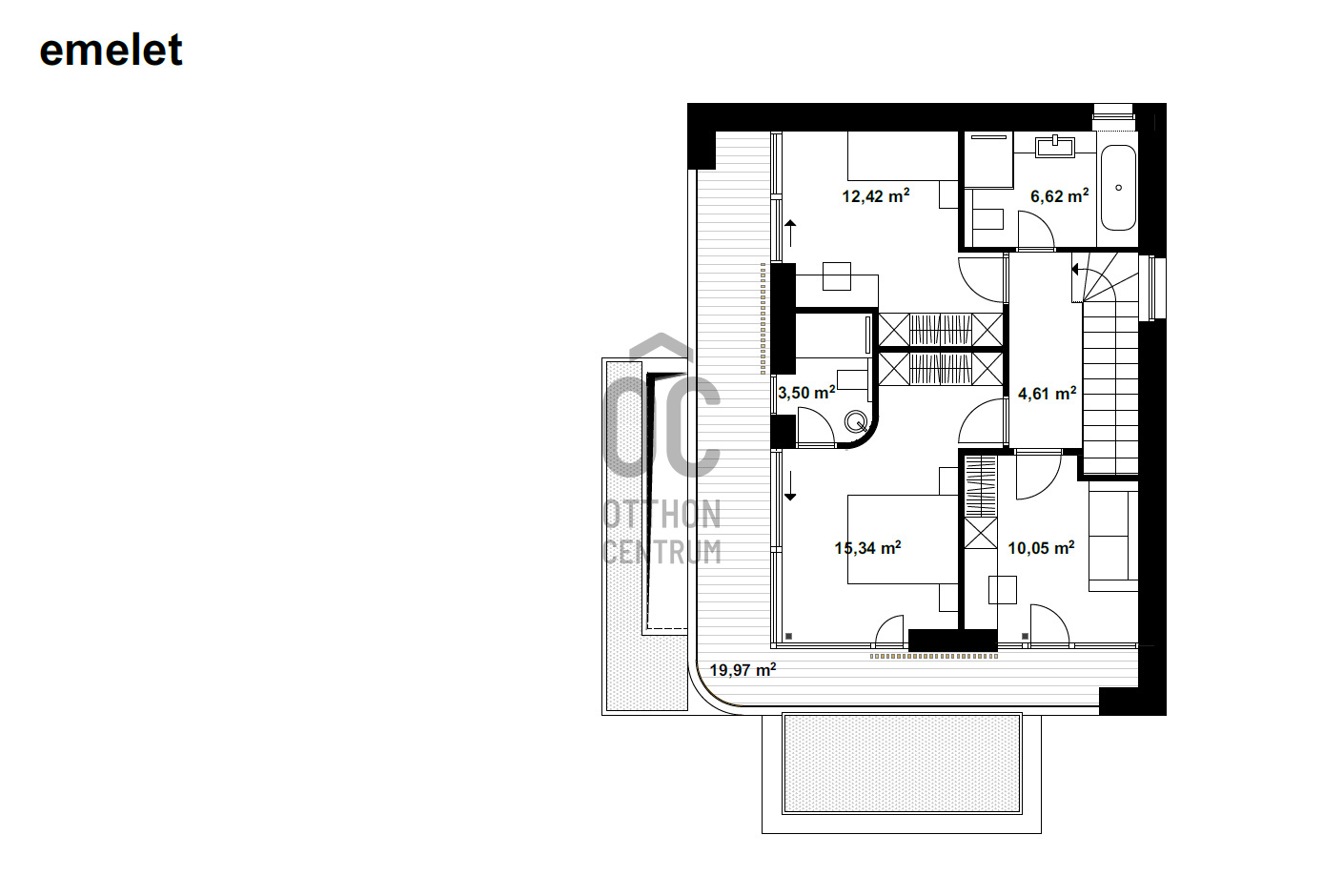
- Net usable floor area: 193 m²
- Terrace: 44 m²
- Separate pool: 18 m²
- Gross floor area: 215 m²
- Private garden with exclusive use: 520 m²
Functional layout:
- Living room + 4 bedrooms
- 2 bathrooms
- 1 separate WC
- Storage
- Heated garage for 3 cars
- Utility / laundry room
- Technical / plant room
TECHNICAL SPECIFICATION – HEAT PUMP, COMFORT, ENERGY EFFICIENCY
- Individual heat pump system
- Ceiling cooling and heating, individually controllable in each room
- Underfloor heating for even, comfortable temperatures
- 30 cm Porotherm X‑Therm “smart brick” external walls
- 20 cm Dryvit external thermal insulation – modern, energy-efficient building envelope
TURNKEY DELIVERY – PREMIUM DETAILS INCLUDED
The house is completed; the price includes:
- Cohesive interior design concept by an interior designer
- Custom-made interior doors by carpenter
- Built‑in bathroom cabinets
- Premium TRES taps and fittings
- Fully fitted NOBILIA kitchen with appliances
- Outside: landscaping, irrigation system, private pool
WHO IS THIS HOME IDEAL FOR?
For someone who:
- is looking not just for a new house, but for a complete living environment,
- values high technical quality and lower running costs,
- considers a private garden and own pool essential,
- thinks long term and wants a stable, premium, value‑retaining home.
For you, buying such a property is not an everyday event – for me, every day is about this.
If you would like to go through the technical details and possible customisation options, feel free to contact me – let’s see together what this home can offer you.
Budapest, Buda, District II, Remetekertváros, house for sale, new build, 5 rooms, living room + 4 bedrooms, 2 bathrooms, guest WC, 3‑car garage, large terrace, pool
WELCOME HOME!
Clean, contemporary architecture, true green surroundings and high technical standards – an independent family home that forms a carefully designed harmony with its garden.
THE PROPERTY AND ITS SURROUNDINGS
Three separate houses on a large plot (each with its own lot number), in a tastefully landscaped environment:
- carefully planned planting
- lawn areas
- garden with automatic irrigation system
- 6×3 m private pool – home wellness directly off the living room terrace
Only one house remains for sale.
KEY DATA
- Net usable floor area: 193 m²
- Terrace: 44 m²
- Separate pool: 18 m²
- Gross floor area: 215 m²
- Private garden with exclusive use: 520 m²
Functional layout:
- Living room + 4 bedrooms
- 2 bathrooms
- 1 separate WC
- Storage
- Heated garage for 3 cars
- Utility / laundry room
- Technical / plant room
TECHNICAL SPECIFICATION – HEAT PUMP, COMFORT, ENERGY EFFICIENCY
- Individual heat pump system
- Ceiling cooling and heating, individually controllable in each room
- Underfloor heating for even, comfortable temperatures
- 30 cm Porotherm X‑Therm “smart brick” external walls
- 20 cm Dryvit external thermal insulation – modern, energy-efficient building envelope
TURNKEY DELIVERY – PREMIUM DETAILS INCLUDED
The house is completed; the price includes:
- Cohesive interior design concept by an interior designer
- Custom-made interior doors by carpenter
- Built‑in bathroom cabinets
- Premium TRES taps and fittings
- Fully fitted NOBILIA kitchen with appliances
- Outside: landscaping, irrigation system, private pool
WHO IS THIS HOME IDEAL FOR?
For someone who:
- is looking not just for a new house, but for a complete living environment,
- values high technical quality and lower running costs,
- considers a private garden and own pool essential,
- thinks long term and wants a stable, premium, value‑retaining home.
For you, buying such a property is not an everyday event – for me, every day is about this.
If you would like to go through the technical details and possible customisation options, feel free to contact me – let’s see together what this home can offer you.
Budapest, Buda, District II, Remetekertváros, house for sale, new build, 5 rooms, living room + 4 bedrooms, 2 bathrooms, guest WC, 3‑car garage, large terrace, pool
Regisztrációs szám
U0049515
Az ingatlan adatai
Értékesités
eladó
Jogi státusz
új
Jelleg
ház
Építési mód
tégla
Méret
215 m²
Bruttó méret
215 m²
Telek méret
520 m²
Terasz / erkély mérete
45 m²
Fűtés
hőszivattyú
Belmagasság
280 cm
Lakáson belüli szintszám
1
Tájolás
Nyugat
Panoráma
városi panoráma, Zöldre néző panoráma
Állapot
Kiváló
Homlokzat állapota
Kiváló
Környék
csendes, zöld
Építés éve
2025
Fürdőszobák száma
2
Garázs
Benne van az árban
Garázs férőhely
3
Víz
Van
Gáz
Utcán
Villany
Van
Csatorna
Van
Helyiségek
nappali-konyha
44.9 m²
hálószoba
11.1 m²
kamra
2 m²
wc-kézmosó
1.9 m²
hálószoba
15.3 m²
hálószoba
12.4 m²
hálószoba
10.1 m²
fürdőszoba-wc
6.6 m²
fürdőszoba-wc
3.5 m²
Tóth Róbert
Hitelszakértő