data_sheet.details.realestate.section.main.otthonstart_flag.label
For sale family house,
H472577
Siófok, Kiliti
143,000,000 Ft
367,000 €
- 270m²
- 6 Rooms














































A tágas terek kedvelőinek- különleges ajánlat
Az Otthon Centrum új megbízása alapján eladásra kínál Siófok kertvárosi részén egy egyedi stílusú két szintes 6 szobás családi házat .
Az ingatlan nettó 270 nm, melyhez 807 nm telek tartozik.
A családi ház elosztása alkalmassá teszi az ingatlant nagy családosok kényelmes életterének kialakítására, vagy panzióként való üzemeltetésére.
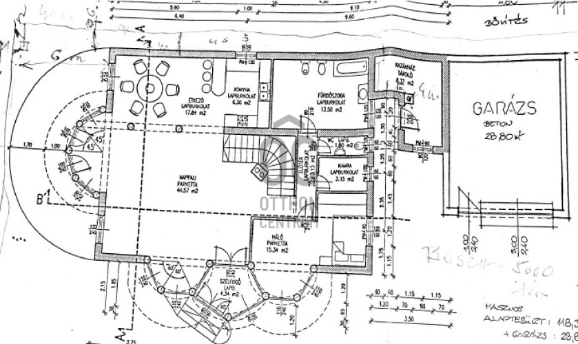
Az ingatlan beosztása:
Földszint:
- 45 nm es, tágas nappali, melyhez 22 nm étkező- konyha tartozik, vendégszoba, sarokkádas fürdőszoba, WC, kamra, mosókonyha, terasz, garázs
Emelet:
- 4 tágas egyedi hangulatú hálószoba teraszkapcsolattal, zuhanyzós fürdőszoba, WC kapott helyet.
Az ingatlan jellemzői:
- tágas, napfényes, terek
- gázcirkó fűtés
- jó minőségű fa nyílászárók
- riasztó
- klíma
- egyedi, igényes berendezés, minden szoba más hangulattal
- gépesített konyha
- gépesített mosókonyha
Az ingatlanhoz tartozik egy nagyméretű 28 nm es garázs, a kertben további autók parkolására a lehetőség adott.
A Balatonpart 10 perces autóúttal megközelíthető, bevásárlási lehetőségek Tesco, bevásárló centrum 4 perces autóúttal elérhetőek.
A vételár a bútorzatot tartalmazza.
Jöjjön el, szeressen bele, és tegyen ajánlatot még ma!
Az ingatlan a hét bármely napján megtekinthető.
Az ingatlan nettó 270 nm, melyhez 807 nm telek tartozik.
A családi ház elosztása alkalmassá teszi az ingatlant nagy családosok kényelmes életterének kialakítására, vagy panzióként való üzemeltetésére.
Az ingatlan beosztása:
Földszint:
- 45 nm es, tágas nappali, melyhez 22 nm étkező- konyha tartozik, vendégszoba, sarokkádas fürdőszoba, WC, kamra, mosókonyha, terasz, garázs
Emelet:
- 4 tágas egyedi hangulatú hálószoba teraszkapcsolattal, zuhanyzós fürdőszoba, WC kapott helyet.
Az ingatlan jellemzői:
- tágas, napfényes, terek
- gázcirkó fűtés
- jó minőségű fa nyílászárók
- riasztó
- klíma
- egyedi, igényes berendezés, minden szoba más hangulattal
- gépesített konyha
- gépesített mosókonyha
Az ingatlanhoz tartozik egy nagyméretű 28 nm es garázs, a kertben további autók parkolására a lehetőség adott.
A Balatonpart 10 perces autóúttal megközelíthető, bevásárlási lehetőségek Tesco, bevásárló centrum 4 perces autóúttal elérhetőek.
A vételár a bútorzatot tartalmazza.
Jöjjön el, szeressen bele, és tegyen ajánlatot még ma!
Az ingatlan a hét bármely napján megtekinthető.
Registration Number
H472577
Property Details
Sales
for sale
Legal Status
used
Character
house
Construction Method
brick
Net Size
270 m²
Gross Size
294 m²
Plot Size
807 m²
Heating
Gas circulator
Ceiling Height
270 cm
Number of Levels Within the Property
1
Orientation
South-West
Condition
Good
Condition of Facade
Good
Neighborhood
quiet, good transport, green
Year of Construction
2002
Number of Bathrooms
2
Garage
Included in the price
Water
Available
Gas
Available
Electricity
Available
Sewer
Available
Storage
Independent
Rooms
entryway
4 m²
living room
45 m²
open-plan kitchen and dining room
22 m²
bedroom
15 m²
bedroom
21 m²
bedroom
24 m²
bedroom
25 m²
bedroom
18 m²
bathroom
13 m²
bathroom
5 m²
laundry room
12 m²
garage
29 m²