9 LAKÁSOS TÁRSASHÁZI HÁZ ÉPÜL PILISVÖRÖSVÁR SZÍVÉBEN 2024-BEN
Pilisvörösvár szívében társasházi lakás leköthető. 2024 negyedik negyedév végi átadással.
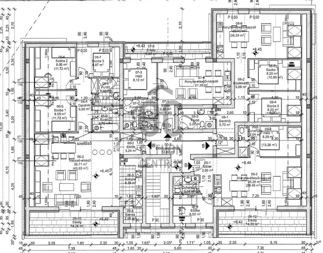
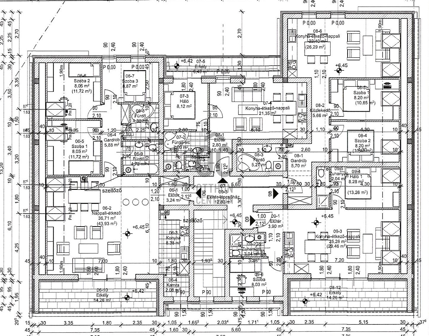
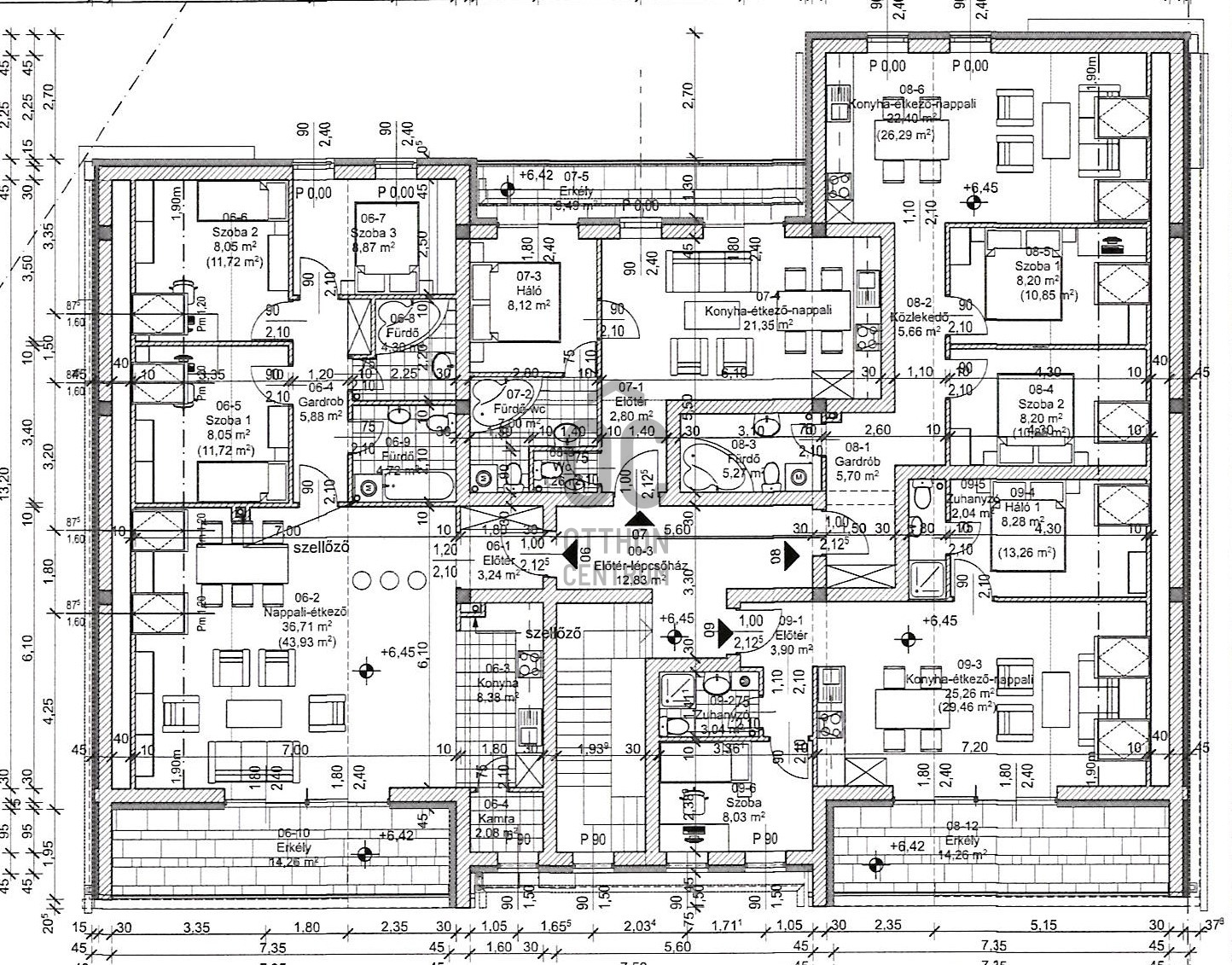
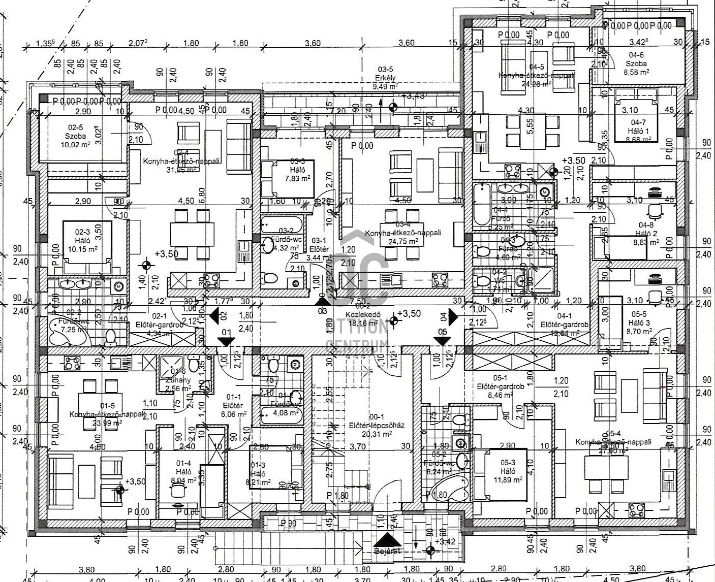
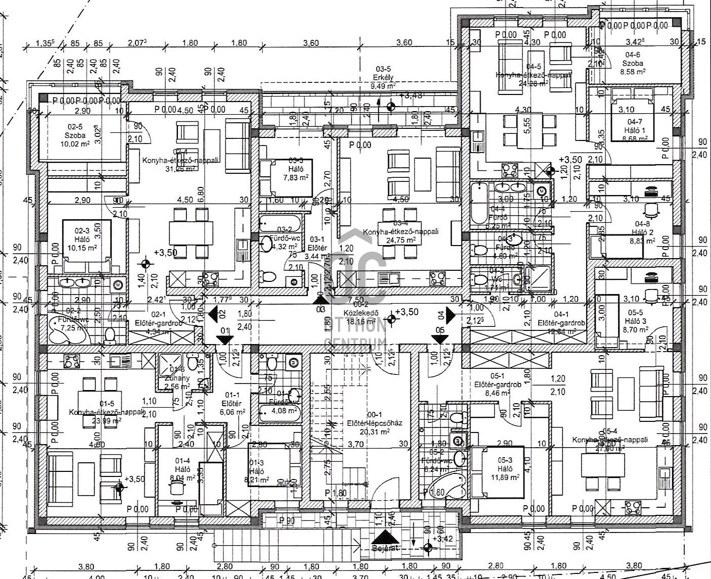
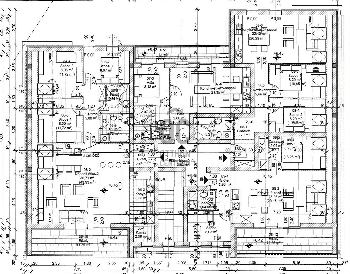
Pilisvörösvár Attila utcában kerül megépítésre ez a modern gondolatokkal teli, 9 lakásos, háromszintes társasház.
Az utca fronti szinten üzlethelyiség
első emeleten 5 db lakás került kialakításra,
a tetőtéri szinten 4 lakás
zárt lépcsőház
A lakások jól átgondolt elrendezésű tervek alapján magas minőségben kerülnek megépítésre.
A lakások méretei különbözőek. (38- 71-75 nm közötti )
Néhány tetőtéri lakáshoz erkély is lett tervezve.
Világos, lakások.
hőszivattyús fűtés, padlófűtéssel.
Korszerű, műanyag ablakok
14 cm szigetelés.
Minden lakáshoz egy autóbeálló tartozik telken belül.
Átadás: 2024. negyedik negyedév
Megközelítése tömeg közlekedéssel, autóval is kiváló. ( vasútállomás, busz megálló 2 perc sétával)
Iskola, óvoda, bevásárlási lehetőség, egészség központ 100-400 méteres távolságban elérhető.
Ajánlom befektetőknek és olyan lakás keresőknek, akiknek fontos, hogy a lakás központi helyen legyen.
Pilisvörösvár szívében társasházi lakás leköthető. 2024 negyedik negyedév végi átadással.
Pilisvörösvár Attila utcában kerül megépítésre ez a modern gondolatokkal teli, 9 lakásos, háromszintes társasház.
Az utca fronti szinten üzlethelyiség
első emeleten 5 db lakás került kialakításra,
a tetőtéri szinten 4 lakás
zárt lépcsőház
A lakások jól átgondolt elrendezésű tervek alapján magas minőségben kerülnek megépítésre.
A lakások méretei különbözőek. (38- 71-75 nm közötti )
Néhány tetőtéri lakáshoz erkély is lett tervezve.
Világos, lakások.
hőszivattyús fűtés, padlófűtéssel.
Korszerű, műanyag ablakok
14 cm szigetelés.
Minden lakáshoz egy autóbeálló tartozik telken belül.
Átadás: 2024. negyedik negyedév
Megközelítése tömeg közlekedéssel, autóval is kiváló. ( vasútállomás, busz megálló 2 perc sétával)
Iskola, óvoda, bevásárlási lehetőség, egészség központ 100-400 méteres távolságban elérhető.
Ajánlom befektetőknek és olyan lakás keresőknek, akiknek fontos, hogy a lakás központi helyen legyen.