2 192 138 Ft
5 633 €
- 633m²
- 2. emelet
XIV. KER., „B” KATEGÓRIÁS IRODAHÁZBAN 633 m2 BÉRBEADÓ IRODATERÜLET TEREMGARÁZS HELYEKKEL, 24 ÓRÁS RECEPCIÓVAL, SAJÁT ÉTTEREMMEL
XIV. KER., „B” KATEGÓRIÁS IRODAHÁZBAN 633 m2 BÉRBEADÓ IRODATERÜLET TEREMGARÁZS HELYEKKEL, 24 ÓRÁS RECEPCIÓVAL, SAJÁT ÉTTEREMMEL
XIV. Ker. LEGFORGALMASABB CSOMÓPONTJÁBAN, A HUNGÁRIA KÖRÚT ÉS A THÖKÖLY ÚT KERESZTEZŐDÉSÉNEK KÖZVETLEN VONZÁSKÖRZETÉBEN, egy 5 szintes „B” kategóriás irodaházban kínálunk bérbeadásra 633 m2 irodaterületet 24 ÓRÁS RECEPCIÓSZOLGÁLATTAL, és bérelhető TEREMGARÁZS HELYEKKEL (+100 Eur/db+áfa).
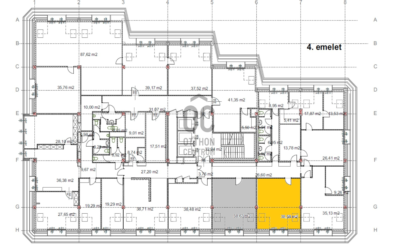
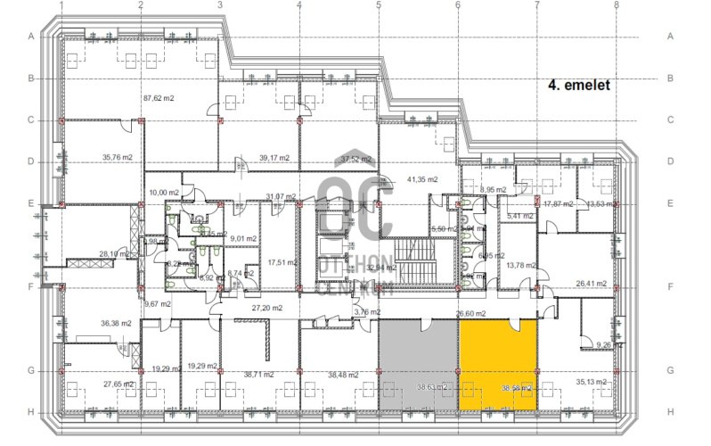
A bérbeadó irodaterület legnagyobb 595 m2-es része a 2., a kisebb 38,5 m2 területe, pedig az irodaépület 4. emeletén helyezkedik el. Az épület összes szintjét -a teremgarázst is beleértve- 3db LIFT köti össze egymással.
Az ingatlan a modern irodák követelményeinek maximálisan megfelel: SAJÁT ÉTTEREM többféle napi menüvel, ZUHANYZÁSRA is ALKALMAS VIZESBLOKKOK, 24 ÓRÁS RECEPCIÓ SZOLGÁLAT, 4 CSÖVES FAN-COIL FŰTÉS-HŰTÉS RENDSZER, KLÍMA, 3 db LIFT (teremgarázstól a legfelső emeletig), VIDEOKAMERÁS RENDSZER, TŰZ és BIZTONSÁGI RIASZTÓRENDSZER, vezetékes telefon és internetkapcsolat az irodákban, SZERVER SZOBA. Az épületen belül, az ÖSSZES FAL KÖNNYEN BONTHATÓ VÁLASZFAL, ennek mentén a LEENDŐ BÉRLŐ könnyedén a SAJÁT ELVÁRÁSAINAK MEGFELELŐEN ALAKÍTHATJA a TEREKET.
A TEREMGARÁZSHELYEKEN KÍVŰL az épület udvarában FELSZÍNI AUTÓBEÁLLÓK is rendelkezésre állnak (55 Eur/db+áfa).
Jelenleg az egész épület -a kínált 633 m2-en kívűl- bérbe van adva. Nyílászárók típusa: FÉM (dupla hőszigetelt), Belmagasság: 2,7 m. Közlekedés: ZUGLÓ VASÚTÁLLOMÁS, 1, 1A VILLAMOSOK és SZÁMOS BUSZ GYALOGOSAN 3 PERC ALATT ELÉRHETŐEK!
Az alap bérleti díj 8,9 Eur/hó/m2+Áfa, az üzemeltetési előleg 2850 Huf/m2 amiben a közmű előleg is benne van a saját áramfogyasztás kivételével, ami 150 Huf/m2/hó+Áfa átalánydíjat jelent. Teremgarázs hely (+100 Eur+áfa/db), tároló (+9 Eur/m2+áfa), közös területi szorzó7%.
TISZTELT ÉRDEKLŐDŐ!
TÖBB MINT 20 ÉVE FOGLALKOZOM INGATLANOK ÉRTÉKESÍTÉSÉVEL MAGYARORSZÁG PIACVEZETŐ INGATLANKÖZVETÍTŐ HÁLÓZATÁNÁL, AZ OTTHON CENTRUMNÁL. AMENNYIBEN SZÁNDÉKÁBAN ÁLL INGATLANT ELADNI - A LEGRÖVIDEBB IDŐN BELÜL, GARANTÁLT JOGI, ÉS BANKI HÁTTÉRREL - KERESSEN BIZALOMMAL, HOGY EGY HELYSZÍNI FELMÉRÉST KÖVETŐ INGYENES ÉRTÉKMEGÁLLAPÍTÁS UTÁN, EGYÜTT TUDJUNK MŰKÖDNI AZ ÖN INGATLANÁNAK AZ ELADÁSÁBAN IS!
XIV. Ker. LEGFORGALMASABB CSOMÓPONTJÁBAN, A HUNGÁRIA KÖRÚT ÉS A THÖKÖLY ÚT KERESZTEZŐDÉSÉNEK KÖZVETLEN VONZÁSKÖRZETÉBEN, egy 5 szintes „B” kategóriás irodaházban kínálunk bérbeadásra 633 m2 irodaterületet 24 ÓRÁS RECEPCIÓSZOLGÁLATTAL, és bérelhető TEREMGARÁZS HELYEKKEL (+100 Eur/db+áfa).
A bérbeadó irodaterület legnagyobb 595 m2-es része a 2., a kisebb 38,5 m2 területe, pedig az irodaépület 4. emeletén helyezkedik el. Az épület összes szintjét -a teremgarázst is beleértve- 3db LIFT köti össze egymással.
Az ingatlan a modern irodák követelményeinek maximálisan megfelel: SAJÁT ÉTTEREM többféle napi menüvel, ZUHANYZÁSRA is ALKALMAS VIZESBLOKKOK, 24 ÓRÁS RECEPCIÓ SZOLGÁLAT, 4 CSÖVES FAN-COIL FŰTÉS-HŰTÉS RENDSZER, KLÍMA, 3 db LIFT (teremgarázstól a legfelső emeletig), VIDEOKAMERÁS RENDSZER, TŰZ és BIZTONSÁGI RIASZTÓRENDSZER, vezetékes telefon és internetkapcsolat az irodákban, SZERVER SZOBA. Az épületen belül, az ÖSSZES FAL KÖNNYEN BONTHATÓ VÁLASZFAL, ennek mentén a LEENDŐ BÉRLŐ könnyedén a SAJÁT ELVÁRÁSAINAK MEGFELELŐEN ALAKÍTHATJA a TEREKET.
A TEREMGARÁZSHELYEKEN KÍVŰL az épület udvarában FELSZÍNI AUTÓBEÁLLÓK is rendelkezésre állnak (55 Eur/db+áfa).
Jelenleg az egész épület -a kínált 633 m2-en kívűl- bérbe van adva. Nyílászárók típusa: FÉM (dupla hőszigetelt), Belmagasság: 2,7 m. Közlekedés: ZUGLÓ VASÚTÁLLOMÁS, 1, 1A VILLAMOSOK és SZÁMOS BUSZ GYALOGOSAN 3 PERC ALATT ELÉRHETŐEK!
Az alap bérleti díj 8,9 Eur/hó/m2+Áfa, az üzemeltetési előleg 2850 Huf/m2 amiben a közmű előleg is benne van a saját áramfogyasztás kivételével, ami 150 Huf/m2/hó+Áfa átalánydíjat jelent. Teremgarázs hely (+100 Eur+áfa/db), tároló (+9 Eur/m2+áfa), közös területi szorzó7%.
TISZTELT ÉRDEKLŐDŐ!
TÖBB MINT 20 ÉVE FOGLALKOZOM INGATLANOK ÉRTÉKESÍTÉSÉVEL MAGYARORSZÁG PIACVEZETŐ INGATLANKÖZVETÍTŐ HÁLÓZATÁNÁL, AZ OTTHON CENTRUMNÁL. AMENNYIBEN SZÁNDÉKÁBAN ÁLL INGATLANT ELADNI - A LEGRÖVIDEBB IDŐN BELÜL, GARANTÁLT JOGI, ÉS BANKI HÁTTÉRREL - KERESSEN BIZALOMMAL, HOGY EGY HELYSZÍNI FELMÉRÉST KÖVETŐ INGYENES ÉRTÉKMEGÁLLAPÍTÁS UTÁN, EGYÜTT TUDJUNK MŰKÖDNI AZ ÖN INGATLANÁNAK AZ ELADÁSÁBAN IS!
Regisztrációs szám
UZ019660
Az ingatlan adatai
Értékesités
kiadó
Jogi státusz
használt
Jelleg
üzleti célú
Típus
épületrész
Építési mód
tégla
Méret
633 m²
Föld feletti nettó méret
633 m²
Fűtés
gáz
Belmagasság
270 cm
Állapot
Jó
Homlokzat állapota
Jó
Lépcsőház állapota
Jó
Építés éve
2001
Víz
Van
Gáz
Van
Villany
Van
Csatorna
Van
Lift
van
Lehetséges funkciók
iroda, iroda és bemutatóterem, vagy üzlet, iroda és raktár, bemutatóterem, bemutatóterem és szervíz, vagy raktár, logisztikai központ
Láthatóság
Forgalmas főútról jól látható
Megközelíthetőseg
Nagy gyalogosforgalmú utcára nyíló bejárat
Hasznosítás
üres
Ruczek János
Hitelszakértő