289 000 000 Ft
737 000 €
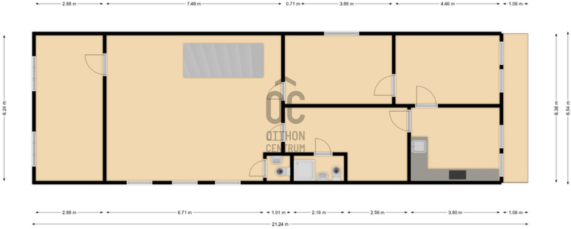
- 460m²
ÜZLETI LEHETŐSÉG A VILLAMOSMEGÁLLÓBAN!
EGYEDÜLÁLLÓ LEHETŐSÉG BEFEKTETŐK SZÁMÁRA!
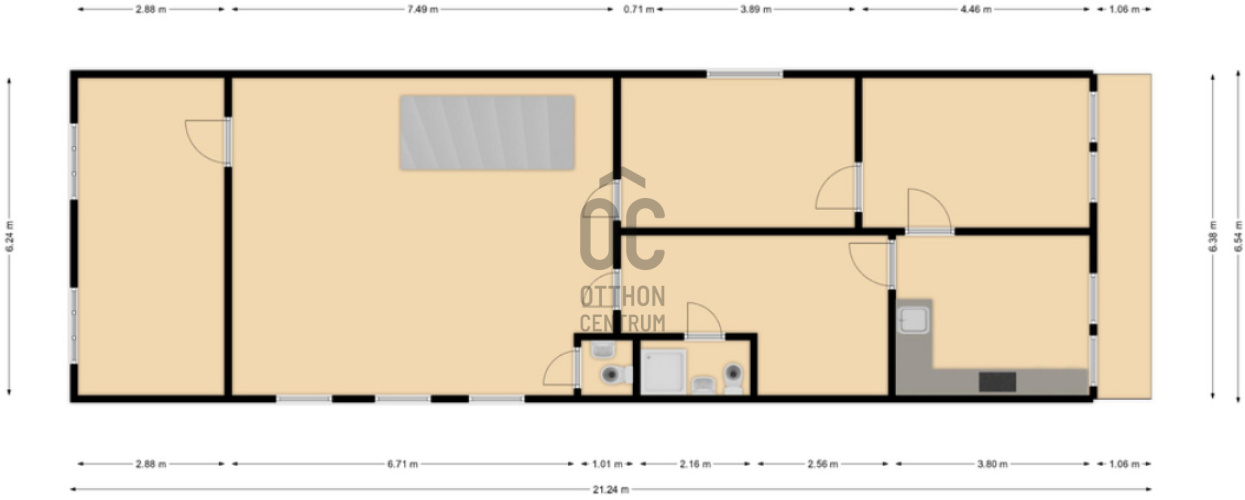
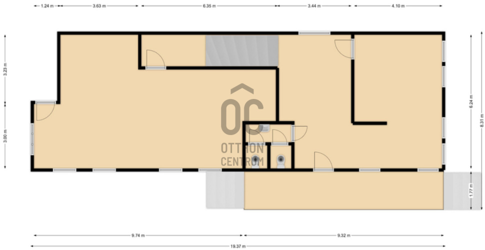
Budapest 15. kerületében, Rákospalotán kínálunk eladásra egy 400 nm alapterületű, üzleti célú ingatlant, amely ideális választás lehet IRODÁNAK, BEMUTATÓTEREMNEK vagy ÜZLETHELYISÉGNEK.
A 3 SZINT ÉS SZUTERÉN kimondottan alkalmas és jogilag is megfelelő 8 LAKÁSOS TÁRSASHÁZ KIALAKÍTÁSÁRA.
Az ingatlan egy 1500 NM-ES TELKEN helyezkedik el, amely bővítési lehetőségeket kínál, így a jövőbeni fejlesztési tervek megvalósítására is alkalmas.
Az ingatlan jelenlegi ÁLLAPOTA JÓ.
Fűtése gáz cirkó rendszerrel megoldott, amely biztosítja a kényelmes és gazdaságos fűtést a hidegebb hónapokban is.
Az épülethez tartozik egy 16 nm-es terasz és egy 7 nm-es erkély, amelyek lehetőséget adnak a szabadban való pihenésre vagy a vendégek fogadására.
A panoráma, amely az ingatlanból nyílik, kellemes és inspiráló környezetet teremt a munkavégzéshez, ugyanis egyik ablakból sem látni be az ingatlanba, TELJESEN PRIVÁT ÉRZÉS.
A környék ELLÁTOTTSÁGA KIVÁLÓ, a Pólus Centertől néhány percre van, így a mindennapi élet kényelmesen megoldható.
Az ingatlan KÖZLEKEDÉSI CSOMÓPONT KÖZELÉBEN helyezkedik el, ami kitűnő közlekedést biztosít a város különböző részeire az itt dolgozóknak, vagy ha átalakítjuk társasházzá, akkor a lakások értékesítése esetén is komoly érv.
Rákospalota CSENDES, BIZTONSÁGOS környezete ideális választás lehet azok számára, akik egy NYUGODT, de mégis jól elérhető helyszínen szeretnék elhelyezni üzleti tevékenységüket.
A környék folyamatosan fejlődik, ami további lehetőségeket kínál a befektetők számára, hiszen a jövőbeni értéknövekedés szempontjából kedvező adottságokkal rendelkezik.
Az ingatlan befektetési lehetőségei széles spektrumot ölelnek fel, így akár új funkciók kialakítására is van lehetőség.
Az ingatlan adottságai és lokációja miatt ideális választás lehet a jövőbeli üzleti tervei megvalósításához.
Amennyiben további kérdései lennének, vagy szeretné személyesen is megtekinteni az ingatlant, hívjon bizalommal!
Budapest 15. kerületében, Rákospalotán kínálunk eladásra egy 400 nm alapterületű, üzleti célú ingatlant, amely ideális választás lehet IRODÁNAK, BEMUTATÓTEREMNEK vagy ÜZLETHELYISÉGNEK.
A 3 SZINT ÉS SZUTERÉN kimondottan alkalmas és jogilag is megfelelő 8 LAKÁSOS TÁRSASHÁZ KIALAKÍTÁSÁRA.
Az ingatlan egy 1500 NM-ES TELKEN helyezkedik el, amely bővítési lehetőségeket kínál, így a jövőbeni fejlesztési tervek megvalósítására is alkalmas.
Az ingatlan jelenlegi ÁLLAPOTA JÓ.
Fűtése gáz cirkó rendszerrel megoldott, amely biztosítja a kényelmes és gazdaságos fűtést a hidegebb hónapokban is.
Az épülethez tartozik egy 16 nm-es terasz és egy 7 nm-es erkély, amelyek lehetőséget adnak a szabadban való pihenésre vagy a vendégek fogadására.
A panoráma, amely az ingatlanból nyílik, kellemes és inspiráló környezetet teremt a munkavégzéshez, ugyanis egyik ablakból sem látni be az ingatlanba, TELJESEN PRIVÁT ÉRZÉS.
A környék ELLÁTOTTSÁGA KIVÁLÓ, a Pólus Centertől néhány percre van, így a mindennapi élet kényelmesen megoldható.
Az ingatlan KÖZLEKEDÉSI CSOMÓPONT KÖZELÉBEN helyezkedik el, ami kitűnő közlekedést biztosít a város különböző részeire az itt dolgozóknak, vagy ha átalakítjuk társasházzá, akkor a lakások értékesítése esetén is komoly érv.
Rákospalota CSENDES, BIZTONSÁGOS környezete ideális választás lehet azok számára, akik egy NYUGODT, de mégis jól elérhető helyszínen szeretnék elhelyezni üzleti tevékenységüket.
A környék folyamatosan fejlődik, ami további lehetőségeket kínál a befektetők számára, hiszen a jövőbeni értéknövekedés szempontjából kedvező adottságokkal rendelkezik.
Az ingatlan befektetési lehetőségei széles spektrumot ölelnek fel, így akár új funkciók kialakítására is van lehetőség.
Az ingatlan adottságai és lokációja miatt ideális választás lehet a jövőbeli üzleti tervei megvalósításához.
Amennyiben további kérdései lennének, vagy szeretné személyesen is megtekinteni az ingatlant, hívjon bizalommal!
Regisztrációs szám
UZ019499
Az ingatlan adatai
Értékesités
eladó
Jogi státusz
használt
Jelleg
üzleti célú
Típus
teljes épület
Építési mód
tégla
Méret
460 m²
Telek méret
1 500 m²
Terasz / erkély mérete
23 m²
Föld feletti nettó méret
468 m²
Kert méret
1 500 m²
Fűtés
Gáz cirkó
Belmagasság
263 cm
Lakáson belüli szintszám
4
Panoráma
városi panoráma
Állapot
Jó
Homlokzat állapota
Kiváló
Társaház kert
igen
Víz
Van
Gáz
Van
Villany
Van
Csatorna
Van
Lehetséges funkciók
kiskereskedelem, logisztikai központ, panzió, hostel, oktatási központ
Láthatóság
Forgalmas főútról jól látható
Megközelíthetőseg
Forgalmas főútról nyíló bejárat
Hasznosítás
üres
Czene Enikő Éva
Hitelszakértő