215 000 000 Ft
568 000 €
- 255m²
Debrecen Gáspár György kert: Tökéletes üzleti lehetőség vár Önre!
Debrecen egyik fejlődő ipari részén a Gáspár György kertben eladó 26710 nm-es iparivá minősíthető terület.
Jellemzők:
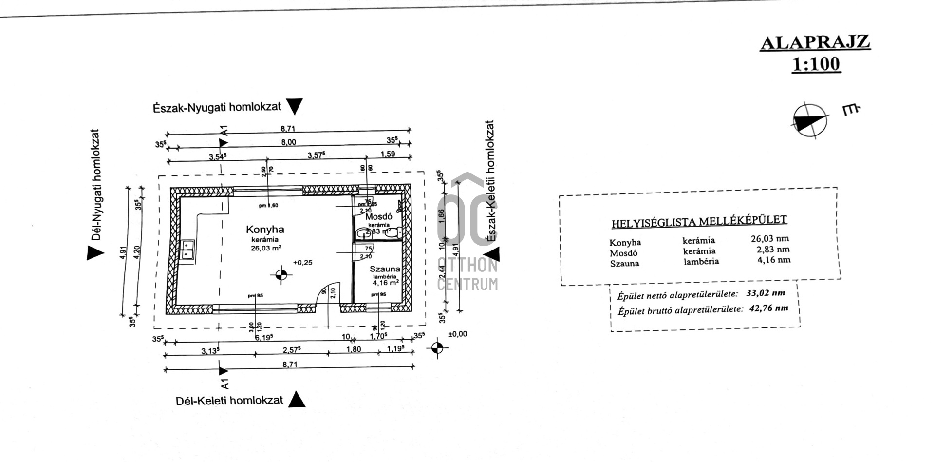
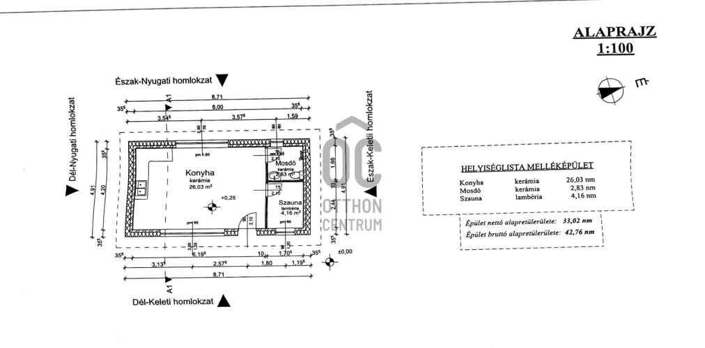
- 175 nm-es szerkezetkész csarnok,
- 35 nm-es iroda,
- 45 nm-es műhely/garázs,
- ipari áram 3X32A,
- vezetékes víz,
- fúrott kút,
- a telek előtt internet optikai kábel,
- 53 méteres utcafronttal.
Jelenleg egy félbe maradt építéssel együtt eladó, aminek már a befejezése az új tulajdonos feladata lesz.
Az ingatlanról teljes körű videó felvétel készült, a megtekintése érdekében weboldalunkon keresse a UZ019362 regisztrációs számon vagy keressen telefonon közvetlenül.
Kedves Üzleti Vállalkozók! Ha Önöknek is fontos, hogy cégük számára a legjobb helyszínt találják meg, akkor figyelmükbe ajánljuk ezt a fantasztikus ingatlant, amely ideális lehetőséget kínál üzleti célú hasznosításra. A környék kiváló adottságokkal rendelkezik, és a közlekedési lehetőségek is kiválóak.
Bármilyen kérdésre szívesen válaszolok, keressen nyugodtan!
Ez az ingatlan a “Felezőcsomag” megbízási portfólióhoz tartozik. A részletek az Otthon Centrum weboldalán olvashatja.
Jellemzők:
- 175 nm-es szerkezetkész csarnok,
- 35 nm-es iroda,
- 45 nm-es műhely/garázs,
- ipari áram 3X32A,
- vezetékes víz,
- fúrott kút,
- a telek előtt internet optikai kábel,
- 53 méteres utcafronttal.
Jelenleg egy félbe maradt építéssel együtt eladó, aminek már a befejezése az új tulajdonos feladata lesz.
Az ingatlanról teljes körű videó felvétel készült, a megtekintése érdekében weboldalunkon keresse a UZ019362 regisztrációs számon vagy keressen telefonon közvetlenül.
Kedves Üzleti Vállalkozók! Ha Önöknek is fontos, hogy cégük számára a legjobb helyszínt találják meg, akkor figyelmükbe ajánljuk ezt a fantasztikus ingatlant, amely ideális lehetőséget kínál üzleti célú hasznosításra. A környék kiváló adottságokkal rendelkezik, és a közlekedési lehetőségek is kiválóak.
Bármilyen kérdésre szívesen válaszolok, keressen nyugodtan!
Ez az ingatlan a “Felezőcsomag” megbízási portfólióhoz tartozik. A részletek az Otthon Centrum weboldalán olvashatja.
Regisztrációs szám
UZ019362
Az ingatlan adatai
Értékesités
eladó
Jogi státusz
használt
Jelleg
üzleti célú
Típus
teljes épület
Építési mód
egyéb
Méret
255 m²
Telek méret
26 710 m²
Föld feletti nettó méret
255 m²
Belmagasság
270 cm
Panoráma
Egyéb
Állapot
Kiváló
Homlokzat állapota
Kiváló
Építés éve
2025
Víz
Van
Gáz
Utcán
Villany
Van
Lehetséges funkciók
iroda, iroda és bemutatóterem, vagy üzlet, iroda és raktár, bemutatóterem és szervíz, vagy raktár, ipari csarnok vagy raktár, logisztikai központ
Láthatóság
Mellékutcában utcafronton lévő
Megközelíthetőseg
12 tonna feletti kamionnal behajtási engedély nélkül megközelíthető
Hasznosítás
üres
Czellér András
Hitelszakértő