475 000 000 Ft
1 238 000 €
- 380m²
Commercial property for sale in Budapest's 14th district – Szugló Street
We are offering for sale a property with excellent features, suitable for industrial and office use, located in the Alsórákos district of Budapest's 14th district, on Szugló Street.
Location, accessibility
The property is accessible via a paved road with excellent transport links:
-bus, tram, trolleybus nearby
-Bosnyák Square: 2 minutes on foot
-Zenit Corso: 5 minutes on foot
The neighborhood is mixed-use: office, industrial, commercial, and residential properties can all be found here, with several newly built condominiums in the immediate vicinity.
Szugló Street has moderate vehicle traffic and low pedestrian traffic, making it ideal for office or industrial activities.
Technical condition, renovations
The building is continuously maintained and in average to good technical condition:
-roof completely replaced approx. 5 years ago (shingle roof)
-basement and ground floor renovated
-washable wall paints
-partially new doors and windows
-cast resin flooring
-entire electrical network renovated
-all rooms air-conditioned with split air conditioning
-security system installed
Key data:
-Power: 3 x 40Ah
-Estimated year of construction: 1970s
-Plot: centrally located, all utilities
-Buildability: 30%
-Permitted building height: 10.5 m
-Minimum plot size: 800 m²
-Total net floor area: 397 m²
-Plot: flat, fenced, open to the street
-Utilities: water, gas, electricity, sewer
-Courtyard: parking for 13 cars
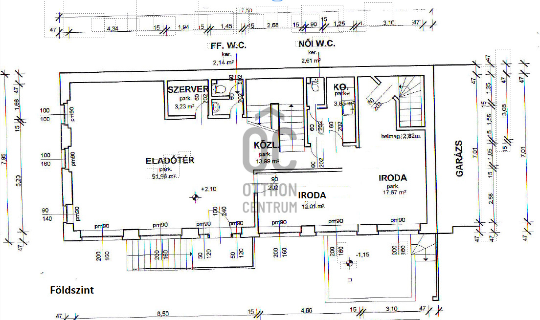
Function and layout
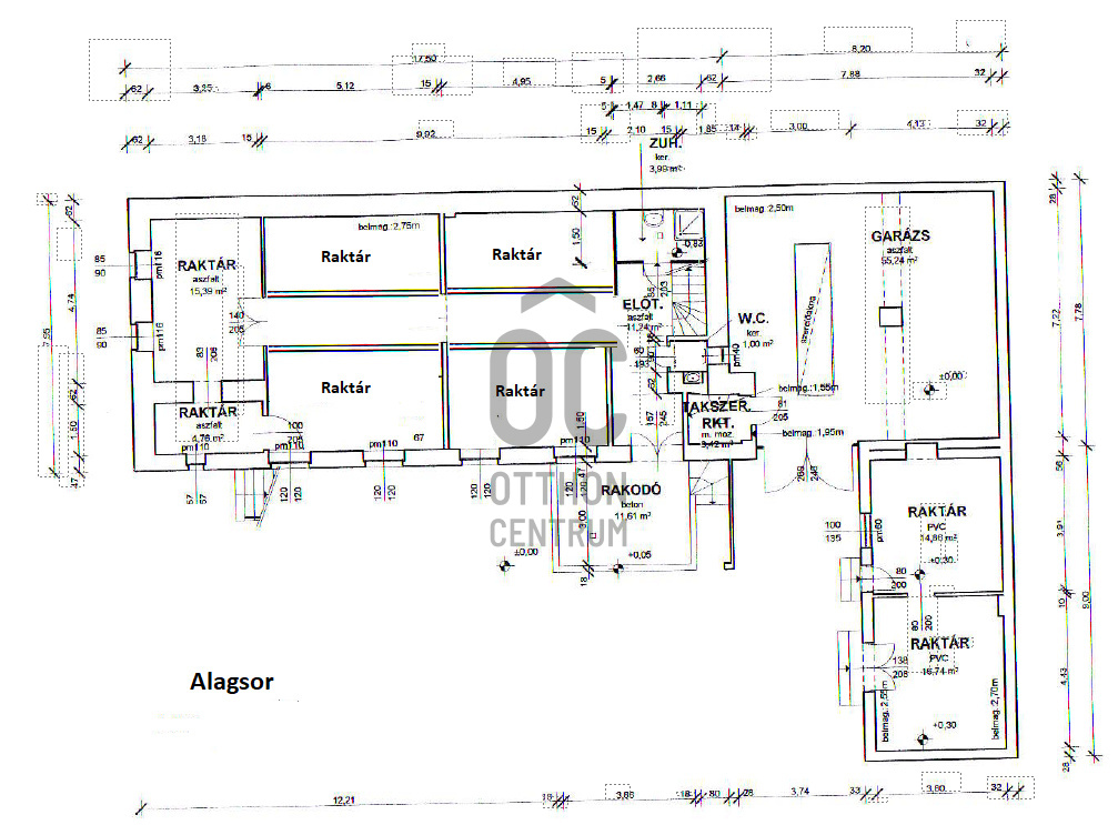
Basement:
-several separate rooms
-washroom
-full comfort, air conditioning
Ground floor:
-2 large rooms
-separate storage rooms
-washroom
First floor:
-2 offices
-dining room
-kitchen
-2 utility rooms
-gallery (suitable for storage)
Annex:
-large storage room
-2 separate rooms
-separate bathroom
-(currently used as a veterinary ultrasound clinic)
Utilization
The property currently functions as a veterinary laboratory, but is also ideal for:
-office center
-laboratory activities
-commercial or industrial purposes
-development site
If you are interested in the property, please call me any day of the week!
Location, accessibility
The property is accessible via a paved road with excellent transport links:
-bus, tram, trolleybus nearby
-Bosnyák Square: 2 minutes on foot
-Zenit Corso: 5 minutes on foot
The neighborhood is mixed-use: office, industrial, commercial, and residential properties can all be found here, with several newly built condominiums in the immediate vicinity.
Szugló Street has moderate vehicle traffic and low pedestrian traffic, making it ideal for office or industrial activities.
Technical condition, renovations
The building is continuously maintained and in average to good technical condition:
-roof completely replaced approx. 5 years ago (shingle roof)
-basement and ground floor renovated
-washable wall paints
-partially new doors and windows
-cast resin flooring
-entire electrical network renovated
-all rooms air-conditioned with split air conditioning
-security system installed
Key data:
-Power: 3 x 40Ah
-Estimated year of construction: 1970s
-Plot: centrally located, all utilities
-Buildability: 30%
-Permitted building height: 10.5 m
-Minimum plot size: 800 m²
-Total net floor area: 397 m²
-Plot: flat, fenced, open to the street
-Utilities: water, gas, electricity, sewer
-Courtyard: parking for 13 cars
Function and layout
Basement:
-several separate rooms
-washroom
-full comfort, air conditioning
Ground floor:
-2 large rooms
-separate storage rooms
-washroom
First floor:
-2 offices
-dining room
-kitchen
-2 utility rooms
-gallery (suitable for storage)
Annex:
-large storage room
-2 separate rooms
-separate bathroom
-(currently used as a veterinary ultrasound clinic)
Utilization
The property currently functions as a veterinary laboratory, but is also ideal for:
-office center
-laboratory activities
-commercial or industrial purposes
-development site
If you are interested in the property, please call me any day of the week!
Regisztrációs szám
UZ019344
Az ingatlan adatai
Értékesités
eladó
Jogi státusz
használt
Jelleg
üzleti célú
Típus
teljes épület
Építési mód
tégla
Méret
380 m²
Telek méret
633 m²
Terasz / erkély mérete
20 m²
Föld feletti nettó méret
400 m²
Fűtés
egyéb
Belmagasság
286 cm
Lakáson belüli szintszám
1
Panoráma
városi panoráma
Állapot
Átlagos
Homlokzat állapota
Átlagos
Víz
Van
Villany
Van
Csatorna
Van
Láthatóság
Forgalmas főútról jól látható
Megközelíthetőseg
Nagy gyalogosforgalmú utcára nyíló bejárat
Hasznosítás
tulajdosnos használja
Pados - Burján Renáta Zita
Hitelszakértő