590 000 000 Ft
1 518 000 €
- 636m²













Eladó Gödöllő Ipari Parkjában egy modern, sokoldalú 2019-ben épület élelmiszerüzem.
Gödöllő jelentős ipari parkkal rendelkezik. Az Ipari Parkban számos hazai és nemzetközi vállalat telepedett meg, amelyek az élelmiszeripar, a logisztika, a gyártás és a technológiai szektor területén működnek. A lokáció stratégiai előnye, hogy a Liszt Ferenc repülőtér rövid időn belül elérhető, továbbá az M0–M31 és M3–M31 csomópont közelsége gyors kapcsolatot kínál az ország fő közlekedési útvonalaihoz. Az üzem dolgozói számára rendszeres buszjárat biztosítja az egyszerű bejutást Gödöllő központjából.
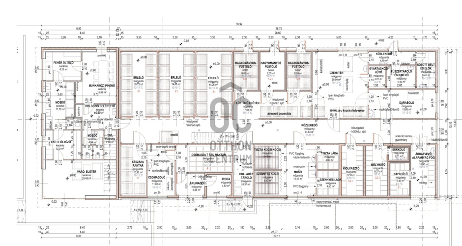
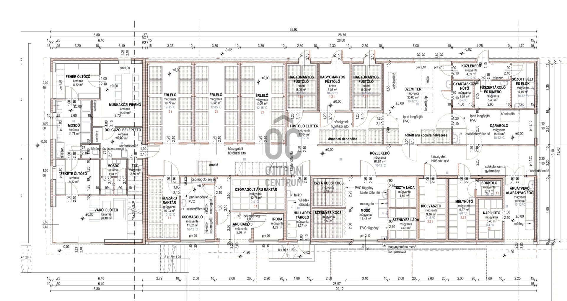
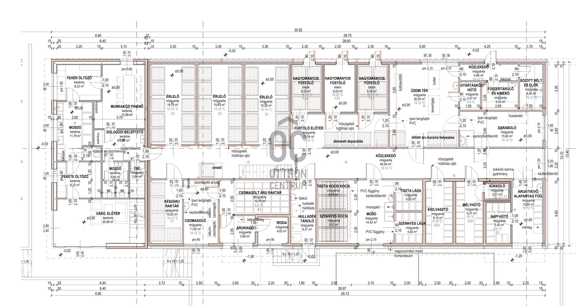
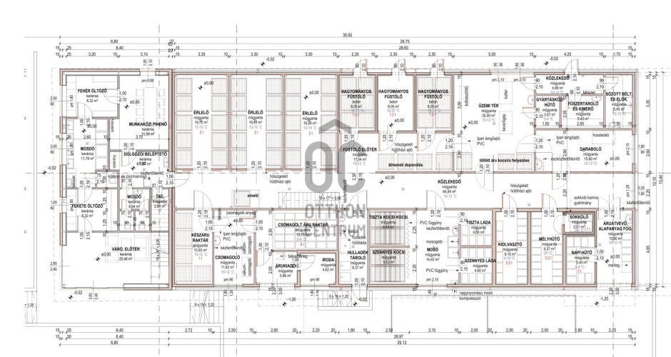
Az ingatlan egy 1642 m²-es telken helyezkedik el, összesen 636 m² üzemterülettel és 138 m² irodával és közösségi helyiséggel. Az épület acélvázas szerkezetű, szendvicspanel külső határoló szerkezetekkel épült. A szociális résznél a tartószerkezet az épület hőburkán belül helyezkedik el, míg az üzemi résznél fordítva került kialakításra. Az üzemi részen a belső határoló szerkezetek is szendvicspanel szerkezetek, ami biztosítja a higiéniai előírásoknak megfelelő és könnyen tisztítható kialakítást.
Az ingatlan mindenben megfelel a legmagasabb gyártási és higiéniai követelményeknek. A gyártócsarnok 500 m² alapterületű, rugalmasan alakítható szendvicspanel falakkal, az irodai rész pedig modern és tágas közösségi terekkel rendelkezik. Az áruforgalmat ki- és bemenő sávos ipari kapuk szolgálják, az udvaron pedig tíz parkolóhely áll rendelkezésre. A dolgozók számára húsz fő befogadására alkalmas pihenő, öltöző és szociális helyiségek biztosítottak. Az üzem optikai kábellel ellátott, nagy kapacitású internethálózattal működik.
A technológiai felszereltség a legmodernebb szintet képviseli: a teljes üzemterületen fűtési és hűtési rendszer üzemel, a szakosított hűtés és mélyhűtés lehetősége mellett. Az üzem IFS FOOD 8 tanúsítvánnyal rendelkezik, 97,5%-os audit-eredménnyel (2025).
Az ingatlan biztonsági szolgáltatási is említésre méltók, portaszolgálat, sorompós beléptető rendszer, kültéri és beltéri kamerarendszer, valamint tűz- és áramkimaradási riasztás gondoskodik a zavartalan működésről. Az épület belső falai tűzbiztos szendvicspanelekből készültek, a szerkezet pedig kimagasló teherbírású és túlbiztosított.
A fenntarthatóság jegyében az épület napelemrendszerrel termeli meg energiafelhasználásának egyharmadát, költséghatékony hőgazdálkodási rendszert és hőszivattyús melegvíz-termelést alkalmaz, valamint szakosított szennyvízkezeléssel és csapadékvíz-újrahasznosítással is rendelkezik.
Az üzem sokoldalú funkcionalitása révén számos tevékenységre alkalmas: panorámás meeting terem áll rendelkezésre oktatások és termékbemutatók számára, a látványkonyha bemutató gyártások lebonyolítását teszi lehetővé, továbbá a kialakítás minden élelmiszercsoport (hús, tejtermék, hal, zöldség, fagyasztott áru, chips, cukrászat, ital, gasztro) gyártási és csomagolási technológiáját támogatja. A belső tér igény szerint könnyen átalakítható, és mintabolt kialakítására is lehetőség van.
A higiéniai követelmények maximális teljesítése érdekében az üzem mosható saválló szendvicspanelekkel, mosható beltéri ajtókkal, teljes területén műgyanta padlózattal, valamint habgenerátoros forróvizes tisztítórendszerrel rendelkezik, működése pedig a legfrissebb EU-szabványok szerinti gyártási folyamatábrára épül.
Az ingatlan tökéletesen alkalmas bármilyen élelmiszeripari célra, vagy olyan jellegű raktározási fiunkcióra, ahol nagy hűtött területre van szükség.
Gödöllő jelentős ipari parkkal rendelkezik. Az Ipari Parkban számos hazai és nemzetközi vállalat telepedett meg, amelyek az élelmiszeripar, a logisztika, a gyártás és a technológiai szektor területén működnek. A lokáció stratégiai előnye, hogy a Liszt Ferenc repülőtér rövid időn belül elérhető, továbbá az M0–M31 és M3–M31 csomópont közelsége gyors kapcsolatot kínál az ország fő közlekedési útvonalaihoz. Az üzem dolgozói számára rendszeres buszjárat biztosítja az egyszerű bejutást Gödöllő központjából.
Az ingatlan egy 1642 m²-es telken helyezkedik el, összesen 636 m² üzemterülettel és 138 m² irodával és közösségi helyiséggel. Az épület acélvázas szerkezetű, szendvicspanel külső határoló szerkezetekkel épült. A szociális résznél a tartószerkezet az épület hőburkán belül helyezkedik el, míg az üzemi résznél fordítva került kialakításra. Az üzemi részen a belső határoló szerkezetek is szendvicspanel szerkezetek, ami biztosítja a higiéniai előírásoknak megfelelő és könnyen tisztítható kialakítást.
Az ingatlan mindenben megfelel a legmagasabb gyártási és higiéniai követelményeknek. A gyártócsarnok 500 m² alapterületű, rugalmasan alakítható szendvicspanel falakkal, az irodai rész pedig modern és tágas közösségi terekkel rendelkezik. Az áruforgalmat ki- és bemenő sávos ipari kapuk szolgálják, az udvaron pedig tíz parkolóhely áll rendelkezésre. A dolgozók számára húsz fő befogadására alkalmas pihenő, öltöző és szociális helyiségek biztosítottak. Az üzem optikai kábellel ellátott, nagy kapacitású internethálózattal működik.
A technológiai felszereltség a legmodernebb szintet képviseli: a teljes üzemterületen fűtési és hűtési rendszer üzemel, a szakosított hűtés és mélyhűtés lehetősége mellett. Az üzem IFS FOOD 8 tanúsítvánnyal rendelkezik, 97,5%-os audit-eredménnyel (2025).
Az ingatlan biztonsági szolgáltatási is említésre méltók, portaszolgálat, sorompós beléptető rendszer, kültéri és beltéri kamerarendszer, valamint tűz- és áramkimaradási riasztás gondoskodik a zavartalan működésről. Az épület belső falai tűzbiztos szendvicspanelekből készültek, a szerkezet pedig kimagasló teherbírású és túlbiztosított.
A fenntarthatóság jegyében az épület napelemrendszerrel termeli meg energiafelhasználásának egyharmadát, költséghatékony hőgazdálkodási rendszert és hőszivattyús melegvíz-termelést alkalmaz, valamint szakosított szennyvízkezeléssel és csapadékvíz-újrahasznosítással is rendelkezik.
Az üzem sokoldalú funkcionalitása révén számos tevékenységre alkalmas: panorámás meeting terem áll rendelkezésre oktatások és termékbemutatók számára, a látványkonyha bemutató gyártások lebonyolítását teszi lehetővé, továbbá a kialakítás minden élelmiszercsoport (hús, tejtermék, hal, zöldség, fagyasztott áru, chips, cukrászat, ital, gasztro) gyártási és csomagolási technológiáját támogatja. A belső tér igény szerint könnyen átalakítható, és mintabolt kialakítására is lehetőség van.
A higiéniai követelmények maximális teljesítése érdekében az üzem mosható saválló szendvicspanelekkel, mosható beltéri ajtókkal, teljes területén műgyanta padlózattal, valamint habgenerátoros forróvizes tisztítórendszerrel rendelkezik, működése pedig a legfrissebb EU-szabványok szerinti gyártási folyamatábrára épül.
Az ingatlan tökéletesen alkalmas bármilyen élelmiszeripari célra, vagy olyan jellegű raktározási fiunkcióra, ahol nagy hűtött területre van szükség.
Regisztrációs szám
UZ019009
Az ingatlan adatai
Értékesités
eladó
Jogi státusz
használt
Jelleg
üzleti célú
Típus
teljes épület
Építési mód
panel
Méret
636 m²
Telek méret
1 642 m²
Föld feletti nettó méret
774 m²
Belmagasság
302 cm
Lakáson belüli szintszám
2
Állapot
Kiváló
Homlokzat állapota
Kiváló
Víz
Van
Gáz
Van
Villany
Van
Csatorna
Van
Lehetséges funkciók
iroda és bemutatóterem, vagy üzlet, iroda és raktár, bemutatóterem és szervíz, vagy raktár, ipari csarnok vagy raktár, logisztikai központ
Hasznosítás
tulajdosnos használja