4 498 763 Ft
11 570 €
- 2 043m²








Ságvári raktárcsarnok KIADÓ!
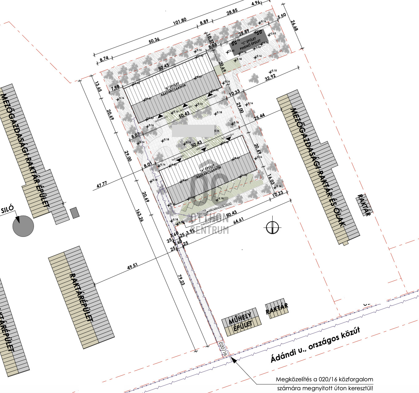
Ságváron, Siófokhoz és az M7 autópályához mindössze 7 km-re, 2x1.000 nm-es csarnok kiadó egy 7.723 m²-es telken!
- Méret: 2 x 1.000 m²-es csarnok
- belmagasság: 6-7 m
- Falvastagság: 12 cm
- Szintbeli kapuk mérete: 3x3m, és 2 db, 4,5 x 4,50m
- Villamos hálózat: 3x80 A
- Napelem: 50 mW teljesítmény
- Egyik csarnokban: 100 m² iroda, öltözők, zuhanyzók, külön női és férfi WC,
- Az ingatlan specialitása az övezeti besorolása: Kü-Hull, azaz hulladékkezelő terület (a területen a hulladékkezeléshez, feldolgozáshoz, időszakos tároláshoz szükséges épületek, építmények, valamint azok kiszolgáló létesítményei helyezhetők el),
- Bérleti díj:
- raktárnál 5,5 €/nm,
- irodánál 8,9 €/nm.
- Üzemeltetési díj: 0,3€/nm.
Bármi kérdéssel, vagy a bejárással kapcsolatban állok rendelkezésükre!
- Méret: 2 x 1.000 m²-es csarnok
- belmagasság: 6-7 m
- Falvastagság: 12 cm
- Szintbeli kapuk mérete: 3x3m, és 2 db, 4,5 x 4,50m
- Villamos hálózat: 3x80 A
- Napelem: 50 mW teljesítmény
- Egyik csarnokban: 100 m² iroda, öltözők, zuhanyzók, külön női és férfi WC,
- Az ingatlan specialitása az övezeti besorolása: Kü-Hull, azaz hulladékkezelő terület (a területen a hulladékkezeléshez, feldolgozáshoz, időszakos tároláshoz szükséges épületek, építmények, valamint azok kiszolgáló létesítményei helyezhetők el),
- Bérleti díj:
- raktárnál 5,5 €/nm,
- irodánál 8,9 €/nm.
- Üzemeltetési díj: 0,3€/nm.
Bármi kérdéssel, vagy a bejárással kapcsolatban állok rendelkezésükre!
Regisztrációs szám
UZ018555
Az ingatlan adatai
Értékesités
kiadó
Jogi státusz
új
Jelleg
üzleti célú
Típus
teljes épület
Építési mód
panel
Méret
2 043 m²
Telek méret
7 723 m²
Föld feletti nettó méret
2 043 m²
Belmagasság
680 cm
Állapot
Kiváló
Homlokzat állapota
Kiváló
Építés éve
2025
Víz
Van
Gáz
Utcán
Villany
Van
Csatorna
Van
Lehetséges funkciók
kiskereskedelem, iroda, iroda és bemutatóterem, vagy üzlet, iroda és raktár, bemutatóterem és szervíz, vagy raktár, ipari csarnok vagy raktár, logisztikai központ, mezőgazdasági telephely, egyéb
Megközelíthetőseg
Forgalmas főútról nyíló bejárat
Hasznosítás
üres

Kőrösi Róbert
Hitelszakértő