355 000 000 Ft
937 000 €
- 500m²
Ipari és Kereskedelmi lehetőség Solymáron!
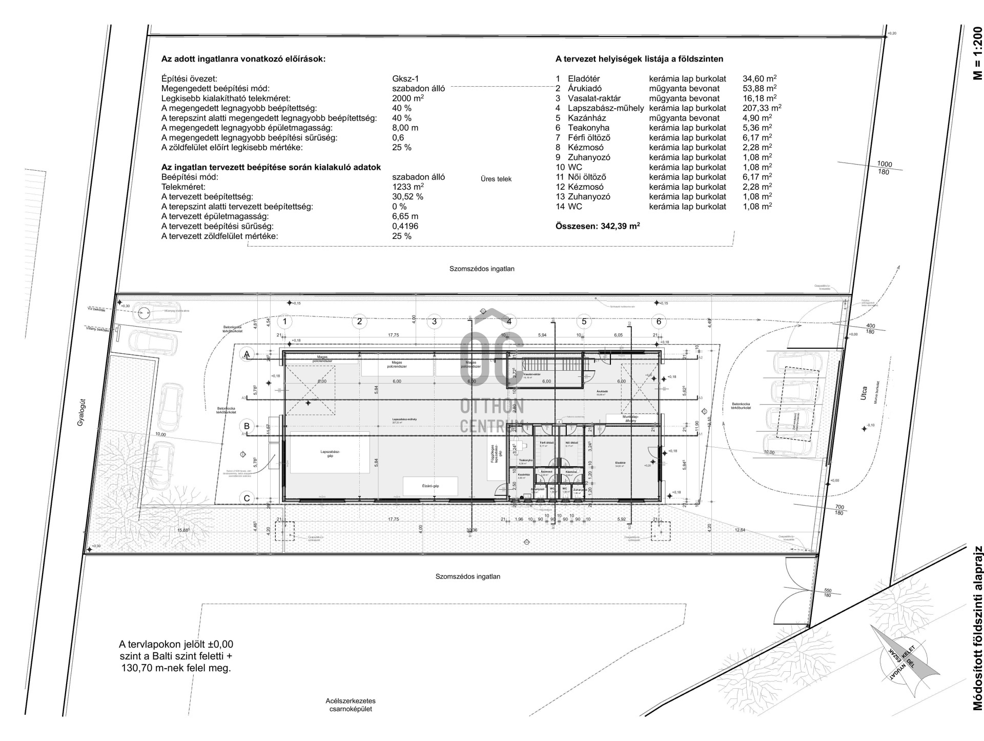
Eladásra kínálunk Solymár felé vezető,rendkívül forgalmas fő út(Bécsi út) mentén,ipari és kereskedelmi övezetben,1233nm-es, teljesen sík telken elhelyezkedő,elképesztő adottságokkal bíró,br.550nm alapterületű épület komplexumot-kereskedelmi csarnok ingatlant. Az átmenő forgalom óriási,több települést és vidéket is valamint maga a Fővárost is ezen út mentén lehet elérni. Az épület 2023-ban épült,modern, a mai kor csúcs műszaki tartalmával, rendkívül igényes kivitelben. Ez év végére készül el, a vételár a teljesen befejezett árra vonatkozik. Jelenleg még a burkolatok és a szaniterek választhatóak. Található benne eladótér,iroda,szociális helyiség,valamint nagyméretű,akár szeparálható raktár helyiség is. Az emeleten 140nm-es egyben helyiség, ami akár több irodát vagy tárgyalót is magában foglalhat. Elől, hátul, oldalt több bejárattal is rendelkezik,a személyi bejárás és az anyagmozgatás szempontjait figyelembe véve került kialakításra. A telek utcafronti szélessége igen kényelmes, itt található a közel 7m fesztávú automata úszókapu is. Az ingatlan besorolása GKSZ, Ipari és Kereskedelmi tevékenység végzésére alkalmas. Szomszédságában kereskedelmi egységek, telephelyek a buszmegálló 100méterre található. Felülete teljesen sík, ipari viacolorral burkolt, minden oldalról újonnan elkerített.
A főbb műszaki paraméterek:
-Komplett külső hőszigetelés
-Hőszivattyús padló fűtés illetve faincol
-46 Kw-os napelem rendszer,102db panel
-3X63 A
-2 db ipari, automata, szekcionált kapu
-ipari,látszóbeton padló
-távfelügyelethez bekötött riasztó rendszer kamerával
Az ingatlan adottságából és elhelyezkedéséből többek közt tökéletes kereskedelmi, szolgáltató vagy ipari jellegű tevékenység végzésére.
A főbb műszaki paraméterek:
-Komplett külső hőszigetelés
-Hőszivattyús padló fűtés illetve faincol
-46 Kw-os napelem rendszer,102db panel
-3X63 A
-2 db ipari, automata, szekcionált kapu
-ipari,látszóbeton padló
-távfelügyelethez bekötött riasztó rendszer kamerával
Az ingatlan adottságából és elhelyezkedéséből többek közt tökéletes kereskedelmi, szolgáltató vagy ipari jellegű tevékenység végzésére.
Regisztrációs szám
UZ016437
Az ingatlan adatai
Értékesités
eladó
Jogi státusz
új
Jelleg
üzleti célú
Típus
teljes épület
Építési mód
könnyűszerkezetes
Méret
500 m²
Telek méret
1 233 m²
Föld feletti nettó méret
500 m²
Fűtés
hőszivattyú
Belmagasság
600 cm
Lakáson belüli szintszám
1
Állapot
Kiváló
Homlokzat állapota
Kiváló
Építés éve
2023
Víz
Van
Villany
Van
Lehetséges funkciók
iroda és bemutatóterem, vagy üzlet, iroda és raktár, bemutatóterem, bemutatóterem és szervíz, vagy raktár, ipari csarnok vagy raktár, logisztikai központ, egyéb
Hasznosítás
üres
Pfeffer Kinga
Hitelszakértő