5 400 000 Ft
14 270 €
- 2 700m²
Egy jó üzlet...
Egy jó üzletet akar nyitni?
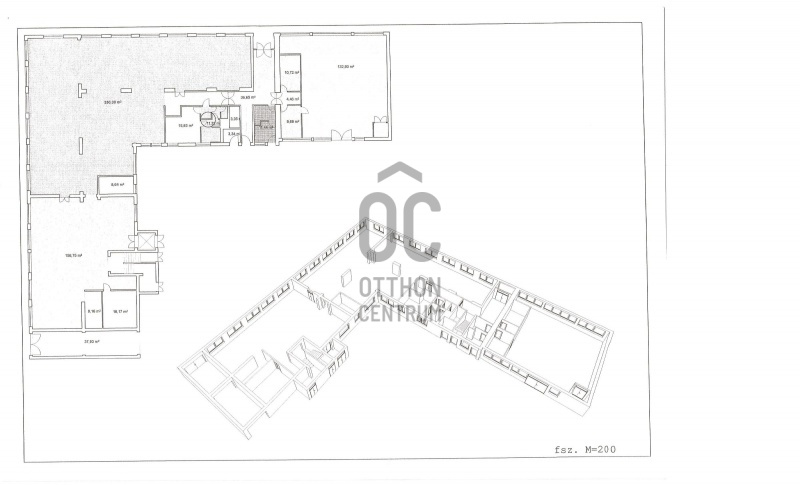
Ha nagy méretben gondolkodik, itt bérelhet egy kitűnő állapotban lévő épületben Angyalföld kedvelt részén 3 szinten 2700 m2 hasznos alapterületű ingatlant. Ehhez egy 14 beállóval rendelkező belső udvart, valamint raktározásra nagy belmagasságú 150 m2 alapterületű tárolóépületet, valamint további pincei tárolóhelyiségeket is kap.
Az ingatlan újszerű állapota és jó alaprajzi kialakítása miatt sokrétűen felhasználható mind ipari, kereskedelmi illetve irodai funkcióra.
Három szintjén külön-külön is kialakíthat egységeket, a komplexum azonban egyben kiadó.
Üzletház, bútorüzlet, földszintjén élelmiszerüzlet, emeletén irodák, vagy bármilyen más könnyűipari funkció kialakítható.
Az épület felújított központi fűtéses rendszerrel, saját kazánnal rendelkezik, homlokzatai hőszigeteltek, új, hőszigetelt műanyag nyílászárókkal vannak ellátva. Az épület kívül elegáns, rendezett képet mutat, belsője exkluzív közösségi terekkel és az Ön igénye szerint kialakítható bérlőterületekkel rendelkezik.
Az ingatlan bérleti díja 18.000€/hó, kaució 3 hónap. Üzemeltetés mérőórák és megegyezés szerint. A továbbiakat személyesen...
Ha hasonló méretben gondolkodik, tekintse meg az ingatlant és képzelje bele vállalkozását! Ebben tudok segíteni, várom hívását!
Ha nagy méretben gondolkodik, itt bérelhet egy kitűnő állapotban lévő épületben Angyalföld kedvelt részén 3 szinten 2700 m2 hasznos alapterületű ingatlant. Ehhez egy 14 beállóval rendelkező belső udvart, valamint raktározásra nagy belmagasságú 150 m2 alapterületű tárolóépületet, valamint további pincei tárolóhelyiségeket is kap.
Az ingatlan újszerű állapota és jó alaprajzi kialakítása miatt sokrétűen felhasználható mind ipari, kereskedelmi illetve irodai funkcióra.
Három szintjén külön-külön is kialakíthat egységeket, a komplexum azonban egyben kiadó.
Üzletház, bútorüzlet, földszintjén élelmiszerüzlet, emeletén irodák, vagy bármilyen más könnyűipari funkció kialakítható.
Az épület felújított központi fűtéses rendszerrel, saját kazánnal rendelkezik, homlokzatai hőszigeteltek, új, hőszigetelt műanyag nyílászárókkal vannak ellátva. Az épület kívül elegáns, rendezett képet mutat, belsője exkluzív közösségi terekkel és az Ön igénye szerint kialakítható bérlőterületekkel rendelkezik.
Az ingatlan bérleti díja 18.000€/hó, kaució 3 hónap. Üzemeltetés mérőórák és megegyezés szerint. A továbbiakat személyesen...
Ha hasonló méretben gondolkodik, tekintse meg az ingatlant és képzelje bele vállalkozását! Ebben tudok segíteni, várom hívását!
Regisztrációs szám
UH002803
Az ingatlan adatai
Értékesités
kiadó
Jogi státusz
használt
Jelleg
üzleti célú
Méret
2 700 m²
Fűtés
Gáz cirkó
Társaház kert
igen
Víz
Van
Gáz
Van
Villany
Van
Csatorna
Van
Telek lejtés
sík
Lehetséges funkciók
kiskereskedelem
Berkes-Jakus Kinga
Hitelszakértő