164 990 000 Ft
419 000 €
- 155m²
- 5 szoba
NEWLY BUILT SEMI-DETACHED HOUSE IN DUNAHARASZTI, IN THE BEZERÉDI RESIDENTIAL PARK – modern home with excellent technical specifications!
In the popular area of Dunaharaszti, we are offering for sale a newly built semi-detached house with excellent features in the quiet, family-friendly neighborhood of the Bezerédi residential park. The design and technical solutions of the property fully ensure the comfort of an independent family home, making it an ideal choice for those who want a peaceful home without compromises.
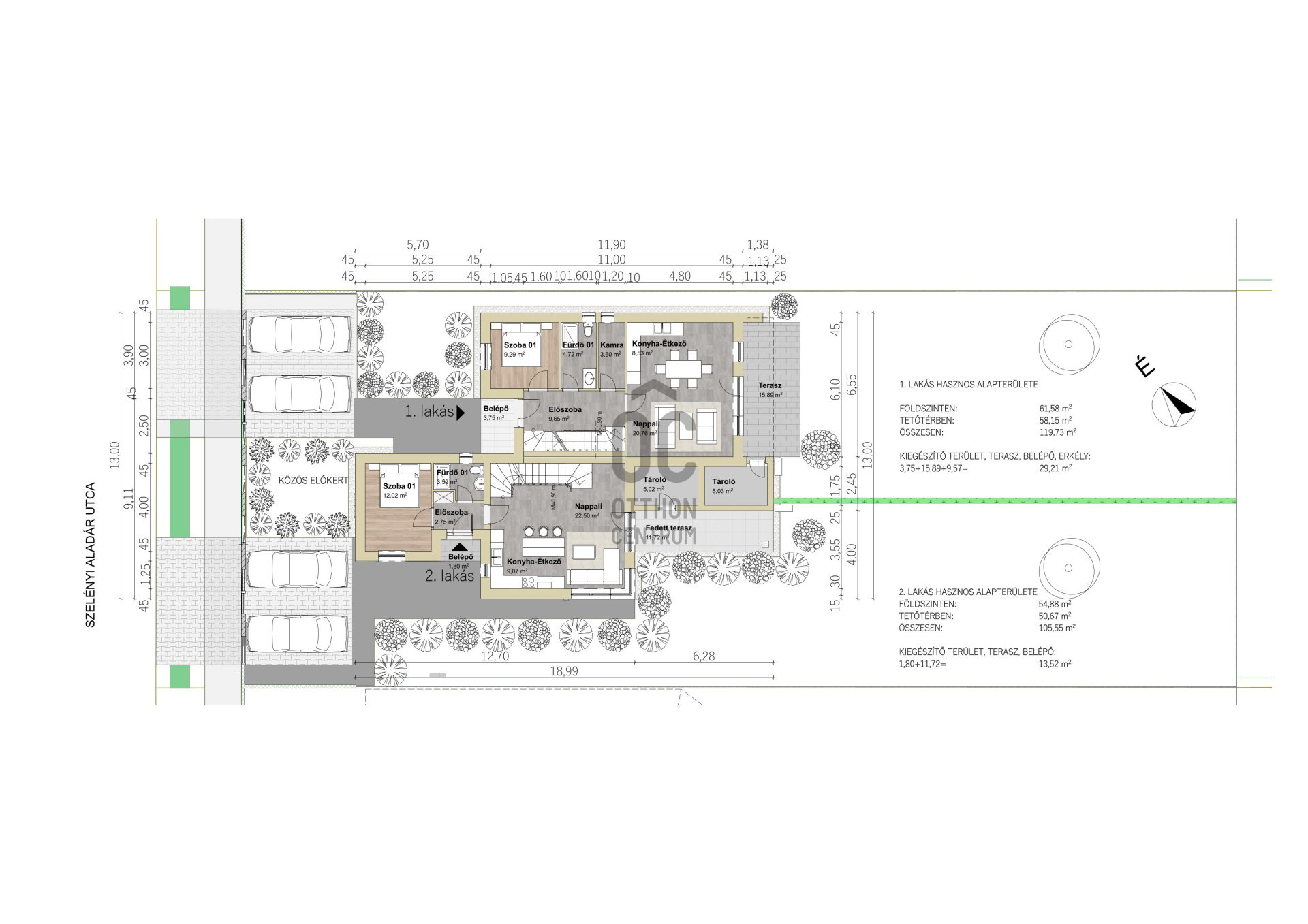
The apartment has a gross floor area of 125 m², which includes an additional 29,21 m² terrace and balcony, as well as a 405 m² private garden. The interior layout is practical: it features a spacious living room, 4 separate bedrooms, 2 bathrooms, and a dressing room.
The property is exceptionally energy-efficient (A+ rating), serviced by a modern heat pump system. The floor, ceiling, and wall heating and cooling provide a consistent thermal sensation throughout the year, while keeping maintenance costs low.
One of the greatest advantages of the semi-detached house is the excellent technical separation: the living units are separated by double walls, and the ceiling structures are built separately, ensuring high levels of sound insulation and privacy.
Key parameters:
• 125 m² living space + 29,21 m² outdoor connections
• 405 m² private garden
• Living room + 4 bedrooms
• 2 bathrooms, separate dressing room • A+ energy efficiency
• Heat pump system with complex surface heating and cooling
• 3-layer modern windows
• Preparation for electric blinds, mosquito nets
Brief technical content:
• 30 cm Porotherm masonry
• 15 cm EPS + 25 cm PIR thermal insulation
• Monolithic reinforced concrete ceiling
• Terrán Zenit Resistor roof tiles (in graphite shade)
• Stable, reinforced concrete structure
• Floor coverings can be chosen according to demand
The house can be customized to individual needs: there is an option for solar panel preparation and the establishment of a smart home system.
The environment is ideal for families: the streets of the residential park are traffic-free, and all important institutions and services can be found nearby – shopping options, kindergarten, school, medical office, and public transport connections.
Expected handover time: July 2026
Reservations for the property can be made with a 30% down payment.
If needed, we also provide comprehensive administrative assistance – in loan management and legal background support.
If you are looking for a modern, well-thought-out home that represents long-term value, it is worth getting to know it in person!
For inquiries, feel free to contact us, even on weekends!
The apartment has a gross floor area of 125 m², which includes an additional 29,21 m² terrace and balcony, as well as a 405 m² private garden. The interior layout is practical: it features a spacious living room, 4 separate bedrooms, 2 bathrooms, and a dressing room.
The property is exceptionally energy-efficient (A+ rating), serviced by a modern heat pump system. The floor, ceiling, and wall heating and cooling provide a consistent thermal sensation throughout the year, while keeping maintenance costs low.
One of the greatest advantages of the semi-detached house is the excellent technical separation: the living units are separated by double walls, and the ceiling structures are built separately, ensuring high levels of sound insulation and privacy.
Key parameters:
• 125 m² living space + 29,21 m² outdoor connections
• 405 m² private garden
• Living room + 4 bedrooms
• 2 bathrooms, separate dressing room • A+ energy efficiency
• Heat pump system with complex surface heating and cooling
• 3-layer modern windows
• Preparation for electric blinds, mosquito nets
Brief technical content:
• 30 cm Porotherm masonry
• 15 cm EPS + 25 cm PIR thermal insulation
• Monolithic reinforced concrete ceiling
• Terrán Zenit Resistor roof tiles (in graphite shade)
• Stable, reinforced concrete structure
• Floor coverings can be chosen according to demand
The house can be customized to individual needs: there is an option for solar panel preparation and the establishment of a smart home system.
The environment is ideal for families: the streets of the residential park are traffic-free, and all important institutions and services can be found nearby – shopping options, kindergarten, school, medical office, and public transport connections.
Expected handover time: July 2026
Reservations for the property can be made with a 30% down payment.
If needed, we also provide comprehensive administrative assistance – in loan management and legal background support.
If you are looking for a modern, well-thought-out home that represents long-term value, it is worth getting to know it in person!
For inquiries, feel free to contact us, even on weekends!
Regisztrációs szám
U0049582
Az ingatlan adatai
Értékesités
eladó
Jogi státusz
új
Jelleg
ház
Építési mód
tégla
Méret
155 m²
Bruttó méret
155 m²
Telek méret
405 m²
Terasz / erkély mérete
25,5 m²
Fűtés
hőszivattyú
Belmagasság
270 cm
Lakáson belüli szintszám
1
Tájolás
Kelet
Állapot
Kiváló
Homlokzat állapota
Kiváló
Környék
csendes, jó közlekedés
Építés éve
2026
Fürdőszobák száma
2
Víz
Van
Villany
Van
Csatorna
Van
Tároló
Önálló
Helyiségek
nappali
20.76 m²
konyha-étkező
8.53 m²
kamra
2.6 m²
szoba
9.29 m²
fürdőszoba-wc
4.72 m²
szoba
11.32 m²
szoba
15.45 m²
szoba
14.4 m²
fürdőszoba-wc
5.91 m²
közlekedő
6.54 m²
előszoba
9.65 m²
tároló
5.02 m²