Elérhető Otthon Start hitellel
Eladó újépítésű családi ház, U0049482
Érd, Fenyves-Parkváros

119 900 000 Ft

312 000 €

  • 140m²
  • 4 szoba

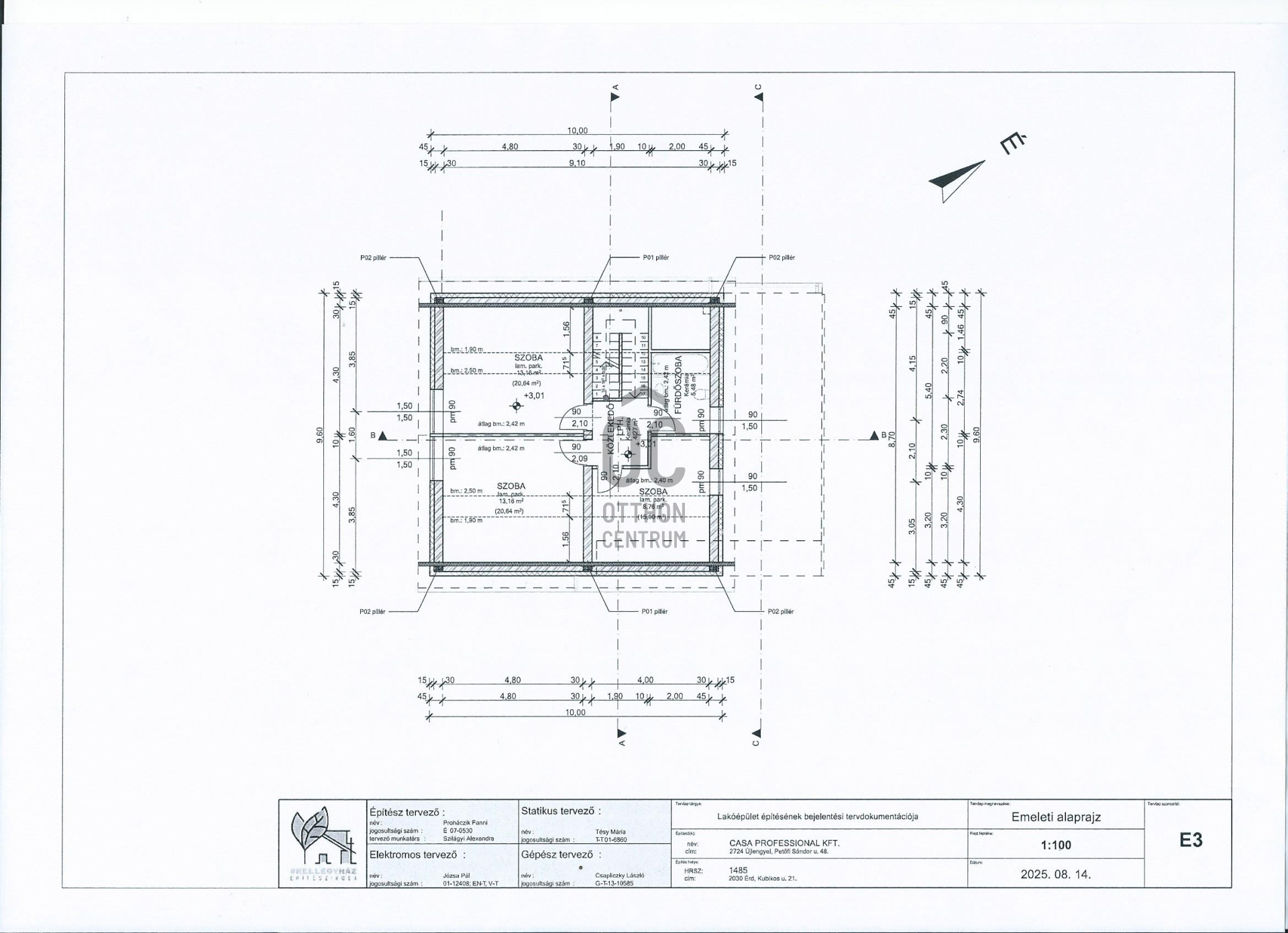
Érd Fenyves-Parkvárosban várja új tulajdonosát egy most induló 140 nm-es, kétszintes, hőszivattyús, önálló családi ház.
2026. márciusi szerződéskötés esetén a kulcsátadás garantáltan 2026. december 31-ig megtörténik!

Prémium alapanyagok és modern technológia!
Modern hőszivattyús fűtés és minden helyiségben padlófűtés lesz kialakítva.
15 cm-es külső homlokzati szigetelés kap a ház.
A villamos hálózat: 3x25 Amper, földkábeles bekötéssel, H-tarifa előkészítéssel.
A szaniterek, illetve a padlóburkolatok a megrendelő igényeinek megfelelően választhatók.
Konyhabútort nem tartalmaz az ár!

A telek 419 nm. Kis méretű, de élhető kert.
Az ingatlan egy egysávos, forgalommentes zsákutcában található, így a csend és a biztonság adott.

Regisztrációs szám

U0049482

Az ingatlan adatai

Értékesités
eladó
Jogi státusz
új
Jelleg
ház
Építési mód
tégla
Méret
140 m²
Bruttó méret
140 m²
Telek méret
419 m²
Belmagasság
260 cm
Lakáson belüli szintszám
2
Tájolás
Dél
Állapot
Kiváló
Homlokzat állapota
Kiváló
Környék
csendes, jó közlekedés
Építés éve
2026
Fürdőszobák száma
2
Garázs
Benne van az árban
Fedett beállók száma
1
Víz
Van
Gáz
Utcán
Villany
Van
Csatorna
Van
Tároló
Önálló

Helyiségek

hálószoba
13 m²
hálószoba
13 m²
hálószoba
9 m²
nappali-konyha
42 m²
fürdőszoba-wc
4 m²
fürdőszoba-wc
5.5 m²
előszoba
8 m²
mosókonyha
9 m²
kamra
0.7 m²
tároló
5 m²
garázs
17 m²
közlekedő
4 m²

Irodánk kínálatából - XVIII. kerület - Gilice tér

for sale panel apartment

Index image
data_sheet.details.realestate.section.main.otthonstart_flag.label
7

for sale apartment

Index image
8

for sale family house

Index image
20

for sale panel apartment

Index image
data_sheet.details.realestate.section.main.otthonstart_flag.label
12

for sale apartment

Index image
data_sheet.details.realestate.section.main.otthonstart_flag.label
11

for sale panel apartment

Index image
data_sheet.details.realestate.section.main.otthonstart_flag.label
8

for sale semi-detached house

Index image
54