Elérhető Otthon Start hitellel
Eladó újépítésű családi ház,
U0048926
Balatonmáriafürdő
64 990 000 Ft
172 000 €
- 60m²
- 3 szoba
Eladó új építésű ingatlan Balatonkeresztúron !
Fedezze fel ezt a különleges lehetőséget, amely ideális otthont kínál Balatonkeresztúron, Somogy vármegyében. Az ingatlan egy újonnan épülő ház, amely prémium kivitelezésének köszönhetően várja új lakóit.
Ennek előnye ,hogy az új tulajdonos választhatja ki a burkolatokat és még néhány dolgot.
Átadása 2026.
A ház jellemzői :
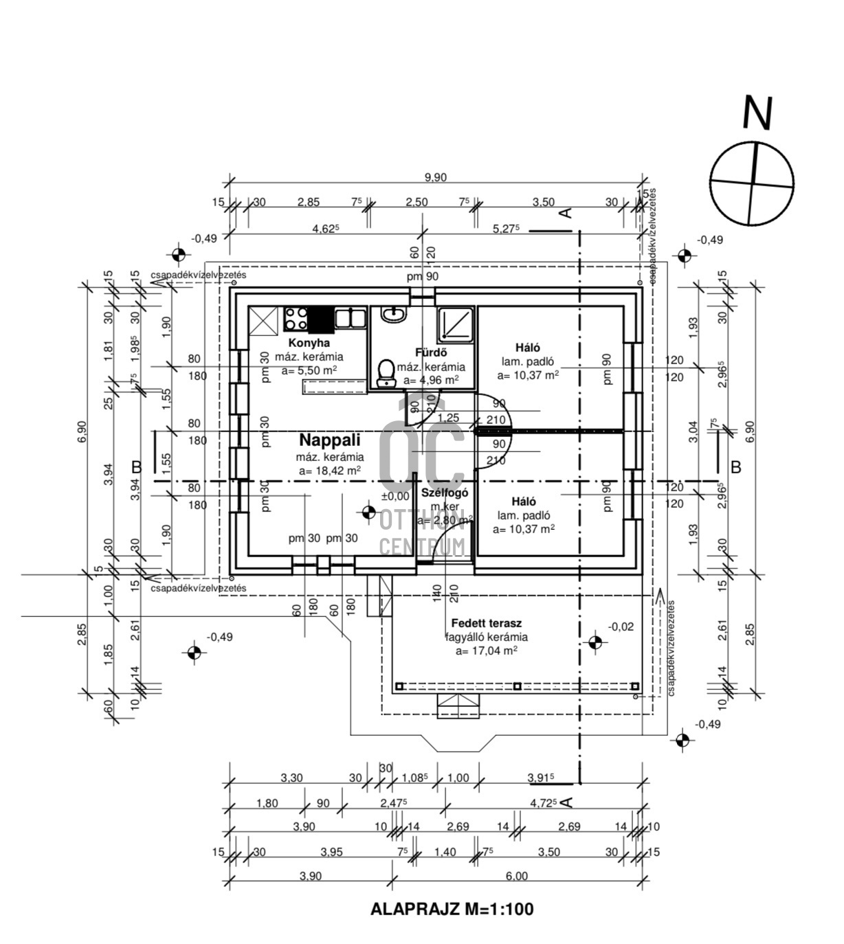
- 60 nm alapterülettel fog rendelkezni ,amelyhez egy 450 nm-es telek tartozik
- Osztatlan közös telek, amely használati megállapodás keretében hasznosítható
- A házat 2 hálószobával, nappalival, fürdővel tervezték, amelyek lehetőséget adnak a kényelmes és modern életvitelre.
- A világos nappali ideális helyszíne a baráti összejöveteleknek.
- A ház egyedi tervezésű, amely a modern életstílushoz igazodik.
- A klíma gondoskodik a kellemes hőmérsékletről a nyári melegben és a téli hidegben egyaránt
- Az ingatlan 2026 végén kerül átadásra !!
Balatonkeresztúr csendes, biztonságos település, amely ideális hely mindenki számára. A közlekedési lehetőségek kiválóak: a közeli buszmegállók és vasútállomás gyors hozzáférést biztosítanak a környező városokhoz és a Balaton partjához.
A településen található üzletek, éttermek és szórakozási lehetőségek mind hozzájárulnak ahhoz, hogy itt élni valóban élvezetes legyen.
Ne hagyja ki ezt az egyedülálló lehetőséget, hogy egy modern, világos és tágas otthonra találjon Balatonkeresztúron!
Ha bármilyen kérdése van, vagy szeretne többet megtudni az ingatlanról, bizalommal keressen minket!
Fedezze fel ezt a különleges lehetőséget, amely ideális otthont kínál Balatonkeresztúron, Somogy vármegyében. Az ingatlan egy újonnan épülő ház, amely prémium kivitelezésének köszönhetően várja új lakóit.
Ennek előnye ,hogy az új tulajdonos választhatja ki a burkolatokat és még néhány dolgot.
Átadása 2026.
A ház jellemzői :
- 60 nm alapterülettel fog rendelkezni ,amelyhez egy 450 nm-es telek tartozik
- Osztatlan közös telek, amely használati megállapodás keretében hasznosítható
- A házat 2 hálószobával, nappalival, fürdővel tervezték, amelyek lehetőséget adnak a kényelmes és modern életvitelre.
- A világos nappali ideális helyszíne a baráti összejöveteleknek.
- A ház egyedi tervezésű, amely a modern életstílushoz igazodik.
- A klíma gondoskodik a kellemes hőmérsékletről a nyári melegben és a téli hidegben egyaránt
- Az ingatlan 2026 végén kerül átadásra !!
Balatonkeresztúr csendes, biztonságos település, amely ideális hely mindenki számára. A közlekedési lehetőségek kiválóak: a közeli buszmegállók és vasútállomás gyors hozzáférést biztosítanak a környező városokhoz és a Balaton partjához.
A településen található üzletek, éttermek és szórakozási lehetőségek mind hozzájárulnak ahhoz, hogy itt élni valóban élvezetes legyen.
Ne hagyja ki ezt az egyedülálló lehetőséget, hogy egy modern, világos és tágas otthonra találjon Balatonkeresztúron!
Ha bármilyen kérdése van, vagy szeretne többet megtudni az ingatlanról, bizalommal keressen minket!
Regisztrációs szám
U0048926
Az ingatlan adatai
Értékesités
eladó
Jogi státusz
új
Jelleg
ház
Építési mód
tégla
Méret
60 m²
Bruttó méret
80 m²
Telek méret
450 m²
Fűtés
elektromos fan-coil
Belmagasság
270 cm
Tájolás
Dél-nyugat
Állapot
Kiváló
Homlokzat állapota
Kiváló
Építés éve
2026
Fürdőszobák száma
1
Víz
Van
Gáz
Utcán
Villany
Van
Csatorna
Van
Vízpart távolsága
több mint 500 méterre
Helyiségek
előszoba
1 m²
nappali-konyha
1 m²
ebédlő
1 m²
hálószoba
1 m²
hálószoba
1 m²
fürdőszoba-wc
1 m²