AHOL A CSALÁD MINDEN TAGJA JÓL ÉREZHETI MAGÁT!
KESZTHELY BELVÁROSÁBAN, közel a sétáló utcához, különböző méretű
lakások, épülő 26 lakásos társasházban, 2028. II. negyedév végi átadással
leköthetők!
A minőségi beépített anyagok kizárólag nagymúltú gyártók termékei közül
kerül ki. Egyedi tervezésének köszönhetően, hosszú távra kiváló otthon
érzetét kelti.
Az építkezés kezdete: 2026. április
Kulcsrakész átadás: 2028. július
MŰSZAKI TARTALOM:
-Pontalapozás 25 cm vastag vasbeton lemezalapra
-Monolit vasbeton vázzal és statikailag méretezett födémekkel, kerámia és
pórusbeton kitöltő falakkal
-A pincefalak és a lépcsőházak vasbetonból, míg a külső falak Porotherm
vázkerámia és Silka pórusbeton falazatok
-Hőszigetelés és hangszigetelés a legmodernebb anyagokkal, a komfortos
lakóterekért
-Monolit vasbeton födémek, rejtett gerendákkal és akusztikai szigeteléssel
-A műanyag homlokzati nyílászárók három rétegű üvegezéssel, jó légzárással,
redőnyszekrénnyel és motoros mozgatás előkészítéssel rendelkeznek
-Az erkélyek csúszásmentes és fagyálló gres burkolattal
-Homlokzat 15 cm-es hőszigetelés, fehér nemes vakolat
-Kleemann 8 személyes lift EPH védelemmel
-Melegvíz, Ariston Velis bojler
-Padlófűtés „Daikin” hőszivattyú
-Riasztó előkészítés
-Konyha: gépészet, elektromos kiállások kialakítva, bútor nélkül
-Épített zuhany, üveg fallal
-Vizes helyiségek: kerámia 7 500.- FT + áfa / nm
-Szobák: laminált parketta 7 500.-Ft. + áfa / nm
-Falak: diszperziós festés fehér Baumit anyagokkal
-Kapacitás: lakásonként 32 A
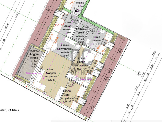
- Lakás méretek: 38 M2 - 68 M2-Ig
ÉRTÉKESÍTÉSI ÜTEMTERV:
- Foglaló: 10% + 10% vételár előleg
KÜLÖN HOZZÁVÁSÁROLHATÓ
A projekthez 29 teremgarázs tartozik: 6,5 M Ft/ db.
További információért és személyes megtekintésért keressen bizalommal!
lakások, épülő 26 lakásos társasházban, 2028. II. negyedév végi átadással
leköthetők!
A minőségi beépített anyagok kizárólag nagymúltú gyártók termékei közül
kerül ki. Egyedi tervezésének köszönhetően, hosszú távra kiváló otthon
érzetét kelti.
Az építkezés kezdete: 2026. április
Kulcsrakész átadás: 2028. július
MŰSZAKI TARTALOM:
-Pontalapozás 25 cm vastag vasbeton lemezalapra
-Monolit vasbeton vázzal és statikailag méretezett födémekkel, kerámia és
pórusbeton kitöltő falakkal
-A pincefalak és a lépcsőházak vasbetonból, míg a külső falak Porotherm
vázkerámia és Silka pórusbeton falazatok
-Hőszigetelés és hangszigetelés a legmodernebb anyagokkal, a komfortos
lakóterekért
-Monolit vasbeton födémek, rejtett gerendákkal és akusztikai szigeteléssel
-A műanyag homlokzati nyílászárók három rétegű üvegezéssel, jó légzárással,
redőnyszekrénnyel és motoros mozgatás előkészítéssel rendelkeznek
-Az erkélyek csúszásmentes és fagyálló gres burkolattal
-Homlokzat 15 cm-es hőszigetelés, fehér nemes vakolat
-Kleemann 8 személyes lift EPH védelemmel
-Melegvíz, Ariston Velis bojler
-Padlófűtés „Daikin” hőszivattyú
-Riasztó előkészítés
-Konyha: gépészet, elektromos kiállások kialakítva, bútor nélkül
-Épített zuhany, üveg fallal
-Vizes helyiségek: kerámia 7 500.- FT + áfa / nm
-Szobák: laminált parketta 7 500.-Ft. + áfa / nm
-Falak: diszperziós festés fehér Baumit anyagokkal
-Kapacitás: lakásonként 32 A
- Lakás méretek: 38 M2 - 68 M2-Ig
ÉRTÉKESÍTÉSI ÜTEMTERV:
- Foglaló: 10% + 10% vételár előleg
KÜLÖN HOZZÁVÁSÁROLHATÓ
A projekthez 29 teremgarázs tartozik: 6,5 M Ft/ db.
További információért és személyes megtekintésért keressen bizalommal!