249 990 000 Ft
643 000 €
- 264m²
- 6 szoba







































Eladó Gyálon egy két szintes luxus családi ház!
Eladó Gyálon egy két szintes luxus családi ház!
Világos, modern otthon, amely ideális nagycsaládosoknak és azoknak, akik a nagy tereket szeretik!
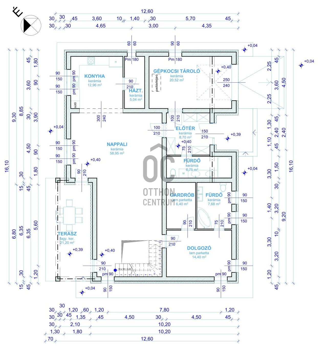
Telek méret: 750 m2
Ingatlan méretei: Nettó 264 m2, bruttó 285,79 m2
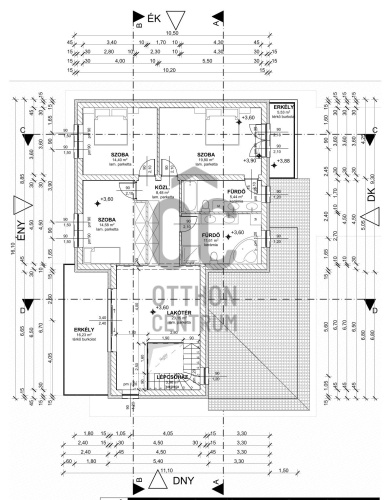
Szintek száma: 2
Szobák: 4 hálószoba, alsó és felső szinten is nappali
Fürdőszobák: 4 fürdőszoba + WC
Terasz: 21,2 m2
Erkély: 16,23 m2 + 7,53 m2
Főbb helyiségek:
Konyha: 12,96 m2
Nappali: 58,95 m2 + 23,15 m2
Háztartási helyiség: 5,04 m2
Előszoba: 8,7 m2
Gardrób: 6,4 m2
Szobák: 14,58 m2; 14,4 m2; 19,8 m2: 14,4m2
Közlekedő: 8,48 m2
Fürdőszobák: 11,61 m2; 7,68 m2; 6,75 m2; 5,44 m2
Műszaki jellemzők:
30-as Leier falazat 15 cm szigeteléssel, lábazat 10cm XPS szigetelés
Belső falak: 10 cm Leier téglából
Födém: 20 cm kőzetgyapot szigetelés
Hőszivattyú + padlófűtés
3 rétegű, energiatakarékos külső nyílászárók
Választható klíma: nappali vagy komplett kiállás minden szobában
Elektromos kapu, napelem előkészítés
Kamerarendszer, riasztó beépítve
Elektromos redőny szúnyoghálóval
Modern világítás az egész házban
Minden helyiségben klíma
Kerti világítás
Az ingatlan ára a kulcsrakész állapotra vonatkozik!
Ide már csak költözni kell!!!!
30% önerővel lefoglalhatja
Várható átadás: 2025. 12. 31.
Segítünk a finanszírozásban (független hitelszakértő), ügyvédi háttér garantált!
Érdeklődjön még ma, és találja meg új otthonát a legjobb feltételekkel!
Hívjon a hét bármely napján további információért!
Világos, modern otthon, amely ideális nagycsaládosoknak és azoknak, akik a nagy tereket szeretik!
Telek méret: 750 m2
Ingatlan méretei: Nettó 264 m2, bruttó 285,79 m2
Szintek száma: 2
Szobák: 4 hálószoba, alsó és felső szinten is nappali
Fürdőszobák: 4 fürdőszoba + WC
Terasz: 21,2 m2
Erkély: 16,23 m2 + 7,53 m2
Főbb helyiségek:
Konyha: 12,96 m2
Nappali: 58,95 m2 + 23,15 m2
Háztartási helyiség: 5,04 m2
Előszoba: 8,7 m2
Gardrób: 6,4 m2
Szobák: 14,58 m2; 14,4 m2; 19,8 m2: 14,4m2
Közlekedő: 8,48 m2
Fürdőszobák: 11,61 m2; 7,68 m2; 6,75 m2; 5,44 m2
Műszaki jellemzők:
30-as Leier falazat 15 cm szigeteléssel, lábazat 10cm XPS szigetelés
Belső falak: 10 cm Leier téglából
Födém: 20 cm kőzetgyapot szigetelés
Hőszivattyú + padlófűtés
3 rétegű, energiatakarékos külső nyílászárók
Választható klíma: nappali vagy komplett kiállás minden szobában
Elektromos kapu, napelem előkészítés
Kamerarendszer, riasztó beépítve
Elektromos redőny szúnyoghálóval
Modern világítás az egész házban
Minden helyiségben klíma
Kerti világítás
Az ingatlan ára a kulcsrakész állapotra vonatkozik!
Ide már csak költözni kell!!!!
30% önerővel lefoglalhatja
Várható átadás: 2025. 12. 31.
Segítünk a finanszírozásban (független hitelszakértő), ügyvédi háttér garantált!
Érdeklődjön még ma, és találja meg új otthonát a legjobb feltételekkel!
Hívjon a hét bármely napján további információért!
Regisztrációs szám
U0048716
Az ingatlan adatai
Értékesités
eladó
Jogi státusz
új
Jelleg
ház
Építési mód
tégla
Méret
264 m²
Bruttó méret
285,7 m²
Telek méret
663 m²
Terasz / erkély mérete
37,4 m²
Fűtés
hőszivattyú
Belmagasság
270 cm
Lakáson belüli szintszám
1
Tájolás
Nyugat
Állapot
Kiváló
Homlokzat állapota
Kiváló
Környék
jó közlekedés, zöld, központi
Építés éve
2025
Fürdőszobák száma
4
Garázs
Benne van az árban
Víz
Van
Gáz
Utcán
Villany
Van
Csatorna
Van
Helyiségek
konyha
12.96 m²
nappali
58.95 m²
háztartási helyiség
5.04 m²
előszoba
8.7 m²
fürdőszoba-wc
6.75 m²
gardrób
6.4 m²
fürdőszoba-wc
7.68 m²
terasz
21.2 m²
erkély
16.23 m²
nappali
23.15 m²
szoba
14.58 m²
közlekedő
8.48 m²
fürdőszoba-wc
11.61 m²
fürdőszoba-wc
5.44 m²
szoba
14.4 m²
szoba
19.8 m²
erkély
7.53 m²
szoba
14.4 m²