159 990 000 Ft
422 000 €
- 164m²
- 5 szoba
XVIII. kerület Almáskert részén földszintes családi ház eladó!
Eladó újépítésű családi ház Budapest XVIII. kerület Almáskert csendes mellékutcában!
Az ingatlan egy hátsó telekrészen helyezkedik el, amit szolgalmi úton lehet megközlelíteni.
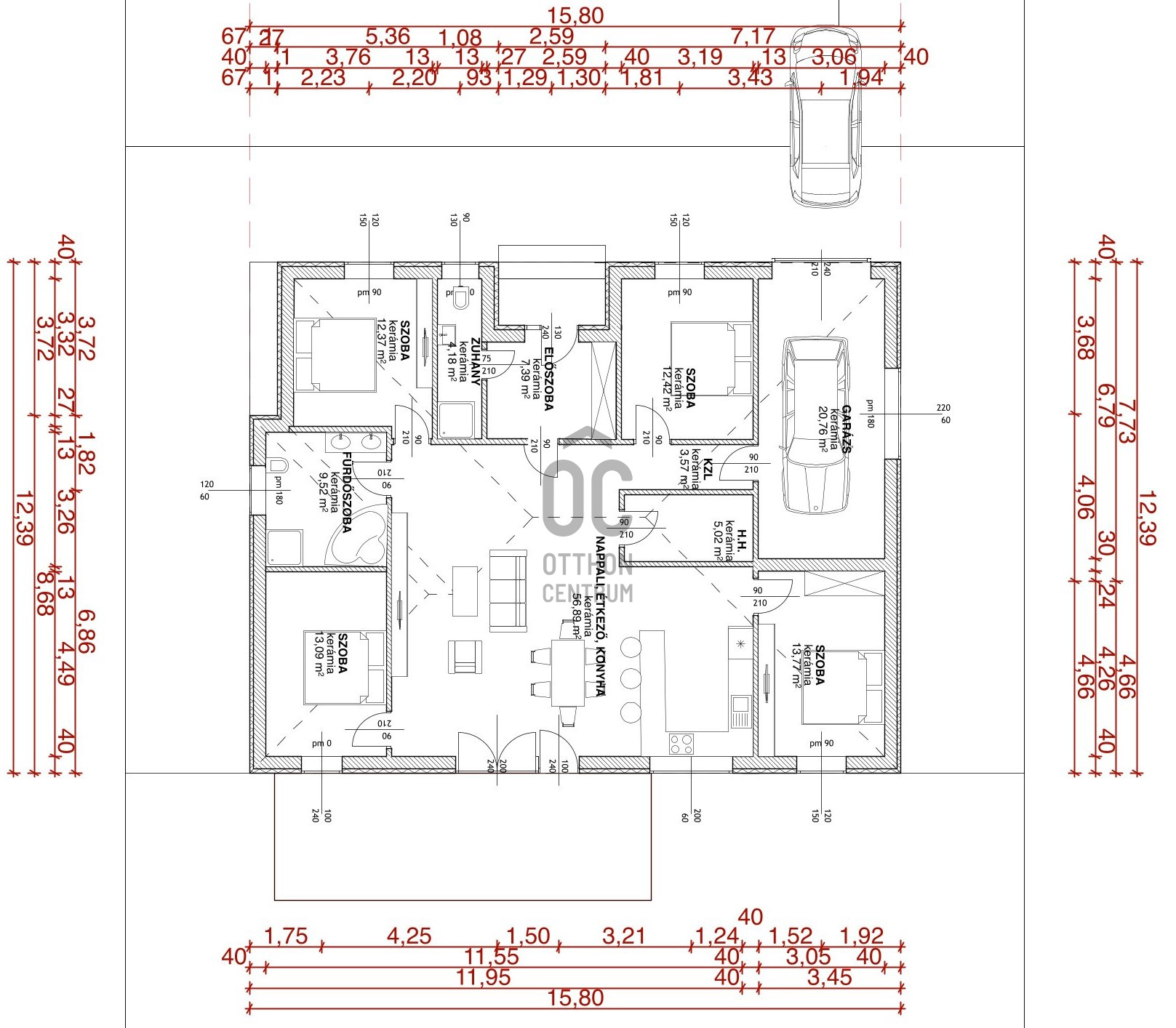
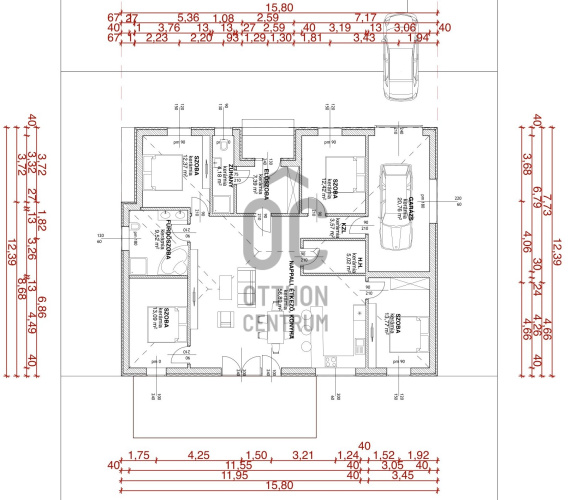
164 nm hasznos alapterületű földszíntes, amerikai konyhás nappali, 4 hálós, 2 fürdőszoba-wc, háztartási helyiség, terasz és saját 660m2 kert!
Helyiségei:
-szoba: 12,37-m2
-szoba:13,09-m2
-szoba:12,42-m2
-szoba:13,77m2
-konyh- ékező-nappali együtt: 57 m2
-kádas fürdő: 9,52m2
-zuhanyzós fűrdő:4,2m2
- háztartási helyiség :5m2
-előszoba:7,39 m2
- garázs 20,76m2
Műszaki tartalom (részlet)
- falazata 30-as Leier 10 cm-es grafitos szigeteléssel, lábazat 15 cm XPS szigetelés
- válaszfalak 10 cm-es Leier tégla
- födémen 20 cm-es kőzetgyapot szigeteléssel
- hőszivattyú padlófűtéssel
- 3 rétegű külső nyílászárók
A fűtése hőszivattyús, padlófűtés az egész házban
-választható vagy a nappaliban 3,5 kw-os klíma, vagy klíma kiállás kiépítése minden szobában!
-elektromos kapu,
-napelem előkészítés,
-komplett kamerarendszer riasztóval beépítve
Ami vételár részét képezi:
Meleg burkolat: 5000ft/m2 amely tartalmazza a filc alátétet és a szegélyt is.
Hideg burkolat: 5000ft/m2 amely tartalmazza a fugát és a burkolat váltókat is.
Belső tartozékok, szaniter árak:
-beltéri ajtó kilinccsel 80.000 Ft/db
-kád tartozékaival 80.000 Ft/db
-csap 20.000 Ft/db
-mosdó 20.000 Ft/db
-plusz víz csatorna kiállás kérésre 50.000 Ft/db
-villanykiállás fejegységenként 30.000 Ft/db
-Kerti csap ára kompletten szerelve: 100.000 Ft/db
szaniterek belső nyílászárók készültségi foktól függően választhatók.
Megbeszélés és egyeztetés alapján kérhetők plusz extrák és változtatások!
Az ingatlan osztatlan közös ügyvédi megosztással lesz!
A lakás az összes jelenleg futó támogatásra jogosult!
Az ingatlan 30% önerővel lefoglalható!
Várható átadás 2026.III. negyedév!
Amiben segítünk :független Hitelszakértő, ügyvédi háttér!!
Hívjon a hét bármelyik napján további információért!
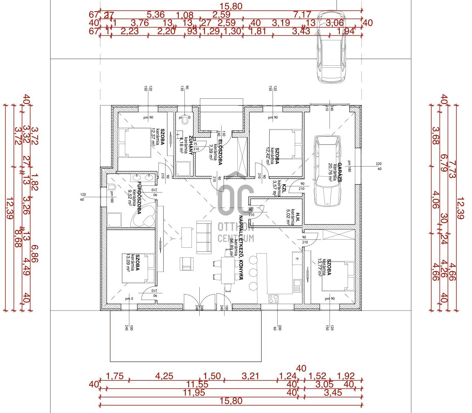
Az ingatlan egy hátsó telekrészen helyezkedik el, amit szolgalmi úton lehet megközlelíteni.
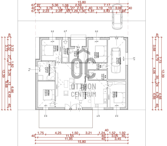
164 nm hasznos alapterületű földszíntes, amerikai konyhás nappali, 4 hálós, 2 fürdőszoba-wc, háztartási helyiség, terasz és saját 660m2 kert!
Helyiségei:
-szoba: 12,37-m2
-szoba:13,09-m2
-szoba:12,42-m2
-szoba:13,77m2
-konyh- ékező-nappali együtt: 57 m2
-kádas fürdő: 9,52m2
-zuhanyzós fűrdő:4,2m2
- háztartási helyiség :5m2
-előszoba:7,39 m2
- garázs 20,76m2
Műszaki tartalom (részlet)
- falazata 30-as Leier 10 cm-es grafitos szigeteléssel, lábazat 15 cm XPS szigetelés
- válaszfalak 10 cm-es Leier tégla
- födémen 20 cm-es kőzetgyapot szigeteléssel
- hőszivattyú padlófűtéssel
- 3 rétegű külső nyílászárók
A fűtése hőszivattyús, padlófűtés az egész házban
-választható vagy a nappaliban 3,5 kw-os klíma, vagy klíma kiállás kiépítése minden szobában!
-elektromos kapu,
-napelem előkészítés,
-komplett kamerarendszer riasztóval beépítve
Ami vételár részét képezi:
Meleg burkolat: 5000ft/m2 amely tartalmazza a filc alátétet és a szegélyt is.
Hideg burkolat: 5000ft/m2 amely tartalmazza a fugát és a burkolat váltókat is.
Belső tartozékok, szaniter árak:
-beltéri ajtó kilinccsel 80.000 Ft/db
-kád tartozékaival 80.000 Ft/db
-csap 20.000 Ft/db
-mosdó 20.000 Ft/db
-plusz víz csatorna kiállás kérésre 50.000 Ft/db
-villanykiállás fejegységenként 30.000 Ft/db
-Kerti csap ára kompletten szerelve: 100.000 Ft/db
szaniterek belső nyílászárók készültségi foktól függően választhatók.
Megbeszélés és egyeztetés alapján kérhetők plusz extrák és változtatások!
Az ingatlan osztatlan közös ügyvédi megosztással lesz!
A lakás az összes jelenleg futó támogatásra jogosult!
Az ingatlan 30% önerővel lefoglalható!
Várható átadás 2026.III. negyedév!
Amiben segítünk :független Hitelszakértő, ügyvédi háttér!!
Hívjon a hét bármelyik napján további információért!
Regisztrációs szám
U0048709
Az ingatlan adatai
Értékesités
eladó
Jogi státusz
új
Jelleg
ház
Építési mód
tégla
Méret
164 m²
Bruttó méret
164 m²
Telek méret
660 m²
Fűtés
hőszivattyú
Belmagasság
270 cm
Tájolás
Dél-nyugat
Állapot
Kiváló
Homlokzat állapota
Kiváló
Építés éve
2025
Fürdőszobák száma
2
Garázs
Benne van az árban
Garázs férőhely
1
Víz
Van
Gáz
Utcán
Villany
Van
Csatorna
Van
Helyiségek
szoba
12.37 m²
szoba
13.09 m²
szoba
12.42 m²
szoba
13.77 m²
nappali-konyha
56.89 m²
háztartási helyiség
5.05 m²
zuhanyzó
4.18 m²
fürdőszoba-wc
9.52 m²