Elérhető Otthon Start hitellel
Eladó újépítésű ikerház,
U0048265
Fót
99 990 000 Ft
255 000 €
- 99m²
- 3 szoba
ÚJÉPÍTÉSŰ IKERHÁZ GARÁZZSAL CSÖNDES UTCÁBAN ELADÓ!
KIEMELT AJÁNLAT!
Kiváló referenciákkal!
A fényképeken korábban felépített és értékesített referenciák láthatók.
A látványtervek és a telekről készült képek mutatják a jelenlegi ingatlant.
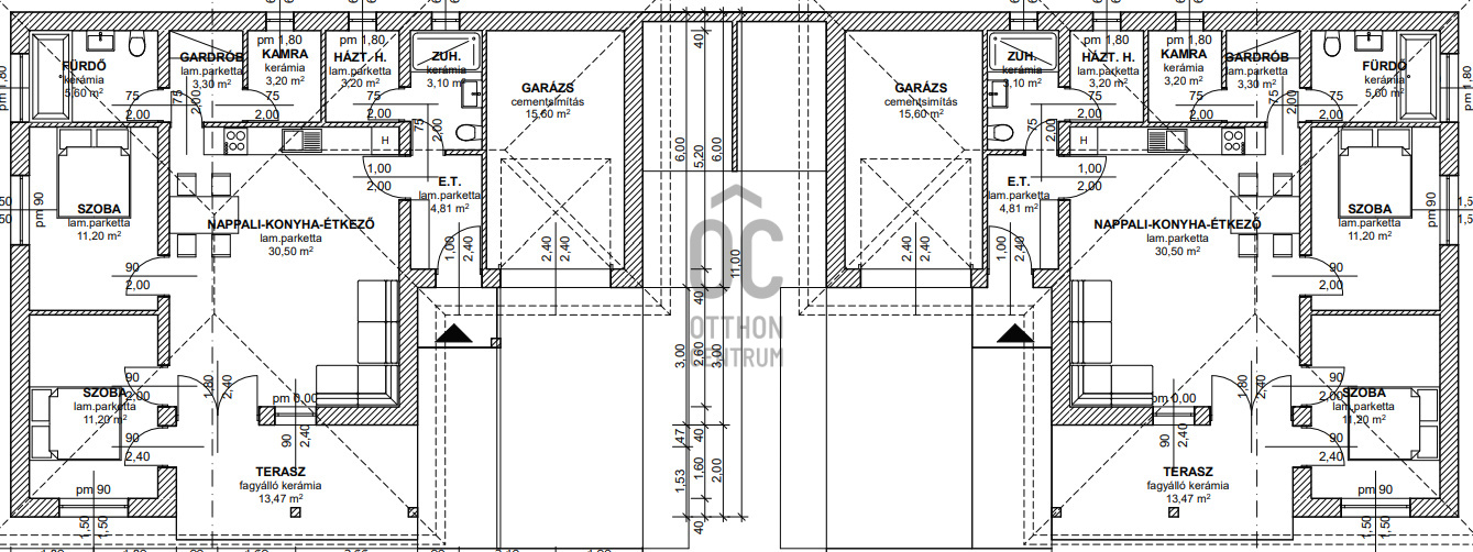
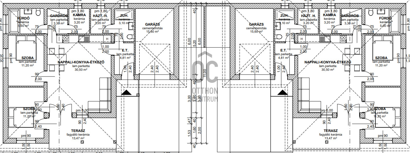
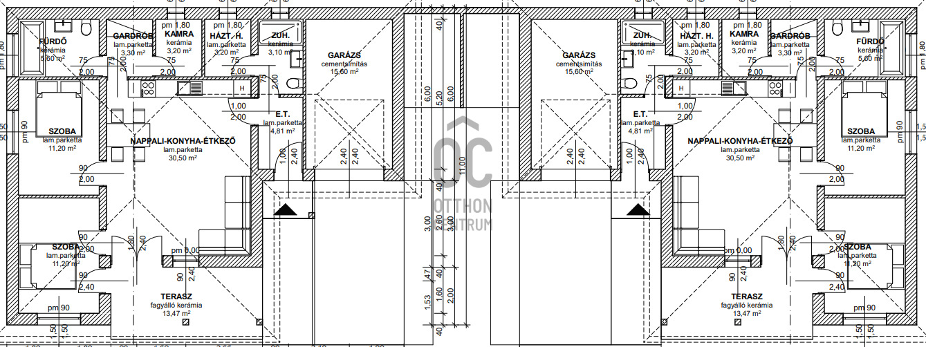
ÚJONNAN ÉPÜLŐ LAKÓPARKBAN, a Waldorf iskolától 2 utcára épül ez az ÚJÉPÍTÉSŰ IKERHÁZ.
Egymással mindössze egy tárolónál érintkezve, teljesen SZEPARÁLT KERTRÉSZEKKEL.
A helyiek által kedvelt CSENDES, ZÖLD UTCÁBAN, KITŰNŐ MINŐSÉGBEN készül, 400 m2 saját telken.
Itt biztosan megtalálja a nyugalmat, aki arra vágyik.
Ezen a területen nincsenek és nem is lesznek látható kábelek, ez egy rendezett, újonnan épülő lakópark lesz.
Az épület 30cm vastag fallal épül 15cm szigeteléssel, műanyag nyílászárókkal 3 rétegű hőszigetelt üvegezéssel, Terrán Zenit Resistor Onix tetőcserép fedéssel, hőszivattyú kiállással, padlófűtéssel, napelem-, riasztó-, és klímaelőkészítéssel, illetve egy ajándék klíma egységgel a nappaliban.
HŐSZIVATTYÚ vagy NAPELEM opcionálisan választható az áron felül.
A hálószobákba laminált padló, a többi helyiségbe járólap kerül, de ez most még igény szerint módosítható.
A FŰTÉSE és a FENNTARTÁSA KEDVEZŐ, a korábbi referenciákkal kapcsolatos tapasztalatok alapján a TELJES HAVI REZSI legfeljebb 40 ezer forint, és napelemmel REZSIMENTES tud lenni az ingatlan.
Napelem beszerzését és beszerelését az ár megbeszélés alapján tartalmazhatja.
Fúrt kút is található a telken, bemért, iható vízzel.
Az építés jelenleg is zajlik, ezért a BURKOLATOKAT Ön még KIVÁLASZTHATJA, igényeit megadhatja, így a lehető legjobb időben van.
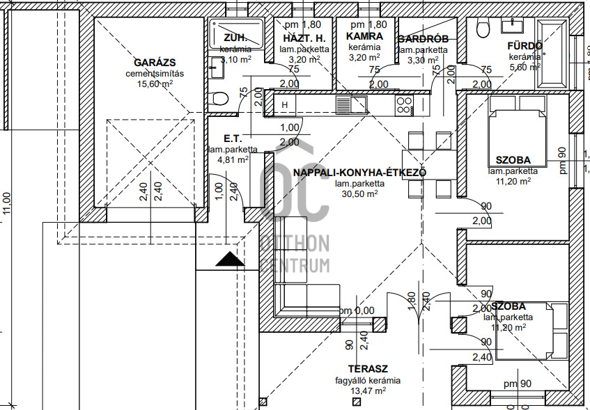
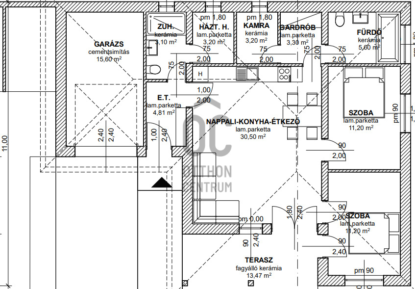
Nettó 99 m2 lakótér, ami az alábbiak szerint választható:
-Nappali+2 hálószoba, 2 fürdőszoba és garázs, vagy
-Nappali+3 hálószoba, 2 fürdőszoba és autóbeálló.
(Igény szerint a garázs kérhető szobaként, így nappali+3 hálószobás lesz az ingatlan, ebben az esetben egy fedett, viacolorozott autóbeállót is tartalmaz az ár.)
----
Ugyanitt elérhetők:
= 114,9M forintért
>110nm lakótér + 15nm garázs + ajándék 6nm tároló vagy
>125nm lakótér + ajándék 6nm tároló és autóbeálló,
és
=134,9M forintért
>130nm lakótér + 15nm garázs + ajándék 6nm tároló vagy
>145nm lakótér + ajándék 6nm tároló és autóbeálló.
----
10 percen belül szinte minden elérhető: busz, ovi, suli, boltok posta, cukrászda, virágos, gyógyszertár, benzinkút, stb.
ÁTADÁS 2026. december 31-ig.
Minimum 10% foglalóval és 20% önerővel LEKÖTHETŐ.
3% Otthon Start, CSOK, Hitel, Babaváró és illeték visszatérítés igényelhető rá.
Nagyon jó választás mind az ingatlan, mind a lokáció.
Hívjon bizalommal a hét bármely napján!
Amennyiben saját ingatlanja eladásához a mi irodánkat választja, ezt minőségi szolgáltatások és kedvező feltételek mellett vállaljuk.
Az ingatlan CSOK igénybevétele esetén illetékmentes!
CSOK, Babaváró, Lakásfelújtás, Támogatott hitelek? Irodánk minden állami támogatás és lakáshitel igény kapcsán DÍJMENTES és SZAKÉRTŐ segítséget nyújt!
Profi ügyvédi hátteret is biztosítunk.
Kiváló referenciákkal!
A fényképeken korábban felépített és értékesített referenciák láthatók.
A látványtervek és a telekről készült képek mutatják a jelenlegi ingatlant.
ÚJONNAN ÉPÜLŐ LAKÓPARKBAN, a Waldorf iskolától 2 utcára épül ez az ÚJÉPÍTÉSŰ IKERHÁZ.
Egymással mindössze egy tárolónál érintkezve, teljesen SZEPARÁLT KERTRÉSZEKKEL.
A helyiek által kedvelt CSENDES, ZÖLD UTCÁBAN, KITŰNŐ MINŐSÉGBEN készül, 400 m2 saját telken.
Itt biztosan megtalálja a nyugalmat, aki arra vágyik.
Ezen a területen nincsenek és nem is lesznek látható kábelek, ez egy rendezett, újonnan épülő lakópark lesz.
Az épület 30cm vastag fallal épül 15cm szigeteléssel, műanyag nyílászárókkal 3 rétegű hőszigetelt üvegezéssel, Terrán Zenit Resistor Onix tetőcserép fedéssel, hőszivattyú kiállással, padlófűtéssel, napelem-, riasztó-, és klímaelőkészítéssel, illetve egy ajándék klíma egységgel a nappaliban.
HŐSZIVATTYÚ vagy NAPELEM opcionálisan választható az áron felül.
A hálószobákba laminált padló, a többi helyiségbe járólap kerül, de ez most még igény szerint módosítható.
A FŰTÉSE és a FENNTARTÁSA KEDVEZŐ, a korábbi referenciákkal kapcsolatos tapasztalatok alapján a TELJES HAVI REZSI legfeljebb 40 ezer forint, és napelemmel REZSIMENTES tud lenni az ingatlan.
Napelem beszerzését és beszerelését az ár megbeszélés alapján tartalmazhatja.
Fúrt kút is található a telken, bemért, iható vízzel.
Az építés jelenleg is zajlik, ezért a BURKOLATOKAT Ön még KIVÁLASZTHATJA, igényeit megadhatja, így a lehető legjobb időben van.
Nettó 99 m2 lakótér, ami az alábbiak szerint választható:
-Nappali+2 hálószoba, 2 fürdőszoba és garázs, vagy
-Nappali+3 hálószoba, 2 fürdőszoba és autóbeálló.
(Igény szerint a garázs kérhető szobaként, így nappali+3 hálószobás lesz az ingatlan, ebben az esetben egy fedett, viacolorozott autóbeállót is tartalmaz az ár.)
----
Ugyanitt elérhetők:
= 114,9M forintért
>110nm lakótér + 15nm garázs + ajándék 6nm tároló vagy
>125nm lakótér + ajándék 6nm tároló és autóbeálló,
és
=134,9M forintért
>130nm lakótér + 15nm garázs + ajándék 6nm tároló vagy
>145nm lakótér + ajándék 6nm tároló és autóbeálló.
----
10 percen belül szinte minden elérhető: busz, ovi, suli, boltok posta, cukrászda, virágos, gyógyszertár, benzinkút, stb.
ÁTADÁS 2026. december 31-ig.
Minimum 10% foglalóval és 20% önerővel LEKÖTHETŐ.
3% Otthon Start, CSOK, Hitel, Babaváró és illeték visszatérítés igényelhető rá.
Nagyon jó választás mind az ingatlan, mind a lokáció.
Hívjon bizalommal a hét bármely napján!
Amennyiben saját ingatlanja eladásához a mi irodánkat választja, ezt minőségi szolgáltatások és kedvező feltételek mellett vállaljuk.
Az ingatlan CSOK igénybevétele esetén illetékmentes!
CSOK, Babaváró, Lakásfelújtás, Támogatott hitelek? Irodánk minden állami támogatás és lakáshitel igény kapcsán DÍJMENTES és SZAKÉRTŐ segítséget nyújt!
Profi ügyvédi hátteret is biztosítunk.
Regisztrációs szám
U0048265
Az ingatlan adatai
Értékesités
eladó
Jogi státusz
új
Jelleg
ház
Építési mód
tégla
Méret
99 m²
Bruttó méret
116 m²
Telek méret
400 m²
Terasz / erkély mérete
13,4 m²
Fűtés
elektromos cirkó
Belmagasság
269 cm
Tájolás
Dél-kelet
Állapot
Kiváló
Homlokzat állapota
Kiváló
Építés éve
2025
Fürdőszobák száma
2
Garázs
Benne van az árban
Garázs férőhely
1
Villany
Van
Tároló
Önálló
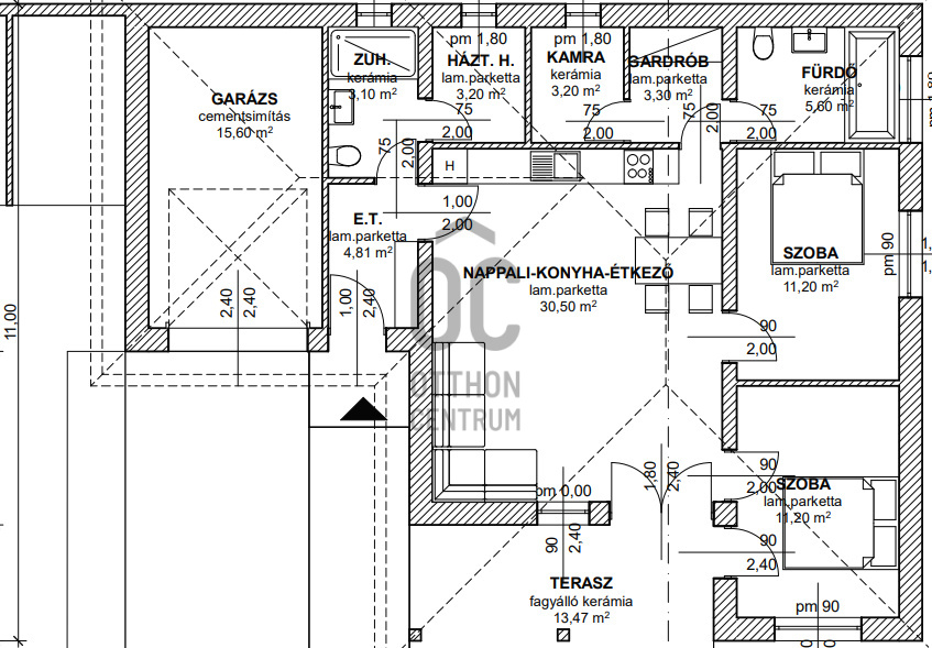
Helyiségek
előszoba
4.81 m²
fürdőszoba-wc
3.1 m²
háztartási helyiség
3.2 m²
nappali-konyha
30.5 m²
fürdőszoba-wc
5.6 m²
gardrób
3.3 m²
kamra
3.2 m²
hálószoba
11.2 m²
hálószoba
11.2 m²
terasz
13.47 m²
garázs
15.6 m²
tároló
6 m²
Czene Enikő Éva
Hitelszakértő